Дизайн-проект однокомнатной квартиры. Снос стен или попытка организовать пространство?
Дизайн-проект однокомнатной квартиры. Снос стен или попытка организовать пространство? Что лучше: снос стен или попытка организовать уже существующее пространство типовой однокомнатной квартиры?
Дизайн-проект однокомнатной квартиры. Снос стен или попытка организовать пространство? Что лучше: снос стен или попытка организовать уже существующее пространство типовой однокомнатной квартиры? Если перепланировка при помощи молота и кувалды вам документально запрещена, принимайтесь за дизайн-проект однокомнатной квартиры в своих четырех стенах. 
Фото 1 — План однокомнатной квартиры до перепланировки: 1 − комната; 2 − санузел; 3 − прихожая; 4 − кухня
Случай из дизайнерской практики
В бюро обратился заказчик с просьбой помочь создать интерьер для новой однокомнатной квартиры (планировка стандартная, общая площадь 31,25 м²). Готовые дизайн-проекты квартир-студий заказчику не приглянулись. По рекомендации дизайнера Юлии Кирпичевой было принято решение не сносить стены комнаты, а грамотно подойти к меблировке и дизайну интерьера, выбору отделочных материалов и зонированию.
Перед вами конечный план-дизайн и примеры визуализации проекта.

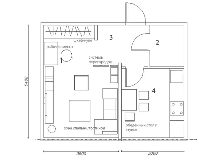
Фото 2 — План однокомнатной квартиры после перепланировки: 1 − комната; 2 − санузел; 3 − прихожая; 4 − кухня
Цвет
Снежно-белый цвет в интерьере однокомнатной квартиры (на фото ниже) не выглядит громоздко и даже наоборот: освежающе, визуально расширяя помещение. Как отмечают дизайнеры, белый цвет в интерьере помещения любой площади − сложный цвет и, тем не менее, он остается одним из наиболее эффективных: это идеальный цвет для фона, расширения пространства, выигрышный в пане легкости сочетания с другими цветами в интерьере и пр.
ХИТРОСТЬ: В помещении с белым фоном стен или мебели экспериментировать легче, чем в «цветной» комнате. Так вы сможете часто обновлять интерьер, расставляя все новые яркие акценты − точно не соскучитесь, живя в таком ярком и разнообразном доме.

Фото 3 — Так, например, легко украсить стену у телевизора, зачастую пустующую, яркими картинами или фотографиями. Для любителей сдержанности в интерьере придутся по душе кадры черно-белой пейзажной или макросъемки
Стиль
Т.к. предстояло переделать квартиру для молодой женщины, стиль выбрали современный, отвечающий возрасту и духу занятий хозяйки квартиры − практичный минимализм.
Планировка
От жилой комнаты прихожую отделили системой перегородок. Использовав их, дизайнер не только разделила пространство, но и поставила заметный конструктивный акцент при оформлении интерьера однокомнатной квартиры.

Фото 4 — Мебель для этой квартиры также подобрана функциональная. Например, модульные диваны при необходимости трансформируются в спальное место или в просторные сидячие места для приема большой компании
Главные стилеобразующие элементы в данном проекте − диван с бирюзовыми и белыми подушками, небольшой журнальный столик квадратной формы, а также система полок, закрепленных на стене.
Разбавляют проект интерьера черно-белые постеры, в последнее время вошедшие в моду. Цена на них, по сравнению с другими подобными элементами декора минимальна, а вида и настроения помещению они придают изрядно.

Фото 5 — В качестве изображений на постерах сегодня модно использовать фотографии звезд Голливуда 60-х, городских пейзажей и флористическую макросъемку

Фото 6 — Некоторые обойные фабрики выпускают целые серии таких принтов для декора стен и других плоскостей помещения. Яркий тому пример — постер Print Audrey Hepburn (производитель Eichholtz)

Фото 7 — Постер Photo Xl Sophia Loren (производитель Eiсhholtz)
Как видно из плана квартиры после перепланировки убрали только перегородку, отделявшую прихожую от остальных помещений жилья. Функционально эта конструкция оказалась лишней, и с её сносом заказчик получил больше пространства при входе в квартиру.
Результат: по приходу домой заказчик имеет свободный доступ ко всем помещениям. Проход в жилую комнату немного удлинен за счет использования системы перегородок, отделяющих зону спальни/гостиной от прихожей и рабочей зоны.
Логика установки перегородки состоит ещё и в том, что так из прихожей видно одну рабочую зону, а спальное место и место отдыха доступны только взору гостя, приглашенного пройти в комнату. Выходит, отдыхающую семью заказчика не побеспокоят ни заглянувшие за солью соседи, ни почтальон, принесший заказное письмо.
Нужен мастер по ремонту?
Найдите проверенных специалистов для любых ремонтных или строительных работ. Разместите заказ и получите предложения от местных мастеров.
Вам также может понравиться
Больше статей:
Дизайн мебели для гостиной
Как создать креативное оформление гостиной
Совмещение кухни и гостиной в хрущевке
Кровать в дизайне спальни. Добавим изюминку
Красивый интерьер спальни. Разнообразие стилей
Интерьер спальни своими руками, нет ничего сложного
Идеи интерьера для спальни человека любого возраста
Интерьер спальни на мансарде — романтика и не только