7 geniales ideas que inspiraron una sola habitación de 46 m² en Moscú
¡Excelentes soluciones de diseño para tu inspiración!
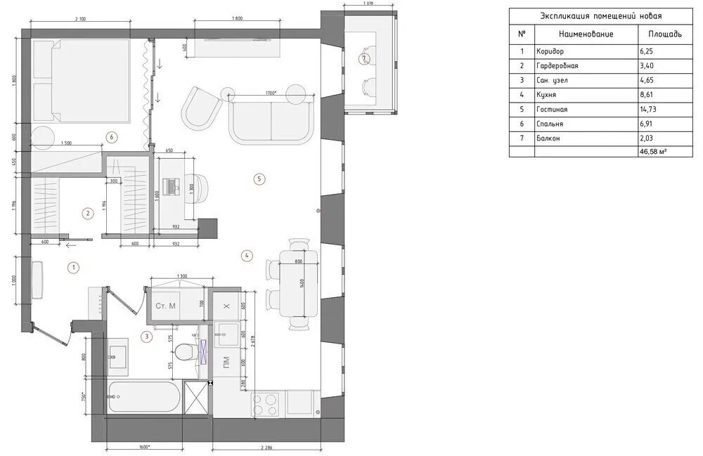
Esta vivienda, ubicada en el legendario edificio en la calle Bakhruzhina, es un ejemplo de cómo se puede combinar el legado arquitectónico con las tendencias modernas del diseño. La diseñadora Eugenia Zabolotskaya logró increíblemente crear un interior cómodo y elegante en un espacio limitado. Presentamos siete interesantes soluciones que implementó.
Cocina en nichoLa cocina de 8 metros cuadrados se realizó en formato de cocina-nicho. La diseñadora consideró todas las necesidades del propietario, colocando un refrigerador integrado, una zona de trabajo con fregadero, una lavavajillas estrecha y una placa de cocción. La composición se completa con un armario-columna espacioso con vitrina para una hermosa vajilla.
Enmarcado de ventanas con madera laminadaLas ventanas en la cocina-salón están rodeadas de madera oscura laminada. En el fondo de las paredes claras, esta solución crea un contraste elegante y se combina perfectamente con el mueble de cocina, añadiendo acogedor y calor al interior.
Pared detrás de la televisiónLa pared detrás del televisor se decoró con paneles decorativos estilizados, pintados del mismo color que las paredes. Esta solución ayuda a crear una unidad espacial dinámica y más equilibrada.
Acentos visualesLa habitación principal se dispuso en una nicho, y el techo está cubierto con pintura oscura de tipo pantano, lo que le da volumen al espacio. La pared detrás del colchón está decorada con una fresca que añade comodidad y trae un toque natural.
Elementos antiguosLa mesa antigua, que fue heredada por el dueño de la familia, se convirtió en la pieza central del nuevo interior. Su forma original se integra armoniosamente con el estilo moderno de la vivienda, destacando la continuidad de tradiciones y el respeto por los valores familiares.
Almacenamiento bien pensadoEn la habitación principal se logró colocar un armario integrado que ofrece diversas opciones de almacenamiento. Dentro hay no solo secciones cerradas, sino también estantes abiertos para libros y decoración, lo que permite usar eficientemente el espacio y mantenerlo ordenado.
Azulejos en la entradaLa entrada se decoró con azulejos cuadrados de pequeño formato y tono azul oscuro. Esta solución práctica es fácil de limpiar y añade un toque elegante al primer cuarto que ven los invitados.

Esta vivienda es un ejemplo de cómo se puede decorar moderna y funcionalmente un espacio manteniendo su valor histórico. Cada detalle aquí fue cuidadosamente planificado y creado con amor, convirtiendo este lugar en una verdadera casa.
Need a renovation specialist?
Find verified professionals for any repair or construction job. Post your request and get offers from local experts.
You may also like

¿Mitos o verdad: secretos de los edificios más extraños de Moscú?

Tendencias de diseño de interiores 2025–2026: direcciones clave

Uma Thurman en la nueva temporada de Dexter: secretos del papel y lo que la actriz contó sobre las grabaciones

Electricistas estafadores: 5 esquemas que pueden costar cientos de miles
Más artículos:
¿Mitos o verdad: secretos de los edificios más extraños de Moscú?
Tendencias de diseño de interiores 2025–2026: direcciones clave
Uma Thurman en la nueva temporada de Dexter: secretos del papel y lo que la actriz contó sobre las grabaciones
Electricistas estafadores: 5 esquemas que pueden costar cientos de miles
Китай-город: por qué el principal cuarto comercial recibió su nombre en honor de la Tierra Celestial
Dónde colocar la cama en una pequeña estudio: 5 mejores soluciones
5 secretos de belleza de Audrey Hepburn que siguen funcionando hoy
Armario invisible: ¡Encuéntralo si puedes! 5 ideas geniales