Antes y después: cómo en una panelada se transformó con presupuesto una unidad de 37 m² con acabado del desarrollador
Sin reconfiguración se creó un espacio brillante y moderno
Los diseñadores Katerina Trusova y Oksana Razumova de la estudio AURA desarrollaron un interior innovador para una pareja joven con familia, considerando sus deseos. Para decorar eligieron un diseño moderno y una combinación atrevida de colores: rojo, verde y olivo.
Lugar: ciudad de Voronezh
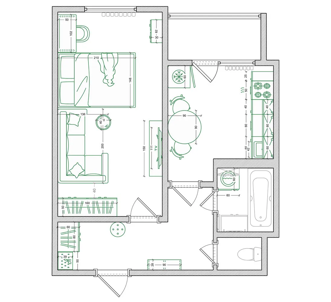
Superficie: 37 m²
Altura del techo: 2,7 m
Cantidad de habitaciones: 1
Baño: 1
Presupuesto: 400 mil rublos
Diseño: estudio AURA
Fotos: Katerina Trusova
Estilista: Oksana Razumova
Apartamento antes del remodeladoAl inicio del proyecto, el interior parecía apagado: en las paredes colgaban papel pintado desactualizado, que no correspondía a las tendencias actuales y generaba una sensación de frialdad. El espacio necesitaba una transformación radical que lo llenara con nuevos colores y estilo, haciéndolo acogedor e idóneo para vivir.
Foto de cocina antes del remodelado
Foto del baño antes del remodelado
Foto del vestíbulo antes del remodelado
Foto de la habitación antes del remodelado
Cocina después del remodeladoDebido al presupuesto limitado, en todas las habitaciones se dejaron los papel pintado del desarrollador, que fueron pintados con tinta para papel pintado. El mueble de cocina se compró listo, la estufa de gas quedó del desarrollador. El refrigerador y el horno de microondas se ocultaron tras un sistema de perchas desde el suelo hasta el techo, creando una sensación de habitación ordenada y pulida.



Habitación después del remodeladoEn una sola habitación se ubicaron las principales zonas funcionales: dormitorio, sala de estar, guardarropa, área de trabajo y zona para maquillaje. Una característica del interior fue el uso de cajas de colores vibrantes que transicionan suavemente al techo. Esto divide visualmente el espacio en secciones separadas y añade acentos coloridos, creando una atmósfera acogedora y original.

El sofá verde se buscó durante mucho tiempo, ya que los clientes tenían requisitos específicos: debe tener un asiento y ser compacto. La estantería para televisión con textura de madera se armoniza perfectamente con los tonos principales del interior.
Para el almacenamiento se eligió usar armarios listos desde marketplaces, lo que permitió ahorrar presupuesto. El volumen de almacenamiento se aumentó gracias a las estanterías colocadas sobre los armarios en la habitación y el vestíbulo. La cama se eligió con mecanismo de elevación, ofreciendo aún más espacio para guardar ropa.

Cuadro sobre el sofá dibujado por nosotros mismos, el tema del cuadro fue solicitado por los clientes.
Vestíbulo después del remodeladoEn el vestíbulo se previó un gran armario con compartimentos cerrados que ocultan eficientemente el calzado estacional y la ropa superior. También hay una zona abierta con perchas para ropa diaria. Frente a la puerta de entrada hay estantería colgante, pintada a tono con la pared. El espejo arqueado amplía visualmente el espacio, mientras que el cojín redondo aporta comodidad y acogedor.

Baño después del remodeladoLa parte superior de las paredes en el baño y la habitación de baño están pintadas con color olivo. En el baño se pintó el techo del mismo color. En el inodoro las paredes fueron pegadas con papel pintado combinado con madera en panel. Para facilitar el acceso a las instalaciones se organizó una escotilla. En la ducha, considerando el presupuesto limitado, se usó azulejo autoadhesivo que permitió renovar el espacio con comodidad y rapidez.


¿Quieres que tu proyecto sea publicado en nuestro sitio web? Envíanos fotos del interior a wow@inmyroom.ru.Need a renovation specialist?
Find verified professionals for any repair or construction job. Post your request and get offers from local experts.
You may also like

Experiencia personal: 7 consejos para quienes planean hacer flipping

Брежневка contra krushchyovka: dónde vivir más cómodo

Cómo un diseñador decoró genial una cocina de forma irregular en un apartamento de 36 m²

Atmósfera de los años 60, estilo vintage y artefactos en una casa rural de 127 m² en Karelia
Más artículos:
Experiencia personal: 7 consejos para quienes planean hacer flipping
Брежневка contra krushchyovka: dónde vivir más cómodo
Cómo un diseñador decoró genial una cocina de forma irregular en un apartamento de 36 m²
Atmósfera de los años 60, estilo vintage y artefactos en una casa rural de 127 m² en Karelia
Baño de 3 m²: 8 consejos que crean la sensación de espacio
Muebles cómodos y de calidad: 10 tendencias destacadas
Cómo hacer que una casa sea acogedora en una sola noche: fórmula probada por diseñadores
Muebles modernos y elegantes para su interiores: 10 hallazgos actuales