Cómo una diseñadora decoró genial una casa de 87 m² para sí misma
Un interior autóctono y acogedor, en el que gran parte se hizo con sus propias manos
En esta casa de estilo tránsito, ubicada en un edificio de hormigón y ladrillo, vive la diseñadora Olga Izotova junto a su esposo y su gato. El interior de su apartamento recuerda una acogedora casa rural, con muchas manualidades y soluciones de diseño interesantes. El remodelado tiene ya cinco años, pero aún se ve fresco y actual.
Lugar: Ciudad de Moscú
Superficie: 87 m²
Cantidad de habitaciones: 3
Altura del techo: 2,9 m
Baño: 1
Diseño: Olga Izotova
Presupuesto: 3 millones de rublos
Recorrido por la vivienda (42 minutos)
Sobre la distribución
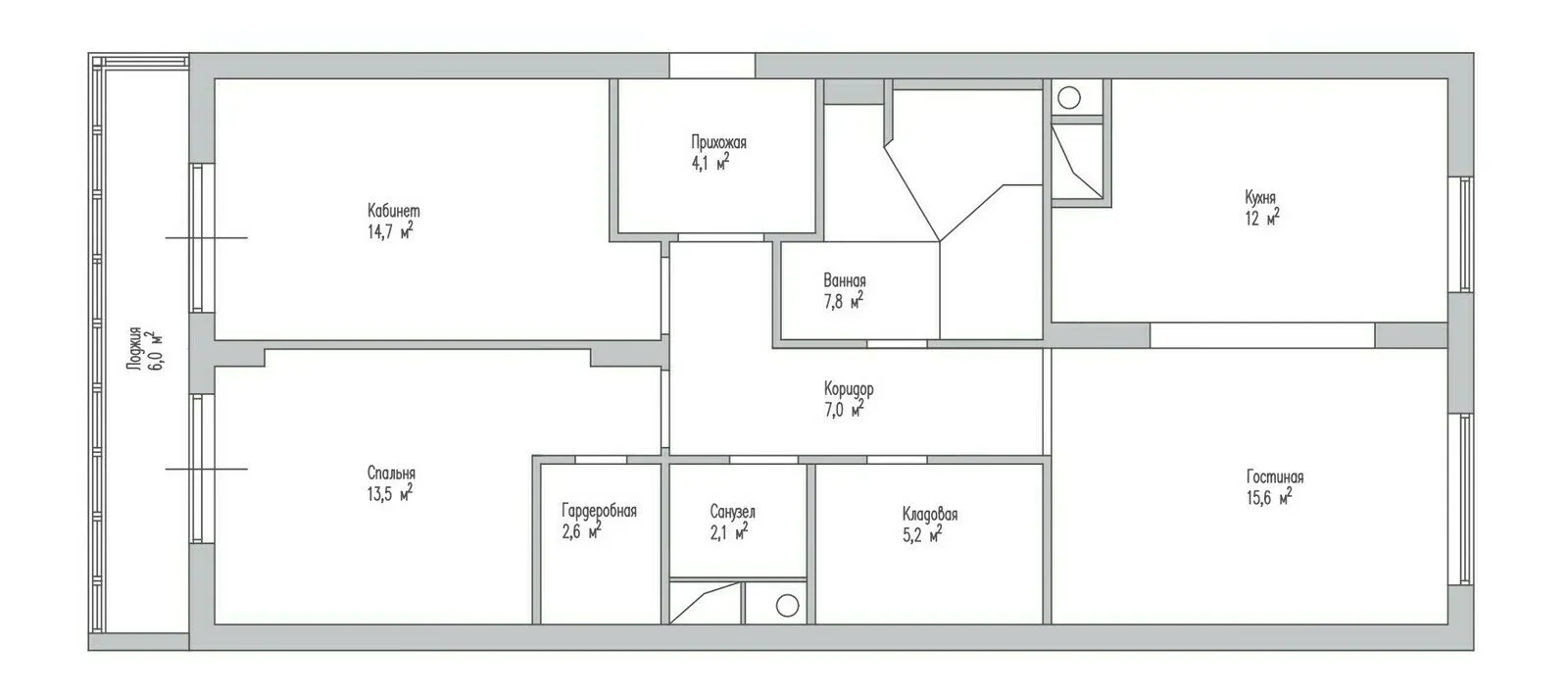
En el momento de su compra, el apartamento estaba “en hormigón” con una distribución libre y con dos estructuras portantes que definieron la ubicación de las futuras paredes. Las zonas húmedas se mantuvieron en sus lugares originales. Según el nuevo plan, la vivienda incluye una cocina-comedor, habitación principal, estudio (anterior habitación del hijo), pasillo, dos baños y un almacén.
Me encanta el color. Los clientes temen usar tonos brillantes en los interiores, por eso en su propio apartamento se atrevió plenamente — en cada habitación hay acentos de colores intensos en la mobiliario o decoración. Sobre la cocina-comedorLa superficie combinada de la cocina y comedor es de 28 metros cuadrados. La zona de la cocina se definió por los pilares estructurales, alrededor de los cuales se construyeron las paredes. Entre ellos se colgó una viga, en la que se ocultó la ventilación de aire y se hizo una iluminación. El foco atrae el mirada al tablero de la cocina. A algunos le recuerda la atmósfera de una casa rural, a otros — la cabina de un barco. La forma del techo fue sugerida por el artesano encargado del trabajo de renovación. Para la decoración se utilizó una madera clara en forma de tablas, y los bordes se decoraron con una cuerda común.


La cocina se hizo a medida con un tono azul intenso. La encimera está hecha de roble pegado, un material natural que resultó muy caprichoso en la vida diaria. Se ve bonita con el paso del tiempo, pero no tolera el uso de productos limpiadores agresivos. Olga no recomienda usar esta solución, mejor optar por una opción estándar — encimeras de MDP.



Toda la organización de almacenamiento en la cocina se realiza detrás de los frontales inferiores. Una solución funcional y práctica — una secadora para la vajilla en el cajón deslizante inferior a la lavadora de platos. En la esquina se ha instalado una construcción deslizante para colocar cómodamente los utensilios de cocina. En lugar de las estanterías superiores se hizo un estante de madera delgado que abarca toda la pared. En él Olga almacena especias y productos en polvo. En la nicho colocó un refrigerador independiente que trajo de su anterior apartamento, y se previeron espacios para almacenar la tecnología, productos y vajilla.

Entre la cocina y el comedor se puede ver una construcción interesante: desde la cocina es una mesa, desde el comedor es un buffett y estantería. En el buffet Olga almacena la hermosa vajilla para servir. A través de las tuberías metálicas, sobre las que se colocaron los estantes, pasa la electricidad para los candelabros suspendidos sobre la mesa.



Para ocultar los radiadores, las paredes bajo la ventana del comedor y la cocina se recubrieron con tablero de yeso y se decoraron con ladrillo decorativo. Los marcos de las ventanas se decoraron con paneles espejo — reflejan la luz, se ven muy elegantes y originales. En el comedor se colocó un sofá plegable y una mesa transformable que puede convertirse en una mesa de comedor completa. El falso techo da originalidad y apoya el estilo de la acogedora casa rural.


Sobre la habitación principalLas paredes de la habitación están pintadas con una tinta gris-violeta. Da a la habitación un aire acogedor y profundo. La pared frente a la cama se convirtió en un punto destacado, decorada con una pintura hecha por Olga ella misma. Pintó la tinta con un pincel y difuminó con una esponja para hacer el dibujo más suave y ligeramente difuminado. En los suelos de las habitaciones vividas se colocó una tabla de ingeniería en un tono natural de madera. Una solución interesante — el revestimiento del suelo se mezcla suavemente con la cabecera de la cama. Se ve muy acogedor y original.


Toda la mobiliario para la habitación principal se hizo por sí misma. El esposo de Olga es muy alto: una cama de tamaño estándar no cabía. Por eso, la hizo por sí misma con madera, cubierta con tela para muebles. Debajo de la almohada se previeron cajones deslizantes para almacenar. Las mesas de almacenamiento se hicieron con los paneles de ventana de madera: en el taller pidieron cortes, ensamblaron el marco y tomó prestados los cajones de los armarios IKEA. En la habitación principal hay un guardarropa separado con una superficie de 3 metros cuadrados.

Sobre el estudioOriginalmente, esta era la habitación del hijo. Ahora que ha crecido y vive por separado, se transformó en un estudio, taller y lugar para hacer ejercicio. Se renovaron los papeles de pared, y el suelo y parte del mobiliario se dejaron como estaban. El alféizar del techo se pintó con un tono verde que contrasta.


Desde la habitación se puede ver una vista bonita hacia el balcón. La pared bajo la ventana se pintó con una tinta amarilla brillante y se decoró con una rejilla de jardín. El color amarillo crea la sensación de presencia del sol incluso en días nublados. El balcón sirve como taller de verano, lugar para almacenar muchas cosas y el estudio personal de Olga.

Sobre el pasilloUna pared y el techo del pasillo se pintaron con un tono azul pálido, la otra se hizo “como ladrillo blanco”. De esta manera, el espacio largo y estrecho se ve interesante y autónomo. Un elemento destacado — puertas de persiana rojas con “cristales” decorativos originales, detrás de las que se esconde el almacén. Allí se guardan bicicletas, equipo deportivo, ropa de temporada, también hay una lavadora y hasta una lavandería adicional para necesidades domésticas.


La zona de entrada se volvió brillante y alegre. A la izquierda de la entrada, el almacenamiento está organizado en los armarios de refrigerador IKEA. Se cambiaron las perillas por perillas antiguas y se hicieron rayas dentro. Luego, a lo largo de la pared — un gran espejo, frente a él — cómodas para zapatos y accesorios, una cómoda suave.


Sobre el bañoLa distribución del apartamento se planeó basándose en las dimensiones de este espacio — a Olga le importaba que el baño fuera espacioso y funcional. Aquí hay una gran zona de ducha con un banco de madera, una bañera separada con bordes anchos y cómodos, instalación, sistemas de almacenamiento espaciosos. Por cierto, todo el almacenamiento en el baño se hizo con los frontales de cocina IKEA.
Para la decoración se usó una combinación de azulejos grandes, azulejos mosaico y pintura. Sobre las paredes pintadas, Olga aplicó un dibujo con una plantilla, y las puertas de la instalación se pintaron con pintura vitrificada.




Need a renovation specialist?
Find verified professionals for any repair or construction job. Post your request and get offers from local experts.
You may also like
Más artículos:
Antes y después: remodelación de una diminuta casa de estilo хрущевка de 29 m²
Baño pequeño de 3 m² en apartamento compacto
Experiencia personal: renovación de una unidad de 40 m² desde cero por 1,5 millones de rublos
Los 6 mejores consejos para crear un baño elegante y funcional
10 geniales soluciones para casa que mejorarán la calidad de tu vida
Diseño inusual de baño compacto de 3,5 m²
6 geniales ideas de almacenamiento que nos inspiramos en nuestra heroína
5 errores en la renovación que cometió nuestra heroína