Antes y después: remodelación de una diminuta casa de estilo хрущевка de 29 m²
De una "habitación asesinada" se obtuvo una estudio elegante y funcional
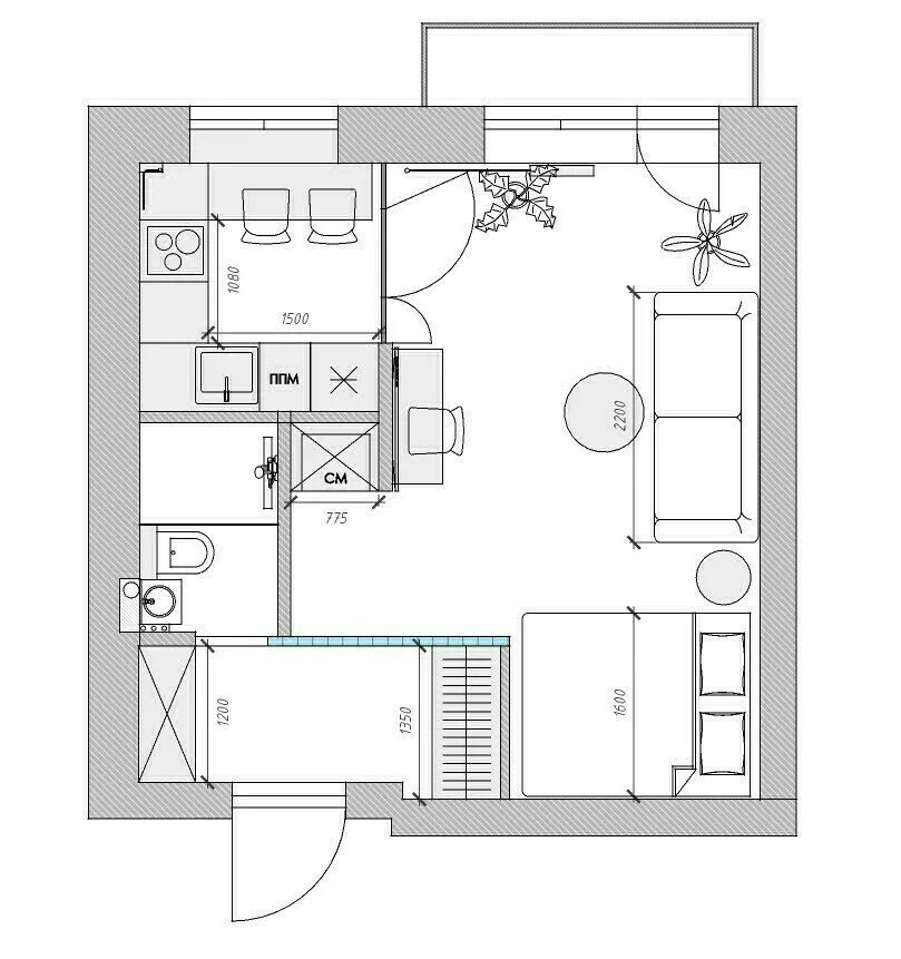
La diseñadora Olga Zhiharieva decoró el espacio de una pequeña vivienda de 29 m² en un estilo хрущевка para una joven. Fue importante considerar la total legalidad de la reconfiguración y equipar el apartamento según los deseos de la cliente: delinear zonas para dormir y recibir invitados, integrar toda la tecnología necesaria.
En el proceso de reconfiguración se eliminaron las particiones y se construyeron nuevas. La habitación se unió con la cocina, dividiéndose en partes mediante el uso del color y la forma. El área húmeda se mantuvo en su lugar.
Cocina antes de la remodelaciónEl paso a la cocina era estándar desde el vestíbulo. El área del cuarto es muy pequeña. La decoración tenía tonos llamativos, lo que no contribuía al ambiente acogedor.
Cocina después de la remodelaciónEn cuatro metros cuadrados se logró instalar una cocina completa con lavavajillas, microondas, horno, placa de tres quemadores y refrigerador. Los armarios superiores hasta el techo aumentaron el espacio de almacenamiento. El delantal de la cocina está hecho con azulejos negros y blancos en estilo vintage.
La zona de comedor está marcada con un color verde profundo y decorada como una barra que se convierte en extensión de la encimera. Encima hay un luminario colgante original.Habitación antes de la remodelación
La habitación de uso principal sirve como dormitorio y sala de estar. Era necesario planificar varias zonas funcionales, teniendo en cuenta la posibilidad de crear privacidad.
Habitación después de la remodelaciónLa zona de sala de estar está decorada con tonos claros. Las paredes blancas ofrecen una hermosa interacción de sombras. El sofá claro y directo se transforma en un lugar adicional para dormir. Detrás está una estantería con estantes abiertos para decoración y plantas.

Las paredes de la habitación dormitorio están pintadas en verde, lo que crea un contraste y zona visual del espacio. Allí se colocó una cama matrimonial con base metálica y una pequeña mesita similar al escritorio frente a ella. En la cabecera se colgaron dos luminarias de acento negras.
Baño antes de la remodelaciónEl pequeño baño estaba inicialmente unido a una ducha y lavamanos muy pequeños.
Baño después de la remodelaciónLa cabina de ducha se separó con puertas de vidrio de perfil negro (que recuerdan la puerta de la cocina). Encima del sistema de instalación se colocaron estantes para almacenamiento. Allí también está oculto el acceso a las instalaciones.

Need a renovation specialist?
Find verified professionals for any repair or construction job. Post your request and get offers from local experts.
You may also like
Más artículos:
5 obsoletas soluciones en el diseño de interiores que deberías evitar
Cómo decorar por uno mismo un baño elegante de 3,3 m²
8 geniales ideas para equipar una cocina pequeña
Reparación en edificios antiguos: 8 consejos importantes de nuestra heroína
Cocina blanca de 6,9 m² en un apartamento de estilo khrushchyovka
Antes y después: 5 transformaciones increíbles de apartamentos 'asesinados'
7 geniales soluciones que observamos en el proyecto Profi
Antes y después: 5 transformaciones más impresionantes de cocinas antiguas