Diseño ecológico y elementos de estilo loft en apartamento de 2 habitaciones de 56 m²
Transformamos una estudio en un apartamento de dos habitaciones con cocina funcional, sala acogedora y dormitorio aislado
Ciudad: Rostov-on-Don
Superficie: 56,3 m²
Habitaciones: 2
Baños: 1
Altura del techo: 2,78 m
Presupuesto: 2,5 millones de rublos
Diseñadora: Julia Filippova
Fotógrafa: Inna Kablukova
Estilista: Marina Guseva
La diseñadora Julia Filippova creó un interior moderno y elegante en un pequeño apartamento de dos habitaciones con 56 m². Los clientes del proyecto, una pareja joven, les encanta recibir a invitados y reunir grandes grupos. La principal tarea del diseñador era crear un espacio cómodo y funcional con suficientes lugares de almacenamiento, dormitorio privado, gran sofá y una mesa móvil espaciosa.
Planificación
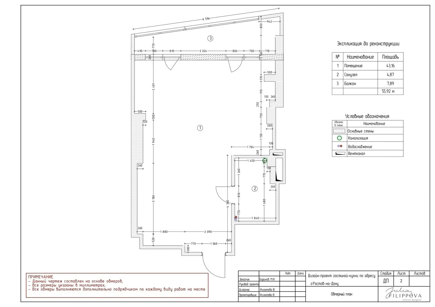
Inicialmente, el apartamento era una sola estúdio sin divisiones. Por un lado, los clientes querían conservar este espacio; por otro lado, necesitaban una zona privada. Como resultado de la replanificación apareció un pequeño dormitorio y un pasillo largo detrás de él. La amplia terraza impedía la entrada de luz solar, por lo que se tomó la decisión de unirlo con la cocina-sala.
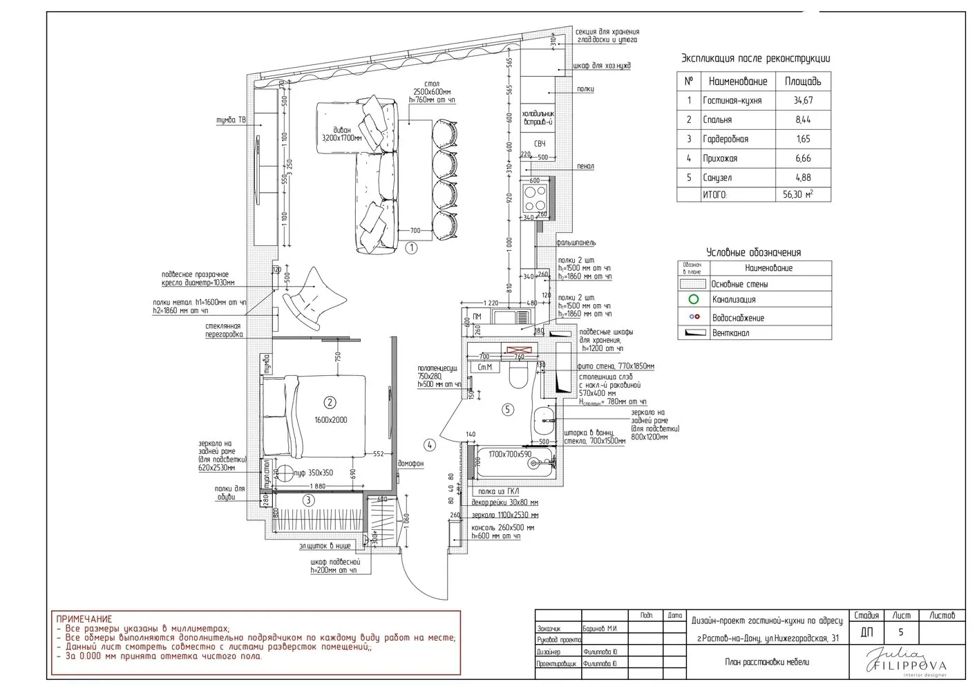
A pesar de la pequeña superficie del apartamento, se prevé una gran cantidad de sistemas de almacenamiento. Estos están hechos a medida, lo que permitió tener en cuenta las solicitudes individuales de los clientes.
Plano de medición
Plano de colocación del mobiliarioLa historia de este apartamento comienza con una pintura comprada por los clientes antes de comenzar el trabajo en el proyecto. Tiene su propio estilo y carácter: la obra establece un tono estricto para toda la concepción.

El material principal de la decoración de las paredes es una estucada decorativa con acabado de concreto. Los contrastes de texturas (concreto y madera), combinación de colores (gris y verde) dan al interior una apariencia impactante y un estilo único.
«Los clientes querían un interior estricto en estilo loft con predominio del gris. Pero decidí suavizarlo un poco, añadiendo acentos de color y detalles ecológicos en forma de decoración vegetal en la pared del dormitorio, fitopan y texturas de madera. El resultado es una combinación contrastante de estilos y colores», — comenta la diseñadora Julia Filippova.

Cocina
Originalmente, en el lugar de la cocina, el constructor había diseñado conductos de ventilación, lo que provocó muchas nichos a diferentes alturas. Era necesario corregir el espacio mediante la mobiliario.
La cocina resultó ser grande y funcional. La joven dueña ama cocinar, por lo que se planificó una cantidad suficiente de armarios para almacenar. Permiten guardar no solo platos y utensilios de cocina, sino también provisiones enlatados para el invierno e incluso una tabla de planchar.



La mesa de comedor se ve con efecto y estilo. La encimera natural de pino es un bloque con borde salvaje. Se tuvo que teñir varias veces para que combinara armoniosamente con el color y la textura de madera de la cocina.



Sala de estar
En la cocina-sala, los jóvenes dueños pasan la mayor parte del tiempo. A menudo vienen amigos. El sofá y la mesa son un lugar no solo para comer, sino también para conversar. Por eso, esta pareja de muebles ocupó el lugar central en la sala de estar. Las dimensiones de los productos permitieron mantener el espacio y caminos circulares.



«En este interior, con el color verde creé acentos y diversidad. Es un verde natural, suave, complejo y saturado», — comparte Julia. El color está presente en la mobiliario principal, elementos decorativos y textiles. Crea un acento y se ve con éxito sobre el fondo neutro gris: este contraste hace que el interior sea impactante».


Dormitorio
En el dormitorio se colocó una cama matrimonial blanda y se organizó un gran armario con iluminación interna, antepeñas y estantes para calzado. A ambos lados de la cama se colocaron mesitas colgantes, una de las cuales funciona como escritorio de baño con espejo alto.



La orgullosa de los clientes es la pared divisoria de estilo loft hecha de vidrio. El joven hombre mismo buscó al contratista, participó en el desarrollo del diseño y la instalación de la divisoria, lo que permitió ahorrar algo en el presupuesto.
La pared divisoria de estilo loft aquí no es solo un elemento funcional, sino también parte de la concepción del interior: respalda el estilo general del loft.


Entrada
El pasillo se convirtió en un adorno especial de este proyecto gracias a los perfiles luminosos que pasan del techo a las paredes. En la entrada se diseñó un armario para guardar zapatos y ropa de invierno.

Baño
El baño tiene muchas características funcionales: nicho con iluminación bajo la bañera, estantes cómodos en las paredes para artículos de baño, sistema de almacenamiento sobre la instalación y la lavadora, espejo con iluminación.
La joya del interior fue la fitopan con plantas estabilizadas. Encaja perfectamente con el azulejo de concreto gris y refresca la habitación.



Marcas presentadas en el proyecto
Cocina
Revestimiento: estucada decorativa, VGT Gallery; estucada, Artech-beton
El suelo: revestimiento de piso, vinilo cuarzita, Floormaster
Muebles: conjunto personalizado
Baño
Revestimiento: cerámica granítica, Italon
Suelo: revestimiento de piso, cerámica granítica, Italon
Need a renovation specialist?
Find verified professionals for any repair or construction job. Post your request and get offers from local experts.
You may also like
Más artículos:
Estilo, comodidad y belleza: los mejores sofás y sillas para casa
Hermosa apartamento de 77 m² con atmósfera art déco
Máximo confort: 10 sofás-cama para cualquier gusto
Apartamento de tres habitaciones de 58 m² que parece mucho más grande
Cómo organizar un almacenamiento eficiente en la cocina: 6 secretos del diseñador
Cómo organizar una terraza acogedora en una casa de campo: las 10 mejores ideas
Una cocina pequeña con detalles llamativos en un apartamento de estilo krushchev
Antes y después: un transformador diseño de una estalinca de 75 m²