Cómo hacer que una casa en el antiguo fondo sea súper funcional
Compartimos ideas implementadas en una casa de estilo Stalin
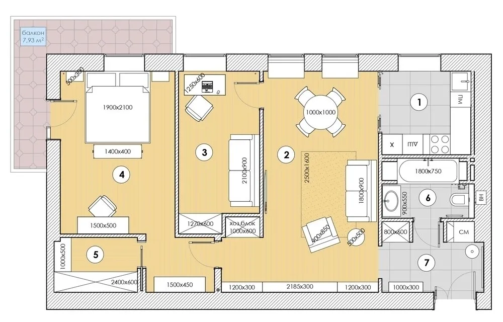
La diseñadora Natalia Komova transformó un apartamento de tres habitaciones en una casa de estilo Stalin para una familia con un niño. Además de la decoración y el estilo, fue importante planificar la funcionalidad y los sistemas de almacenamiento. Compartimos las mejores ideas.
Ampliar el espacio aprovechando los espacios adyacentes
En un apartamento pequeño es importante usar todo el potencial disponible. Aquí se amplió el baño usando el pasillo. También se evitó el estrecho y largo pasillo convirtiéndolo en parte de la sala de estar. Además, la diseñadora se esforzó por crear un efecto de plano en cascada para que al tener las puertas abiertas se vean inmediatamente cuatro ventanas. Esto siempre hace que el espacio parezca más amplio visualmente.

Hacer los armarios de cocina hasta el techo
Los armarios de cocina se hicieron hasta el techo, en dos filas. «Es obvio que los armarios superiores no se usan todos los días, pero permiten almacenar todo lo necesario. Los estantes inferiores ya fueron planeados específicamente para guardar cosas concretas —los propietarios mismos dijeron cuántas cajas, estantes o secciones necesitaban», — comenta Natalia Komova.

Usar nichos
Se aprovecharon al máximo los nichos: en el pasillo se creó un mini cuarto de almacenamiento y una columna integrada con la lavadora y secadora. En el estudio o habitación infantil se diseñó un vestidor.
«La carpintería siempre es una de las partidas más importantes del presupuesto. Sin embargo, se puede ahorrar si hacer los nichos con el método constructivo, ya que básicamente solo se necesita pedir los frontales bonitos y la mínima cantidad de contenido. Esto es más barato que armarios separados», — comparte la diseñadora.

Se colocaron estanterías con secciones abiertas y cerradas a lo largo de la pared en el lugar anterior del pasillo. De esta manera se logró aumentar la funcionalidad y crear un sistema visualmente atractivo de almacenamiento.

Diseñar nichos en el baño
«Una de mis planificaciones favoritas para baños pequeños es cuando la bañera tiene nichos para almacenamiento a ambos lados y un gran espejo encima instalado perpendicular a la puerta», — comenta Natalia Komova.

¿Quieres más detalles? Mira el proyecto completo
Need a renovation specialist?
Find verified professionals for any repair or construction job. Post your request and get offers from local experts.
You may also like

Cómo crear un huerto elegante y con estilo: 9 ideas sencillas para decorar las macetas

Luz y espacio: acogedor diseño de 69 m² en Kazán para una médica

Cómo se transformó con éxito una cocina de 5,55 m² en un tipo de krushchyovka

Antes y después: reforma de una vieja vivienda panelada de 55 m² hecha con mis propias manos
Más artículos:
Cómo crear un huerto elegante y con estilo: 9 ideas sencillas para decorar las macetas
Luz y espacio: acogedor diseño de 69 m² en Kazán para una médica
Cómo se transformó con éxito una cocina de 5,55 m² en un tipo de krushchyovka
Antes y después: reforma de una vieja vivienda panelada de 55 m² hecha con mis propias manos
Estilo, comodidad y belleza: los mejores sofás y sillas para casa
Hermosa apartamento de 77 m² con atmósfera art déco
Máximo confort: 10 sofás-cama para cualquier gusto
Apartamento de tres habitaciones de 58 m² que parece mucho más grande