Diseño moderno de apartamento de dos habitaciones de 54 m² con tonos claros
La diseñadora Svetlana Olenburg creó un diseño con atmósfera europea en una nueva construcción en San Petersburgo
La diseñadora Svetlana Olenburg decoró un apartamento de dos habitaciones de 54 m² para una pareja familiar adulta. Se buscaba crear un espacio lo más cómodo y funcional posible, lleno de luz y aire.
Ciudad: San Petersburgo
Metro: 54 m²
Habitaciones: 2
Baños: 2
Altura del techo: 3 m
Diseñadora: Svetlana Olenburg, SOL Design
Fotógrafo: Ekaterina Titenko
Estilista: Svetlana Olenburg
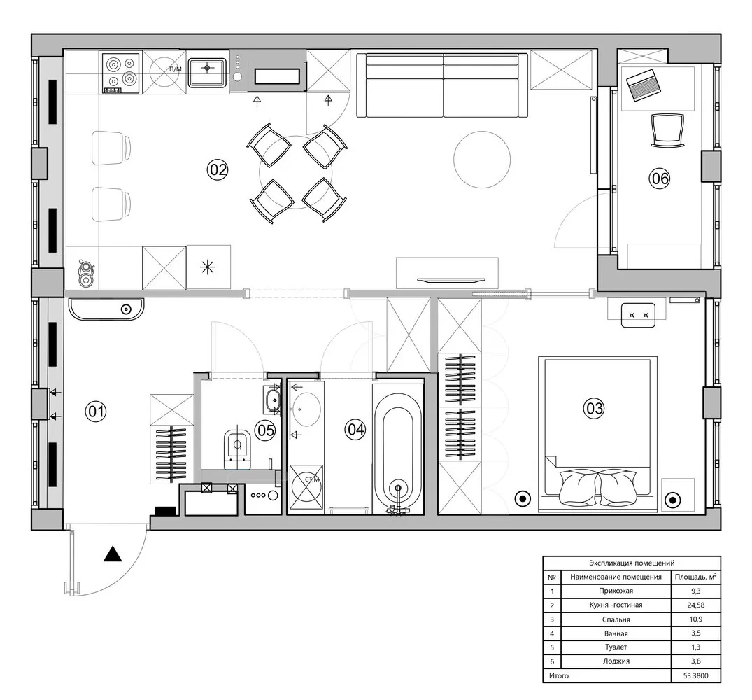
Planificación
Originalmente se usó un diseño típico del desarrollador, con ventanas en ambos lados del edificio — ventilación cruzada. Como resultado de la reconfiguración, se combinó la cocina con la sala de estar.


Cocina-sala de estar
El mueble de cocina está dispuesto paralelo a lo largo de las paredes opuestas. Al lado de la ventana está el bar, que une ambas partes del mueble. Todo el electrodoméstico está integrado. El diseño de la cocina es estándar, con muchos lugares para almacenar.



En las paredes hay papel pintado monocromo. Era necesario ajustarse al presupuesto establecido, y el papel pintado reducía significativamente los costos de preparación de las paredes.
«Los clientes compraron el sofá por su cuenta, y al final se escribió el código incorrectamente para la tela. Al final trajeron un sofá con una tela con diseño gráfico grande. Al principio todos se asustaron por este efecto, pero al final se convirtió en un punto de atención y combinó bien con la base de la mesa de comedor. El sofá se integró perfectamente», — cuenta la diseñadora.

Como decoración para la sala de estar, se eligió el panel Raindrops Medium — Brass de Artisan. Se utilizó en lugar de las fotografías en marcos previstas. En él se combinaron todos los colores del interior.
Dormitorio
Detrás de la cabecera hay una fresca, que se hizo a pedido. «Cuando los clientes mencionaron el presupuesto, se entendió que debíamos excluir las decoraciones de lujo y la mobiliario extranjero. Ahorrábamos en el mueble integrado (cajas de MDF, principalmente estanterías). La mobiliario independiente se compró parcialmente, según las posibilidades financieras», — comenta la diseñadora.



Baños
Se redujo un poco el baño al trasladar una pared, necesario para ampliar el vestidor y colocar un armario. Se utilizó azulejo de gran formato, perfiles de latón y pintura (una combinación de tonos cálidos y fríos).



Vestidor
Una característica interesante del proyecto son las ventanas. Son panorámicas, pero no de un lado a otro. Se necesitaba mantener una cortina térmica y aprovechar al máximo su área con pasos de puerta tipo, por lo que en el vestidor aparecieron bancos con colchonetas suaves.




Cocina
Revestimiento: papel pintado, Melanzana
Piso: tablero de parquet, Barlinek
Mueble: mesa, Dantone Home; sillas, sillas bar, Anni Haus
Garnitur: taller de carpintería “Concepto Cuadrado”
Electrodomésticos: TECA; refrigerador, Bosch
Baños: Krone
Lavadero: Omoikiri
Iluminación: suspensión, Loft Lux; lámpara colgante, Perla Lightstar
Sala de estar
Revestimiento: papel pintado, Melanzana
Piso: tablero de parquet, Barlinek
Mueble: sofá, Dantone Home
Textiles y decoración: textiles, “Avantaj”; panel mural, Artisan
Tecnología: Samsung
Iluminación: lámparas incrustadas, Maytoni
Baño
Revestimiento: azulejo, Atlas Concorde; pintura, Little Greene
Piso: azulejo, Atlas Concorde
Mueble: taller de carpintería, “Combinat Diseño”
Sanitario: Sturm
Decoración: La Forma
Baños: WasserKraft
Iluminación: Maytoni
Vestidor
Revestimiento: papel pintado, Melanzana; azulejo, Marazzi
Piso: tablero de parquet, Barlinek
Mueble: armario, The Idea
Decoración: jarrón, Step Brown; cajas de madera, Normann Copenhagen; canasto para paraguas Bottega, ADJ
Iluminación: lámpara de pie, Arte Lamp
Dormitorio
Revestimiento: papel pintado, Melanzana; fresca, Fresq
Piso: tablero de parquet, Barlinek
Mueble: taller ROOMBELL; armarios, taller de carpintería “Combinat Diseño”; mesa de café, Normann Copenhagen
Textiles y decoración: textiles, Lissoy
Iluminación: lámpara colgante, Favourite
¿Quieres que tu proyecto sea publicado en nuestro sitio web? Envíanos las fotos del interior a wow@inmyroom.ru
Need a renovation specialist?
Find verified professionals for any repair or construction job. Post your request and get offers from local experts.
You may also like
Más artículos:
Antes y después: 6 increíbles transformaciones de apartamentos agotados
30+ flores que se pueden sembrar en marzo
Antes y después: cómo se transformó la 'trash' de la casa
Una cocina pequeña pero muy funcional en un apartamento de estilo khrushchyovka
Diseño de baño moderno en edificio soviético tipo (fotos antes y después)
Apartamento de dos habitaciones de 60 m² con vista panorámica
10 los luminosos más modistas de la temporada 2023/24
Clásico remodelado de cocina 5 m² en apartamento estándar