Pequeña cocina en un apartamento de estilo khrushchyovka con ventana de bloques de vidrio y puerta plegable
Los diseñadores transformaron la cocina en un edificio típico utilizando materiales simples y económicos. El resultado fue elegante e innovador
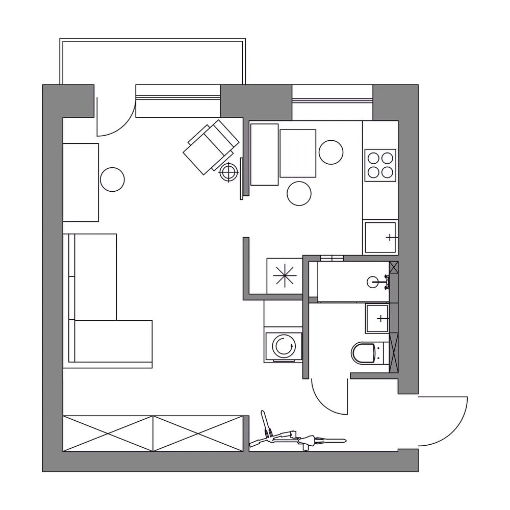
Los diseñadores de la estudio Mirburo transformaron una vivienda tipo en un khrushchyovka para un joven cliente que aprecia el arte y lo colecciona. La distribución inicial y la apariencia del apartamento no respondían a las necesidades: se buscaba un interior funcional, minimalista y luminoso. Se comenzó con una reconfiguración: se trasladó la entrada de la cocina a la sala de estar, y el pasillo se dividió en una zona de lavandería y un espacio para el refrigerador.

La cocina se mantuvo en su lugar, y el gas también. Para coordinar, se previó una puerta plegable. La cocina es estándar lineal de IKEA con las puertas más simples blancas y verdes y perillas negras.


Se reconstruyó la pared entre la cocina y el baño, utilizando bloques de vidrio. Antes había una pequeña ventana típica en ese lugar; ahora el elemento de vidrio se convirtió en una pieza artística. Es especialmente atractivo por la noche cuando la luz está encendida en el baño.


Como zona adicional se usa el alféizar: allí está la tetera, por lo que se instalaron tomas adicionales en los lados de la ventana. Para evitar que la tetera interfiera al abrir la ventana, se diseñaron marcos abatibles a cierta distancia del alféizar.

Una parte de la pared en la zona de comedor se recubrió con azulejos. Una solución inusual pero práctica. En lugar de un banco, se usó un cojín con cajón para almacenamiento.

La pared detrás del refrigerador se decoró con madera laminada, al igual que la puerta plegable.
Marcas presentadas en el proyectoRevestimiento: pintura, Dulux; azulejos, Kerama Marazzi
Piso: ceramogranito, Kerama Marazzi
Muebles: IKEA
Garniture: IKEA
Electrodomésticos: Bosch
¿Quieres que tu proyecto sea publicado en nuestro sitio web? Envía fotos del interior a wow@inmyroom.ru
Need a renovation specialist?
Find verified professionals for any repair or construction job. Post your request and get offers from local experts.
You may also like
Más artículos:
10 productos de IKEA para una sala de estar acogedora
¡Vaya! Una cocina brillante con almacenamiento pensado y un acuario integrado
Almacenamiento en la cocina: 6 ideas geniales de los proyectos de nuestros héroes
Almacenamiento en baño pequeño: 6 ideas de proyectos reales
Cómo se transformó una cocina típica en una pequeña casa de estilo хрущёвка
Antes y después: cómo renovaron el antiguo diseño en una vivienda de estilo brezhnev por 850 mil rublos
Espacio amplio de sueño con dos habitaciones infantiles y tres baños
Luminosa y acogedora dos habitaciones de 49 m² en un bloque de estilo khrushchev