Apartamento familiar con acabado luminoso y detalles de madera
Para el diseño del interior, Julia Lublianova tomó como base una paleta de colores neutrales y naturales, añadiendo detalles de madera laminada y accesorios contrastantes en negro
La diseñadora Julia Lublianova decoró una vivienda de cuatro habitaciones con un área de 107 metros cuadrados en Dolgoprudny para una familia con dos hijos. La principal tarea era crear un interior moderno, elegante y de calidad dentro del presupuesto acordado. La cliente confió en el gusto de la diseñadora y le otorgó total libertad creativa.
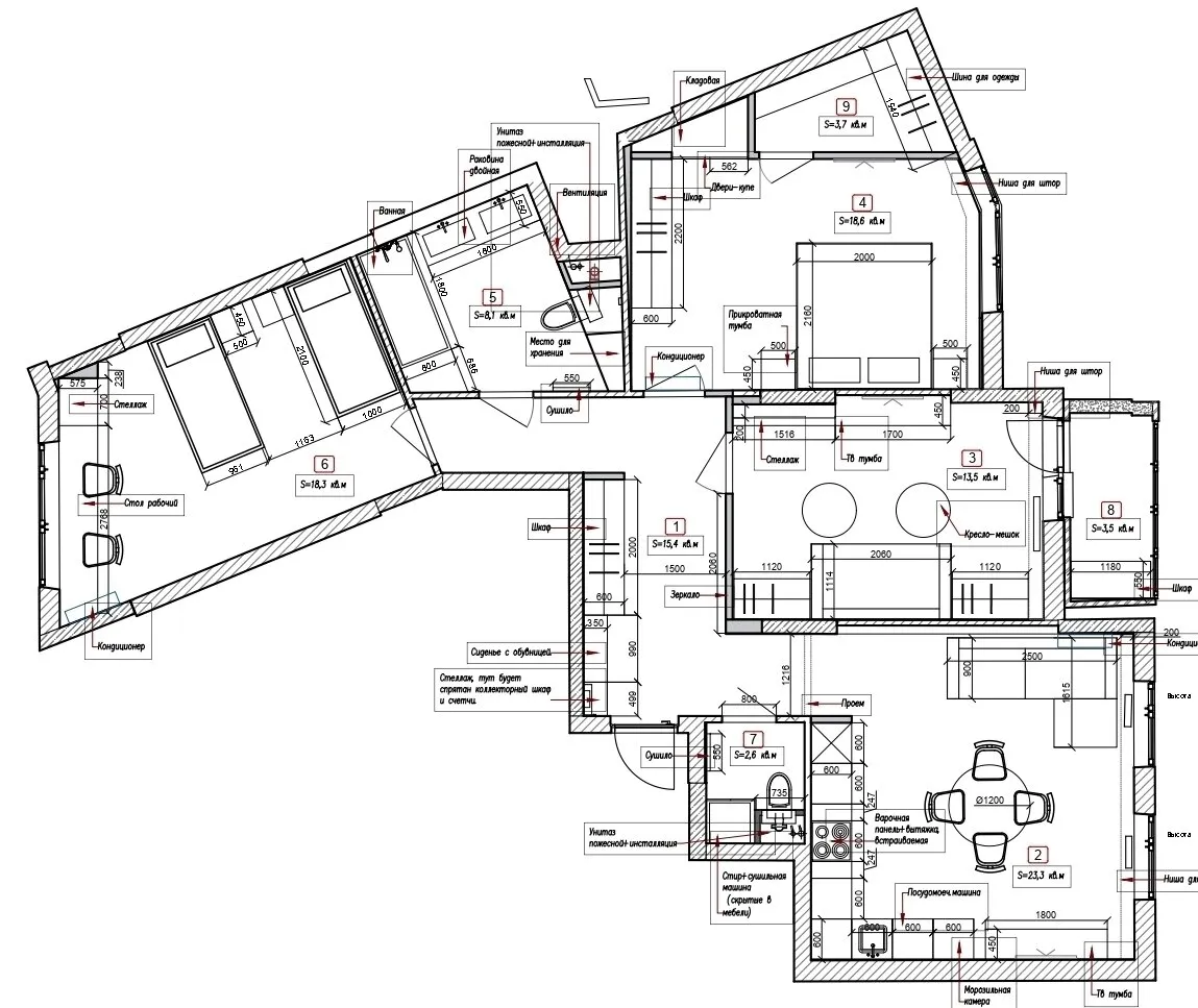
Planificación
La distribución del apartamento no cambió significativamente, solo se desplazó una pared en el vestíbulo 20 cm para ampliar la habitación de juegos. Entre las zonas funcionales se encuentran todo lo necesario para una vida cómoda: cocina-estancia, dormitorio, habitación infantil, dos baños. También se reservó espacio para un almacén y una sala de juegos.

Cocina-estancia
La cocina combina la función de cocina con la de sala de estar. En ella hay mucho espacio, se aprovecha cada centímetro. Aquí puedes cocinar, comer, recibir a invitados y descansar.

La cocina se fabricó a medida en una carpintería. El encimado está hecho de piedra acrílica.
La mesa y los sillones fueron elegidos por la cliente: se integraron perfectamente al diseño. La mesa se puede plegar en caso de recibir invitados.

“Hace mucho tiempo que me gusta esta lámpara, la he probado muchas veces en proyectos pero nunca se aprobó. Esta vez a los clientes les gustó”, dice la diseñadora.

La madera laminada se utiliza en toda la vivienda como elemento destacado, manteniendo la idea y concepto coherente del proyecto.


Dormitorio
El diseño de toda la vivienda resultó ser luminoso, con el uso de madera como elemento destacado en la decoración y mobiliario. Se añadieron elementos del estilo japandi.

El espejo amplía el espacio y aumenta la luz en el dormitorio. Además, luce muy elegante.

En todas las paredes de la vivienda se usó pintura y estuco decorativo. En el suelo de toda la vivienda, excepto en el baño, se usó cuarzo vinilo. Esta fue una decisión y deseo de la cliente: quería una superficie uniforme.

Habitación infantil
La habitación infantil está destinada a hacer tareas escolares y dormir. Al lado de las camas se colocaron tiras de madera laminada y se añadió iluminación.

Para estudiar se previó un gran escritorio al lado de la ventana, estanterías y mesas bajo el escritorio. El radiador bajo la mesa no es visible, está oculto tras una puerta con aberturas para permitir la circulación del aire.

La habitación está decorada con tonos pastel tranquilos. Dos lámparas hechas a medida hacen que el interior sea más interesante.


Habitación de juegos
La habitación con un área de 13,5 metros cuadrados sirve tanto como sala de juegos como guardarropa y también como sala de invitados. Aquí hay un sofá que puede plegarse en caso de recibir invitados.

Los deseos de los clientes eran contar con un lugar cómodo para ver películas y jugar juegos de computadora, por eso se añadió una zona de TV y asientos blandos.

En la habitación infantil no se previó un armario para ropa. Por lo tanto, todo se almacenará en dos armarios dentro de la sala de juegos.
Una parte de la pared con TV se destacó con color y se añadió una pintura que combinaba con los tonos. También se previó una estantería gráfica para colocar diferentes juguetes, libros y decoración.


Baños
En la vivienda hay un baño principal y un baño de invitados. La distribución del baño principal tiene una forma compleja, para corregirla, la diseñadora decidió colocar armarios en las esquinas del espacio.

El área del baño es de 8 metros cuadrados. Es espacioso: tiene un gran lavabo con dos grifos, lo cual es cómodo para una familia con dos hijos, especialmente por las mañanas cuando todos se preparan para ir a la escuela o al trabajo. El espejo rectangular visualmente amplía el espacio. La iluminación añade comodidad.

Para la decoración se usó cerámica de granito con acabado de mármol, además de fondo. Una de las paredes y los armarios fueron recubiertos con microcemento.
En el baño de invitados se previó un inodoro colgado, un lavabo pequeño y sistemas de almacenamiento.


Pasillo y vestíbulo
En la vivienda se previeron muchos sistemas de almacenamiento. En la entrada se colocó un armario para ropa superior y ropa diaria. La mobiliario de madera personalizado se fabricó a medida, lo que aumentó el presupuesto, pero permitió una planificación detallada.


Fotógrafo: Mikhail Chekalov
Estilista: Varvara Kalitskaya
Marcas presentadas en el proyecto
Acabado: estuco decorativo, Kor décor; pintura, Little Greene; cerámica de granito, Atlas concorde
Interruptores + tomas: Atlas
Baños: Cezares, Rea
Luz: Bright buro; Maytoni
Radiadores: Home heat
Muebles: SK design; Divan.ru; mueble de madera personalizado, Intero. Studio
Puertas: Profildoor
Alfombras: Kover.ru
¿Quieres que tu proyecto sea publicado en nuestro sitio web? Envía fotos del interior a wow@inmyroom.ru
Need a renovation specialist?
Find verified professionals for any repair or construction job. Post your request and get offers from local experts.
You may also like
Más artículos:
5 ideas para crear un interiores sorprendente
Dos habitaciones de 64 m² con vista espectacular al río Moskva
Cocina económica con delantal estilizado por 4 mil rublos y refrigerador espejado
Antes y después: cómo transformaron una típica monòmica en un edificio de panel
Techo de 74 m² en tonos suaves y claros
Para la cocina y más: mesas y sillas de IKEA
10 increíbles productos de IKEA para tu habitación
Dos excelentes opciones de decoración de cocina-estancia