Cómo se renovó elegante una casa de 65 m² en un edificio de ladrillo de cinco pisos
La diseñadora Alena Chmeléva actualizó un interior obsoleto y compartió ideas para ahorrar
Esta vivienda de tres habitaciones en un edificio de cinco pisos fue decorada por la diseñadora Alena Chmeléva de ART Concept para una pareja familiar con hija estudiante. El estilo fue definido de inmediato: clásico moderno en todos los espacios principales. En la habitación de la hija: estilo oriental. Te contamos los detalles.
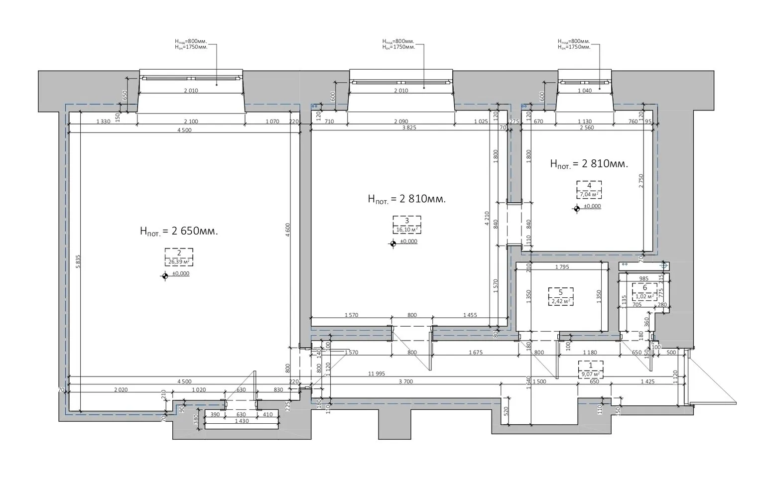
Plano
La vivienda se encuentra en un edificio de ladrillo de cinco pisos construido en 1926. Tenía un plano típico: un largo y estrecho pasillo, una cocina muy pequeña, una sala de estar reducida, pero con una habitación principal muy amplia. El baño era pequeño y solo tenía un inodoro. En el segundo bloque: una bañera y un lavabo diminuto.

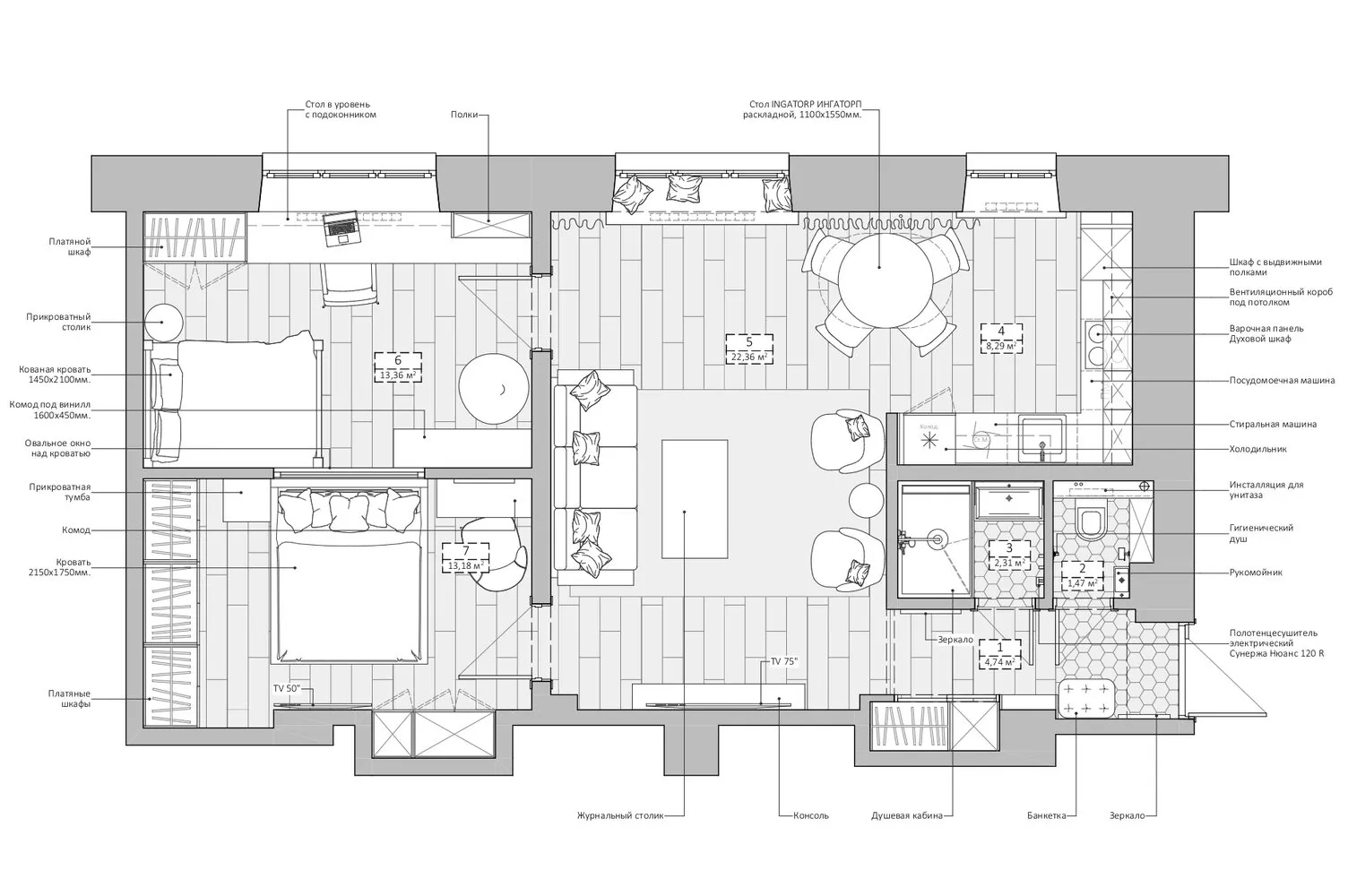
Tras la reconfiguración aumentamos el área del baño pequeño, instalando un lavamanos y previendo un sistema de almacenamiento. Nos deshicimos de la bañera y creamos una ducha funcional. La zona de sala se combinó con la cocina, para ello cortamos el gas. De una gran habitación diseñamos dos dormitorios que cumplen con las normas de vivienda (el área no debe ser inferior a 13.5 m²).
Parte de las paredes antiguas se dejaron intactas, ya que las vigas son de madera y las paredes soportan parte de la carga estructural. También ampliamos los huecos. Mantuvimos los muros transversales y reforzamos las particiones con una capa adicional de estructura metálica.

Cocina
El conjunto de la cocina se diseñó con mayor atención al funcionamiento. A la izquierda, oculta tras la puerta inferior, está la lavadora. Por encima, se previeron cajones deslizables cómodos para alimentos y productos en polvo. A continuación, un horno con superficie eléctrica independiente. En la esquina colgante se colocó una repisa giratoria redonda. Luego, el lavadero con sistema de clasificación de residuos y a la derecha del lavadero, una lavadora de platos. La cocina se completa con una columna con refrigerador empotrado.
A los clientes les era necesario un gran área de recepción para invitados. En las festividades colocan la mesa de comedor en el centro de la sala.
Sala de estar
La preferencia de los clientes para la decoración era pintar las paredes. En la nicho con televisión se hizo un espejo para dividir el espacio de pared y desviar la vista del televisor negro. En días soleados, las franjas reflejan la luz natural y el cuarto se vuelve aún más luminoso. Los rayos del sol juegan sobre el sofá, creando una atmósfera cálida en toda la zona de la sala.
«La decoración principal de la sala es la pintura 'Soñador' de Victoria Fominova. Esta pintura ya estaba en la lista de interés de la decoradora Olga Harlamova. Pero no había un entorno adecuado donde usarla. Nos faltaba precisamente un punto brillante que combinara con la cocina en este espacio. Inmediatamente recordé esta pintura. Y se integró maravillosamente con el diseño. Se convirtió en su punto focal», — comenta la diseñadora.Los clientes exigían muebles de calidad para la entrada principal. El cómodín artesanal es el ornamento de la sala. «Probablemente sea mi pieza favorita en este proyecto», — dice la diseñadora.
El sofá es muy cómodo, con reposabrazos suaves y elegantes y adornos en forma de clavos. Los sillones fueron hechos a medida en la fábrica según los bocetos del diseñador. La tela se seleccionó individualmente y luego se entregó a la producción de muebles.
Los radiadores de calefacción se cubrieron con rejillas decorativas y sobre el alféizar colocamos un colchón para poder sentarse allí.
Como revestimiento del suelo se eligió un laminado de muy buena calidad. Nadie de los invitados pudo distinguirlo del tablero de ingeniería real. Pero el precio es casi la mitad.Habitación de la hija
En la habitación de la hija era importante crear un espacio de trabajo cómodo y prever sistemas de almacenamiento para libros, ropa y artículos escolares. Se colocó un armario junto a la ventana.
Un interesante luminario colgante en la habitación de la hija se colocó a lo largo del eje del hueco, claramente visible desde la sala. Los clientes querían los huecos lo más altos posibles. Pero para que las puertas no parecieran pesadas, decidieron hacerlas con vidrio templado y mate. Las puertas tienen una altura de 250 cm.
Al lado de la cama se construyó un armario con barra y cestas deslizables abajo. Debajo del mostrador se previeron cajones deslizables cómodos para artículos escolares. A la derecha, un hermoso estante de cristal para libros y decoración. Al otro lado se colocó una mesilla para vinilos y televisor.



Dormitorio de los padres
Toda la mobiliario en la vivienda fue hecha a medida según los bocetos del diseñador, aprovechando todas las nichos disponibles. En el dormitorio maestro, por ejemplo, una de las nichos era superficial — allí se colocó un armario con cajones deslizables y barra. Se creó una sección para planchador y aspiradora. En este armario incluso hay un enchufe para cargar.
A la derecha de la cama se hizo un armario que abarca toda la pared. Además del espacio para almacenamiento, sirve como separador acústico con los vecinos. Las perillas se hicieron a medida en latón.



Baño
El baño se amplió hasta 90 cm. Encima del inodoro se colocaron todas las llaves — interruptores de agua. Se previó un lavamanos y una ducha higiénica. Además, se implementó un sistema completo de almacenamiento con estantes ajustables.


La zona del baño se revistió con azulejos hasta la altura de instalación de 120 cm, y encima se hizo pintura. Esta solución no parece opresiva visualmente en espacios pequeños.
Entrada
Toda la organización de almacenamiento se colocó en un armario con bonitos picaportes. Justo en la zona "sucia" se puso azulejo — es más práctico.

Fotógrafo: Andrei Sorokin
Estilista: Olga Harlamova
Fotos de la vivienda antes del remodelado:



Marcas presentadas en el proyecto
Cocina
Revestimiento: pintura, Little Greene; azulejos, Adex
Revestimiento del suelo: laminado, Kronotex
Muebles: mesa, IKEA; sillas, Lavsit
Garnitura: ZOV
Tecnología doméstica: Smeg, Samsung
Grifos: Omoikiri
Lavadero: Omoikiri
Luz: Favorite, Italamp
Sala de estar
Revestimiento: pintura, Little Greene; cortinas, molduras, Orac Decor
Revestimiento del suelo: laminado, Kronotex
Muebles: sillones, Chalyani; sofá, Gramercy Home; cómodín, Hooker, alféizar, taller ART Concept
Textiles y decoración: jarrones y madera, Treez Colection; pintura, AG Gallery; alfombra, Kover Store; almohadas, Filimonova Textile; decoración, Moon Stores
Tecnología: Samsung
Luz: Favourite, Italamp
Baño
Revestimiento: azulejos, Adex; pintura, Little Greene
Revestimiento del suelo: azulejos, Fap y Equipe
Muebles: Caprigo; muebles empotrados, taller ART Concept
Sanitarios: Caprigo; grifos, Hansgrohe; botón, Viega
Decoración: espejos, IF Decor; accesorios, Caprigo
Grifos: Hansgrohe
Luz: Italamp
Entrada
Revestimiento: pintura, Little Greene
Revestimiento del suelo: azulejos, Equipe
Muebles: taller ART Concept; cojín, Lavsit
Luz: Italamp
Dormitorio
Revestimiento: pintura, Little Greene
Revestimiento del suelo: laminado, Kronotex
Muebles: cama, Lavsit; armarios, taller ART Concept; mesillas de noche, Dantone Home; silla, Lavsit
Textiles y decoración: almohadas, Filimonova Textile; ropa de cama, toallas, Zè Home; pinturas, AG Gallery
Luz: ST Luce, Italamp
Habitación de la hija
Revestimiento: pintura, Little Greene
Revestimiento del suelo: laminado, Kronotex
Muebles: cama, IKEA; armarios, taller ART Concept; mesillas de noche, Design Boom; silla, Lavsit
Textiles y decoración: manta, Tkano; almohadas, Filimonova Textile; ropa de cama, Linen Textile; arte digital, Mary Sever; abstracción, Olesea Maznya; decoración, espejos, jarrones, velas, todo — Moon Stores; alfombra, Kover Store
¿Quieres que tu proyecto sea publicado en nuestro sitio web? Envía fotos del interior a wow@inmyroom.ru
Need a renovation specialist?
Find verified professionals for any repair or construction job. Post your request and get offers from local experts.
You may also like

10 clases productos para una zona de descanso acogedora en estilo IKEA

5 geniales soluciones que observamos en una casa de panel transformada

Cómo organizar el almacenamiento abierto en el baño: 5 ideas geniales

Perlas de la arquitectura socialista: 5 impresionantes edificios en diferentes rincones del mundo
Más artículos:
10 clases productos para una zona de descanso acogedora en estilo IKEA
5 geniales soluciones que observamos en una casa de panel transformada
Cómo organizar el almacenamiento abierto en el baño: 5 ideas geniales
Perlas de la arquitectura socialista: 5 impresionantes edificios en diferentes rincones del mundo
Casas al borde del precipicio: 7 edificios que te dejan sin palabras
Cómo convertir un apartamento típico de dos habitaciones en una "caramelito"
Cómo comunicarse correctamente con el jefe de obra y los constructores para no ser engañado
Configurando el escritorio de tus sueños: 11 productos con estilo IKEA