Diseño atractivo y económico para una euromansión de 40 m²
El diseñador utilizó una base neutra que complementó con acentos vibrantes en forma de mobiliario y decoración. Todo esto dentro del presupuesto limitado
La diseñadora Lyubov Morozova decoró una euromansión de 40 metros cuadrados en el distrito surportuano de Moscú. Para todo el trabajo de renovación, incluyendo el proyecto de diseño, trabajos de construcción y acabados, materiales de acabado en bruto y limpio, mobiliario, electrodomésticos, textil y decoración, invirtieron 2 millones de rublos. Les contamos cómo lograron esto.
Planificación
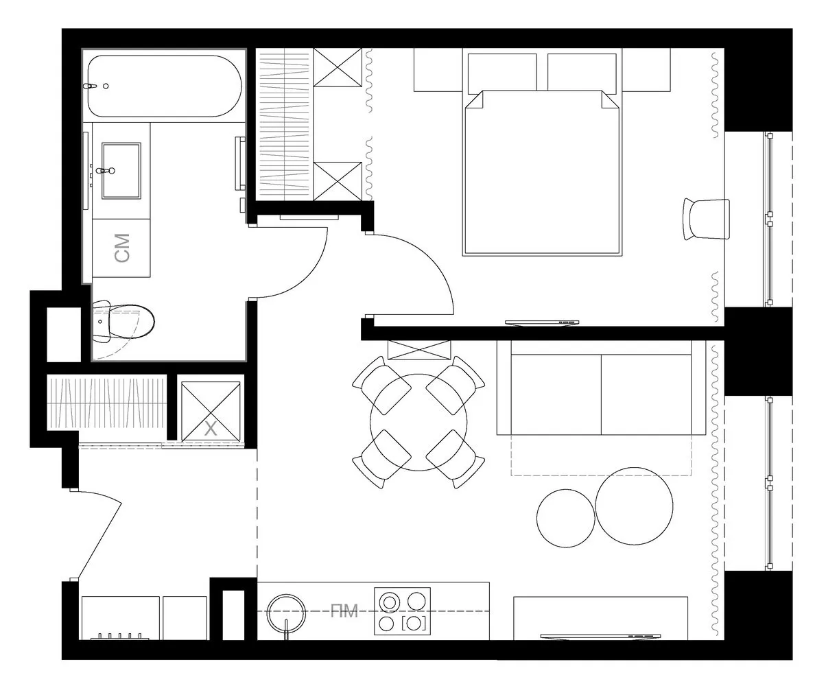
La vivienda está destinada a ser alquilada, diseñada para el confort de dos personas. La euromansión se adquirió con acabado previo: se construyeron todas las particiones, se instalaron las instalaciones y se colocó el techo de yeso, se hicieron salidas para los enchufes, interruptores y lámparas, por lo que en el desarrollo del proyecto de diseño se mantuvo la planificación original del desarrollador, adaptándose a las necesidades del proyecto de diseño.

Cocina y sala de estar
Originalmente, el desarrollador previó que la cocina y la sala de estar se ubicaran en un solo espacio. Como debajo de la vivienda hay espacios no habitables, no había restricciones para elegir el lugar del equipo de cocina. Se colocó más cerca de las instalaciones para conectar la lavadora y el lavavajillas.

La encimeras se fabricaron a medida, y todos los módulos fueron seleccionados de tamaño estándar, lo que permitió evitar el aumento del costo. A pesar de la longitud corta de la cocina de 240 cm, se logró colocar una superficie de cocción completa, un horno y una lavavajillas de 45 cm de ancho. Se eligió una ventilación que no tiene partes deslizables y se integra sin visibilidad en los armarios superiores, por lo que todos los módulos están alineados y se ven como una sola unidad.

Gracias a que el refrigerador está oculto en una repisa tras una puerta corredera frente a la cocina, se logró mantener la ligereza visual de toda la composición y dar más espacio a la zona de la sala de estar.


En el suelo de la cocina-sala de estar y la habitación principal se colocó un piso flotante de laminado de clase 33. Este tipo de revestimiento es muy resistente al desgaste y duradero, puede utilizarse tanto en espacios residenciales como en lugares públicos con alta carga. En la entrada se colocó un piso de ceramogranito, del mismo tipo de material utilizado en el baño.


Entrada
Los espejos de suelo a techo en la entrada amplían visualmente el espacio. En la zona transitoria entre la habitación principal y el baño, el espejo está adornado con un “portal” dibujado en la pared. Esta técnica permite ampliar y profundizar visualmente el pequeño espacio, añadiendo luz. En el espejo se refleja la cocina verde, lo que permite que el color pase de un cuarto a otro y los una visualmente.

El almacenamiento de ropa de invierno y calzado se organiza en la entrada con puertas espejo correderas, dentro de las que hay una toma eléctrica que puede usarse, por ejemplo, para cargar una aspiradora inalámbrica.

Lo inusual fue elegir el lugar del refrigerador, que se colocó en una repisa tras una puerta espejo corredera. Esto permitió ahorrar presupuesto y adquirir un modelo independiente, además de retirar el refrigerador del área principal de la cocina-comedor.

Toda la mobiliario y decoración, incluyendo posters y reproducciones de pinturas, se seleccionaron especialmente para este proyecto. Además de los relojes que cuelgan en la entrada, ya estaban disponibles antes del inicio de las obras y uno de sus deseos era integrarlos en el diseño.


Todas las paredes en todos los espacios, excepto la habitación de baño, están pintadas con una pintura resistente al desgaste. Esto permite mantener fácilmente la limpieza en la vivienda y actualizar el diseño sin grandes gastos si es necesario. Con los bloques de color se destacan la zona de entrada con banco, tábano colgante y perchas, la zona del dormitorio con cama, y el espejo en la zona transitoria entre la habitación principal y el baño.

Encima del espejo está instalada una lámpara con sensor de movimiento, que sirve como iluminación nocturna.
Habitación principal
En la repisa de la habitación principal se instaló un armario con sistema metálico de almacenamiento, compuesto por guías, soportes y estantes que pueden ajustarse. En la zona del armario también se previeron tomas eléctricas adicionales.

El armario está separado de la habitación principal con cortinas, ahorrando considerablemente el presupuesto. El material tanto para el armario como para las cortinas de las ventanas es el mismo, lo que permite destacar la composición simétrica alrededor de la cama y mantener una percepción coherente del espacio.


La cama en la habitación principal se eligió con mecanismo elevador y cajón incorporado para almacenamiento adicional.
Baño
En el baño se instaló una bañera completa y una encimera espaciosa de piedra artificial con lavabo integrado, debajo del cual se colocaron cajones deslizables para almacenamiento y una lavadora. Encima de la encimera se previó un soporte para decoración y artículos visibles, y encima de este, un armario con puertas espejo que abarca toda la superficie de la encimera para guardar todo lo necesario.



Fotógrafo: Julia Popkova
Estilista: Lyubov Morozova
Marcas presentadas en el proyecto
Cocina y sala de estar
Acabados: pintura, Dulux; azulejos, Kerama Marazzi
Piso: laminado, Quick-Step
Mueble: mesa, sillas y sofá, Divan.ru; estante, “Loft-set”
Encimeras: ZOV
Electrodomésticos: refrigerador, Haier; superficie de cocción y horno, Krona; ventilación, Kuppersberg
Grifos: Emar
Lavadero: Emar
Luz: Maytoni, Gauss
Textil y decoración: posters, postermarkt; cortinas, Ashley; reproducciones, ananasposter
Luz: Maytoni
Baño
Acabados: azulejos, Kerama Marazi
Piso: ceramogranito, Kerama Marazi
Mueble para baño: tábano con lavadero, “Estat”; armario con espejo, Aquanet
Sanitarios: inodoro, Sensea; bañera de fundición, Fábrica Kirov; secador de toallas, Aquanerzh
Grifos: AM.PM
Luz: Maytoni
Entrada
Acabados: pintura, Dulux
Piso: ceramogranito, Kerama Marazzi
Mueble: sistema de almacenamiento, Larvij; perchas y estantes, Arttome; zapateros, Econova; cojín, Sheffilton
Luz: Maytoni
Habitación principal
Acabados: pintura, Dulux
Piso: laminado, Quick Step
Mueble: cama, Divan.ru; sistema modular, Larvij
Textil y decoración: cortinas y guirnaldas, Ashley
Luz: ST Luce, Lumion, Maytoni
¿Quieres que tu proyecto sea publicado en nuestro sitio web? Envíanos fotos del interior a wow@inmyroom.ru
Need a renovation specialist?
Find verified professionals for any repair or construction job. Post your request and get offers from local experts.
You may also like
Más artículos:
Elementos de decoración acogedores: 10 ideas para cálidas noches otoñales
10 clases productos para una zona de descanso acogedora en estilo IKEA
5 geniales soluciones que observamos en una casa de panel transformada
Cómo organizar el almacenamiento abierto en el baño: 5 ideas geniales
Perlas de la arquitectura socialista: 5 impresionantes edificios en diferentes rincones del mundo
Casas al borde del precipicio: 7 edificios que te dejan sin palabras
Cómo convertir un apartamento típico de dos habitaciones en una "caramelito"
Cómo comunicarse correctamente con el jefe de obra y los constructores para no ser engañado