Diseñadora convirtió una vieja casa panelada de 58 m² en el sueño de una familia con dos hijas
Interior elegante y funcional
A una pareja con dos hijas les hacía falta una vivienda cómoda y espaciosa. Sin embargo, en su casa panelada, casi todas las paredes son load-bearing y las habitaciones son pequeñas. La diseñadora María Gлаголева resolvió este problema mediante sencillos trucos. Te contamos qué se hizo exactamente en este proyecto.

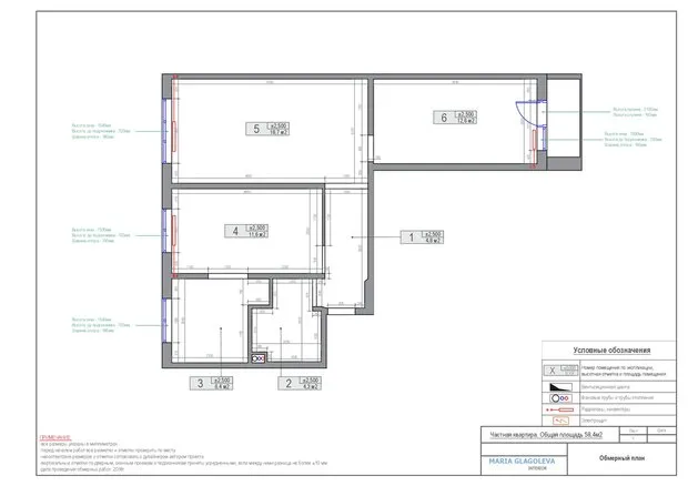
- Tipo de casa: panelada
- Metros cuadrados: 58 m²
- Habitaciones: 3
- Altura del techo: 2,5 m
- Presupuesto: 2 millones de rublos
- Diseño: María Gлаголева
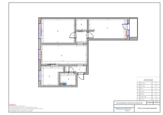
Planificación
La habitación principal y la habitación infantil se colocaron en el fondo del apartamento, y se eliminó la pared entre la sala de estar y el pasillo. Ahora la sala de estar es una sala de paso con un armario de 14 m².



Revestimiento
Se enfatizó en superficies cálidas como mármol y madera. La paleta de colores se basó en tonos blancos, azules y amarillos. De esta manera, se logró un diseño con un contraste moderado.
En todas partes excepto en el baño, las paredes están pintadas con la marca Little Greene. En la sala de estar y cocina predomina azul con blanco, mientras que en la habitación infantil se usa beige. El área frente a la zona de televisión está decorada con molduras y espejos que visualmente amplían la sala de estar.


En el suelo se colocó laminado en todas partes, y el delantal de la cocina está decorado con elegante azulejo Italon.

Almacenamiento
Se planificó el sistema de almacenamiento desde la raíz. Además del armario, cada habitación incluye armarios cerrados con puertas opacas. Esto facilita la limpieza y da un acabado completo al diseño.



Los tonos blancos y superficies semimate reflejan la luz, haciendo que el espacio parezca más aireado.

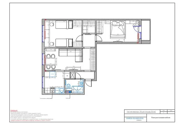
Muebles y textiles
La mayoría de los muebles están hechos a medida. También funcionan como decoración: por ejemplo, el sofá modular Soho, sillas azules Lars, la mesa de mármol Zara Home y una TV-tumbler con diseño geométrico.


En la habitación infantil se usa un candelabro colgante, mientras que en la sala de estar hay un torche dorado.
La cortina romana con estampado vibrante es el elemento principal de la habitación infantil, mientras que en la sala de estar se destaca una pintura colgada en la pared.




Need a renovation specialist?
Find verified professionals for any repair or construction job. Post your request and get offers from local experts.
You may also like
Más artículos:
Esquemas de colocación de tomas en el baño + guía detallada de un experto
Diseño de cocina moderna: 9 principios importantes
10 presupuestos gadgets para la cocina, de los que sueña cada ama de casa
Cómo proteger estructuras de madera en la finca: guía sobre pinturas, antisépticos, aceites y pinceles
Transformaciones de cajas de concreto: las mejores ideas de diseño para nuevos apartamentos
8 estilos y bien pensados vestíbulos de los proyectos de nuestros héroes
Vida sin IKEA: productos geniales a precios agradables
Cómo reducir el nivel de ruido en el apartamento: 10 consejos útiles