Cómo se organizó una pequeña apartamento de 25 m² en San Petersburgo
Resultó acogedor y bonito
La propietaria de este apartamento confió la decoración de su modesto hogar al diseñador Nikita Zub. La principal tarea era organizar un espacio cómodo para vivir y descansar en las limitadas superficies cuadradas.
Miremos qué salió.
- Habitaciones: 1
- Baños: 1
- Altura de techos: 2,5 m
- Ocupantes: 1
- Presupuesto: alrededor de 500 mil rublos
- Diseño: Nikita Zub
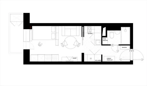
Planificación
No modificamos la planificación original. Solo añadimos una partición con puertas correderas que aísla la cocina del resto del espacio.
Antes
DespuésAlmacenamiento
En el pasillo se instaló un altillo donde puedes almacenar cosas poco usadas. También aquí hay un perchero abierto, un banco para zapatos y una consola de entrada.
Los armarios en la cocina solo cuelgan de un lado, pero llegan hasta el techo, lo que permite almacenar mucha vajilla.



Bajo la cama en el dormitorio hay cajones deslizantes, y de la sala de estar se separa esta zona con un armario de libros que funciona como cabecero, mesita y estante al mismo tiempo.
Sobre el sofá y la televisión hay estanterías, y debajo del televisor hay un cómodín estilo loft que decora el interior.




Luz
El dispositivo de iluminación central es un luminario colgado del techo con varilla. Proporciona un amplio rango de giro y tiene función de ajuste de altura. El punto de montaje del colgante está decorado con un enchufe clásico, característico de los interiores escandinavos en casas antiguas de Suecia.
También en el apartamento hay lámparas de escritorio suecas y un candelabro con difusor giratorio.



Color
El pequeño apartamento está hecho en tonos grises claros, lo que hace que el espacio apretado parezca más amplio. En la estética se perciben notas escandinavas.
Los molduras blancas, enchufes y muebles contrastan perfectamente con la suave paleta de colores.

Muebles y decoración
La cocina, los armarios, la cama y la mesita están hechos a medida. Adicionalmente se planea comprar estanterías, una mesa y sillas plegables de IKEA para almacenarlas en el armario.
La textil y la decoración se seleccionaron principalmente en IKEA.




Need a renovation specialist?
Find verified professionals for any repair or construction job. Post your request and get offers from local experts.
You may also like
Más artículos:
Cómo hacer que el aire de la casa sea más limpio: 7 métodos efectivos
Cocina en un apartamento de estilo Khrushchyov: tres variantes óptimas de distribución
7 errores principales al construir una casa de campo
5 errores que es mejor no cometer al decorar una pequeña vivienda
7 consejos para renovar tu casa de campo
11 importantes detalles del remanufactura de una vivienda de estilo krushchyovka
Arquitecto-diseñador nombró los estilos más populares en diseño en 2022
El arquitecto nombró los errores comunes en la renovación de la cocina