Elegante interior en una pequeña vivienda antigua
Así quedó con estilo y modernidad
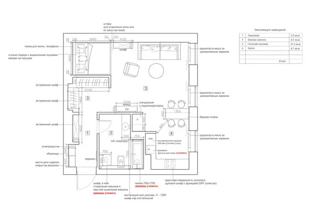
LUGAR: MoscúMETRADO: 48 m²HABITACIONES: 1DISEÑO: FAOMIESTILISTA: Kira ProkhorovaFOTOS: Alexander VolodinPlanoEl espacio fue diseñado como estudio: la cocina, sala de estar y dormitorio están ubicados en una sola parte. La división se logra mediante la luz, mobiliario y decoración. La mayoría de los objetos fueron fabricados según los bocetos de Svetlana Shaldybina.

Las cortinas ligeras suavizan el interior y ofrecen una vista impresionante a la finca Dolgorukov-Bobrin.
PasilloEn el recibidor hay un sofá empotrado con una habitación cerrada para calzado. La pared sobre el sofá está decorada con paneles de tela con ganchos para ropa de abrigo. La iluminación del techo no está presente: decidieron limitarse a dos lámparas junto al espejo y en la pared.

En los armarios más alejados funciona una iluminación automática integrada. En los armarios hasta el techo se colocan todos los artículos, maletas e inventario doméstico.
Sala de estarEn la nicho de la sala de estar se instaló un espacio para dormir con cajones deslizables para almacenamiento. Detrás de las almohadas hay una repisa para teléfono y libros, y en la pared hay lámparas. Esta zona se separa de la habitación principal con cortinas semitransparentes, y en el techo hay una nicha para un sistema de persianas ocultas.
Aquí hay un sofá clásico con almohadas contrastantes, además de un armario con puerta espejada que visualmente divide el espacio.
CocinaEn la cocina se colocó mobiliario verde, los armarios superiores con iluminación interna, un delantal de piedra y una encimera. Encima de la superficie de cocción se instaló una extractora integrada con una repisa para artículos pequeños.


La barra con patas negras y la encimera fueron hechas bajo pedido, mientras que las lámparas y lámparas de pared se heredaron.

BañoEl baño fue decorado con azulejos gráficos de tipo "jabalí" con superficie mate. En el suelo se colocó un ceramogranito con diseño y bordes envejecidos, mientras que el techo está cubierto con perfiles de yeso.

Un espejo con marco metálico visualmente amplía el espacio y aumenta la altura del techo. Encima del inodoro hay un armario con peines, y a la derecha de la instalación sanitaria se encuentra otro armario con lavadora y secadora.

Need a renovation specialist?
Find verified professionals for any repair or construction job. Post your request and get offers from local experts.
You may also like
Más artículos:
Diseño de cocina ergonómico y seguro + esquemas: 6 consejos
Cómo diseñar una entrada: consejos geniales + esquemas
Diseño de apartamento de 29 m² con muchas ideas creativas
6 consejos para organizar el almacenamiento en el baño sin ruido visual
Cómo se renovó increíblemente una Stalinca de 52 m² (fotos antes y después del remodelado)
Cómo crear una zona de descanso en la finca: 13 ideas geniales
Unidad de 1 habitación donde caben oficina, guardarropa, lavandería y 2 baños
Cómo ahorrar espacio en un baño pequeño: 10 ideas