Sencilla pero llamativa vivienda para estudiante en San Petersburgo
Interior masculino elegante
En esta vivienda de una habitación en la isla de Vasiliev, vive un estudiante músico de 18 años, por lo que el enfoque principal del proceso de renovación fue la componente creativa.
Así se consiguió un interior masculino, pero al mismo tiempo ligero y elegante.
LUGAR: San PetersburgoTIPO DE VIVIENDA: monolítico-cárcamo
METRADO: 43,9 m²
PRESUPUESTO: 2,5 millones de rublos
DISEÑO: Julia Kaufeldt
FOTOS: Ivan Sorokin

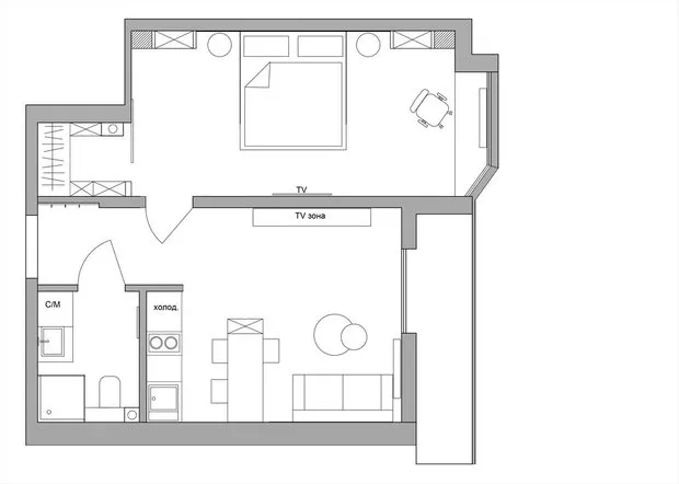
Plano
Originalmente se planeó organizar dos baños en la vivienda, pero decidieron hacer una habitación de guardarropa en lugar del segundo. Se puede acceder a ella desde la habitación aislada. Allí mismo junto a la ventana, se previó un lugar de trabajo completo.

En el baño combinado se logró colocar una ducha con bandeja y barandilla, así como también un lavabo y un inodoro.

Revestimiento
Las paredes se pintaron con una pintura de interior de tono neutro para que más adelante se puedan colgar cuadros llamativos. Esto permitió decorar el espacio con textura de madera y muebles contrastantes.

La encimera del lavabo en el baño se fabricó con madera de pino a medida, y el suelo y las paredes se revestieron con cerámica granítica.


Al lado del espejo de madera se colocó un reflector colgado de piel.

Muebles
La vivienda se decidió no llenar con grandes armarios y sistemas de almacenamiento, ya que todas las cosas necesarias cabían perfectamente en la habitación de guardarropa.


Los artículos adicionales se colocaron en un estante empotrado y mesitas de noche.

La televisión y la cocina se compraron en IKEA, mientras que el resto de la madera y las puertas fueron pedidas según los bocetos del diseñador.


Los principales elementos de éste diseño sencillo pero creativo fueron:
· fotografía de la torre de Anton Galahov;
· pintura hecha por Julia Kaufeldt;
· objeto artístico de un fotógrafo local con imagen del símbolo de la ciudad.

Detalles de esta vivienda (24 minutos)
Need a renovation specialist?
Find verified professionals for any repair or construction job. Post your request and get offers from local experts.
You may also like

12 ideas de almacenamiento en apartamento pequeño, que observamos en Pinterest

Los 8 mejores consejos para decorar tu zona de verano

Cómo ahorrar en el presupuesto de una reforma en una vivienda pequeña: 7 consejos de expertos con un ejemplo real

Cómo elegir la paleta de colores para cada parte de un apartamento
Más artículos:
12 ideas de almacenamiento en apartamento pequeño, que observamos en Pinterest
Los 8 mejores consejos para decorar tu zona de verano
Cómo ahorrar en el presupuesto de una reforma en una vivienda pequeña: 7 consejos de expertos con un ejemplo real
Cómo elegir la paleta de colores para cada parte de un apartamento
Consejos simples que ayudarán a decorar un interior atemporal
Impresionante casa que construyeron por sí mismos sin diseñadores ni proyectos listos
Un increíble remodelado de baño en un apartamento de estilo Khrushchyov: cómo todo cabó en 3 m²
Cómo se decoró una mansarda con acentos llamativos y paredes de lana