Estudio blanco increíble de 27 m² con planificación compleja
Un espacio mínimo y mucho luz: así resultó esta vivienda de una sola habitación con forma no estándar según el proyecto del diseñador Valia Voinova.
Aquí se logró alojar todo: la barra con TV y el área de trabajo con chimenea. Veamos cómo lo hicieron.
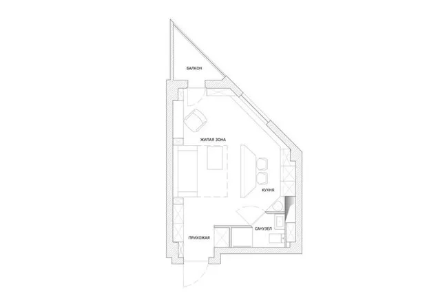
ReplanificaciónEl propietario, un joven presentador de televisión, soñaba con una estudio creativo, y eso se convirtió en su principal deseo en el diseño. La fuente de inspiración principal, el tercer anillo vial desde la ventana, incluso fue incorporada al interior.
La pared inclinada se utilizó con éxito mediante una división junto al baño. El centro del estudio es un alto mostrador con zonas de comedor y sofá. La zona de la cocina y sala se enfatiza con una cadena de lámparas colgantes.

De esta manera, en la vivienda de una sola habitación se creó su propio “anillo vial”: el vestíbulo se fusiona con la zona de vida, mientras que las demás se conectan naturalmente y forman un círculo completo.


CocinaLa cocina permaneció en el mismo lugar donde estaba originalmente, pero no ocupa mucho espacio debido a su necesidad limitada.

La superficie de piedra que imita el concreto incluye la encimera y el mostrador. También aquí se encuentran el refrigerador integrado, la cocina con dos placas y una microondas. Detrás de las puertas está la lavadora, que no cabía en el diminuto baño.
BañoCon solo dos metros cuadrados, se logró organizar una habitación de baño con lavabo, ducha y inodoro.

Las paredes están recubiertas con azulejos blancos en forma de hexágonos, y lo que hace que este espacio tan pequeño sea más visualmente impactante es la grout negra, marco de espejo y accesorios para baño del mismo tono.
RevestimientoLa decoración resultó bastante minimalista. Una pared espejo frente a la ventana hace que el espacio parezca más luminoso y profundo, mientras que todo el estudio parece una gran sala de estar.
El color blanco no fue elegido al azar — ayuda a establecer la geometría correcta y corregir la distribución original del desarrollador.
MuebleLos muebles están fabricados según bocetos personalizados — incluso se colocó un horno eléctrico frente a la ventana.

La mayor parte del espacio está ocupada por la zona de sofá, que puede transformarse en un dormitorio plegable cuando sea necesario.



Una mesa integrada en el armario es una excelente alternativa a un despacho, permitiendo trabajar desde casa.

Need a renovation specialist?
Find verified professionals for any repair or construction job. Post your request and get offers from local experts.
You may also like

De una «doble habitación» en un viejo edificio se creó una sala moderna y espaciosa

Elegante loft en una pequeña vivienda de una habitación de 32 metros cuadrados

Cómo hicieron un diseño económico en una casa de estilo хрущевка en 2 meses

No saber qué es una casa de estilo krushchev: diseño moderno y elegante
Más artículos:
De una «doble habitación» en un viejo edificio se creó una sala moderna y espaciosa
Elegante loft en una pequeña vivienda de una habitación de 32 metros cuadrados
Cómo hicieron un diseño económico en una casa de estilo хрущевка en 2 meses
No saber qué es una casa de estilo krushchev: diseño moderno y elegante
Cómo se organizó la sala de estar, comedor, dormitorio y oficina en una habitación de un apartamento de estilo hruščëvka
Antes vs después: cómo cambiaron los baños tras el remodelado
Estilo studio de 18 m², en el que milagrosamente caben todas las cosas necesarias para una vida cómoda
Cómo superar las desventajas de una pequeña casa de estilo chruschev