Reparación de apartamento pequeño con una ventana por 520 mil rublos
En condiciones de presupuesto y metraje limitados, el diseñador logró crear un espacio acogedor
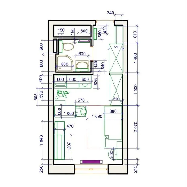
Hoy hablaremos de un proyecto inusual que la diseñadora Zhanna Studenцova decidió implementar. Tuvo que trabajar con los datos iniciales proporcionados por el constructor: un apartamento pequeño y largo con una ventana, paredes blancas y suelo de laminado beige.
En condiciones de presupuesto y metraje limitados, el diseñador logró decorar un espacio acogedor. El proyecto con una mano ligera de la dueña recibió el nombre de "Pequeñín" y costó solo 520 000 rublos.
Replanificación
La característica del apartamento debía reflejar la personalidad de su dueña: elegante, alegre y trabajadora. Por esta razón, Zhanna decidió enfocarse en la funcionalidad del interior, sistemas de almacenamiento y iluminación. Todo el mobiliario se compró en IKEA para ahorrar presupuesto.

Dormitorio y sala de estar
El dormitorio transformable permite trabajar durante el día y dormir por la noche, ya que en el día se convierte en un sofá. Se eligió un sofá con un colchón cómodo que no requiere esfuerzo especial para su transformación.

En esta habitación ya existían sistemas de almacenamiento listos, mientras que en la sala de estar se instalaron sistemas con perchas colgantes y fachadas blancas/maderables.

Armario
El armario se organizó en el vestíbulo a medida. Incluye tres divisiones, una de ellas es para el área de servicios. También se hizo un perchero a medida: se colocó sobre la madera abierta y se guardó allí el tablero eléctrico.


Solución cromática
La reparación del constructor ya incluía la división de habitaciones mediante cerámica granítica y laminado. El diseño original solo se enfatizó con una barra con sillas de terracota. Este tono también se complementó con un verde azulado intenso para contraste.
Decoración
El marco con una impresión en papel acuarela colgado sobre la barra, completa el interior de manera concisa. Se colocó verticalmente para que la imagen del bosque nebuloso se volviera abstracta, y la pared parecía más viva y dinámica.



Need a renovation specialist?
Find verified professionals for any repair or construction job. Post your request and get offers from local experts.
You may also like

Mínimo de adornos y estilo escandinavo: qué árboles de Navidad eligieron los bloggers

Diseño de interiores brillante sin diseñador: ideas geniales y errores fastidiosos

Cómo elegir una chimenea para el apartamento: todo lo que no te contarán en la tienda

De una acogedora y muy bonita habitación individual se hizo un confortable apartamento de dos habitaciones
Más artículos:
Mínimo de adornos y estilo escandinavo: qué árboles de Navidad eligieron los bloggers
Diseño de interiores brillante sin diseñador: ideas geniales y errores fastidiosos
Cómo elegir una chimenea para el apartamento: todo lo que no te contarán en la tienda
De una acogedora y muy bonita habitación individual se hizo un confortable apartamento de dos habitaciones
Miniestudio de 29 m² que provocó opiniones polémicas sobre belleza y comodidad
Reforma económica de una sola habitación de 39 m²
Estilo microestudio de 28 m² con todo incluido
Antes y después: incluso la apartamento más «desperdiciado» puede lucir muy genial tras una reforma