Estilo microestudio de 28 m² con todo incluido
Incluso una gran cama
En el espacio reducido de una microapartamento es difícil tener suficiente espacio para moverse libremente, siempre se siente que falta sitio. Pero esta vivienda no parece apretada a pesar de su reducido área de 28 m².
Gran cantidad de luz, espacio y muebles elegantes — así los diseñadores Oksana Stanislavova y Alena Dzutseva resolvieron el problema del espacio de vivienda limitado.
PlanoEl propietario de la microapartamento, un joven estudiante, pidió a la estudio SODA que lo decorara de forma funcional y elegante. Además de la cocina y dormitorio, necesitaba organizar un sistema de almacenamiento práctico.
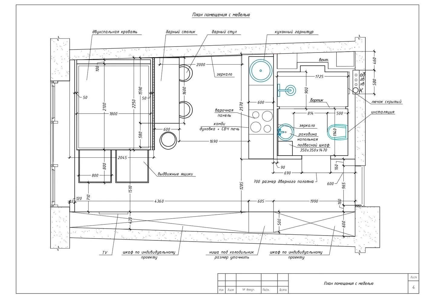
La forma original del apartamento es trapezoidal: ancha en la entrada y estrecha cerca de la ventana. Entre las ventajas del diseño inicial se puede destacar el techo alto, una gran ventana y que sea uno de los últimos pisos. Los diseñadores aprovecharon estos elementos a su favor: colocaron la habitación en la ventana y la separaron de la cocina con una pared divisoria, mientras que cerca de la entrada se instaló el baño.
Cocina y bañoDado que el dueño planeaba cocinar poco, decidieron instalar una plancha de cocción con solo dos hornallas.
Visualmente parece que hay demasiados armarios, pero en realidad no es así. El primer nivel está completamente ocupado por la máquina de lavar ropa, lavavajillas y horno. En el nivel superior se guardan los platos y utensilios de cocina, y el refrigerador está integrado en el armario.


En el baño, la vidriera y el granito estilo piedra se combinan armoniosamente con una lavadora colocada en el suelo. La cabina de ducha de 90 cm de ancho tiene una gran ventana de vidrio, por eso no se colocó puerta. El baño en general resultó minimalista, como prefieren la mayoría de los hombres.

Sistema de almacenamientoEl cliente pidió especial atención al sistema de almacenamiento, por eso todas las piezas de mueble fueron fabricadas según los bocetos. Se instaló un armario gigante que ocupa toda la pared con una longitud de 7,5 m y una altura de 3 m. Esto permitió almacenar no solo ropa, sino también electrodomésticos y una zona de televisión.
Para almacenar ropa estacional se colocaron altas y funcionales estanterías.
Revestimiento y decoraciónPara el revestimiento, los diseñadores eligieron pintura, granito cerámico, vidrio, cuero, textiles y otros materiales de calidad. Al combinarlos hábilmente en el interior, lograron un diseño decorativo delicado y llamativo. Por ejemplo, los sillones de cuero, espejo y lámpara con marco de latón destacan especialmente en el espacio, sin mencionar la barra de piedra artificial.

Gracias al diseño creativo, las piezas de mueble en la cocina y el armario parecen monocromáticas: los armarios de cocina y el delantal tienen brillo brillante, mientras que el armario es parcialmente mate. Sin embargo, todas las partes del espacio se perciben como una sola unidad.

Need a renovation specialist?
Find verified professionals for any repair or construction job. Post your request and get offers from local experts.
You may also like
Más artículos:
Cómo en una estudio de 38 m² se combinaron el loft y la clásica creando incluso un vestidor
5 errores comunes en el auto-renovación. Lo que no debes hacer en un edificio de apartamentos
5 microhabitaciones tras paredes de vidrio
Cómo elegir textil y decoración para la cocina sin arruinar el diseño
Cómo hacer que una entrada sea cómoda y elegante: consejos invaluables de un arquitecto
Almacenamiento en una habitación: 6 ideas funcionales
Baño de 6 m² presupuestario pero muy elegante hecho por uno mismo
Una cocina elegante por 63 mil rublos con muebles de IKEA