6 Cool Ideas for a Small Apartment, Inspired by a Tiny 20 m² Studio
Get inspired and take note of interesting ideas from the project
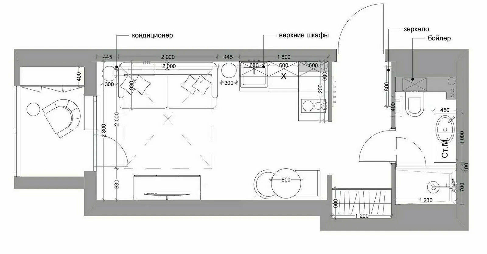
The area of this studio is only 20 sq. m. However, designer Maria Sablina managed to design a cozy interior with the atmosphere of a country house and arrange all necessary functional zones. We show great ideas from the project that are definitely worth your attention.
Combining Contrasting ElementsOne of the key features of the interior was a harmonious combination of contrasting elements. The designer used various materials, textures and shades. The play of clear lines on the carpet, tablecloth and apron combined with soft, flowing forms in paintings and curtains gives the interior dynamism and individuality.
Space IntegrationOne of the significant changes was removing the door opening from the entrance hall. Instead of traditional zoning, the designer preferred space integration. This decision significantly expanded visual boundaries and greatly improved room functionality.
No Upper CabinetsA bold move — the absence of upper cabinets on one of the kitchen walls. Thanks to this, ceilings look higher and the room doesn't seem overloaded. This approach creates lightness and airiness, which are essential in a small apartment.
Hidden AppliancesTo use the limited space optimally, compact appliances were chosen. A small refrigerator is hidden under the countertop of the kitchen cabinet behind a curtain, providing both functionality and aesthetic unity. Similarly, the washing machine was hidden in the bathroom — this solution is not only budget-friendly but also beautiful: an additional drape looks very cute and adds coziness.
Sofa BedInstead of a large bed, a folding sofa was chosen, which is perfect for small apartments. It saves space and depending on the need can be used for rest, guest accommodation, daytime or nighttime sleep.
Thoughtful StorageBy avoiding bulky storage systems, the designer planned a closet niche in the hallway and added a chest of drawers under the TV in the room, while also providing a utility cabinet on the balcony. This approach helps maintain cleanliness and order in the space without excessive load.

Small apartments can be stylish and comfortable if a creative approach is used in their decoration. Applying unconventional solutions allows for efficient use of every square meter and creates a unique space that reflects the owner's personality.
Need a renovation specialist?
Find verified professionals for any repair or construction job. Post your request and get offers from local experts.
You may also like

The Incredible Story of the Morozov Dynasty, Who Built a Textile Empire

House on Kotel'nicheskaya Embankment

Charity of Russian millionaires: how the Morozovs built hospitals and changed Moscow's face

Tragic Ending: How the Owner of a Luxurious Mansion, Alexei Morozov, Died Without Money for Transportation
More articles:
The Incredible Story of the Morozov Dynasty, Who Built a Textile Empire
House on Kotel'nicheskaya Embankment
Charity of Russian millionaires: how the Morozovs built hospitals and changed Moscow's face
Tragic Ending: How the Owner of a Luxurious Mansion, Alexei Morozov, Died Without Money for Transportation
Before and After: From a Separate Diminished Bathroom to a Beautiful Light Interior
Real Example: What to Consider When Renovating an Old Building
What Mistakes Can Ruin a Renovation in Old Housing: Real Case
5 Really Cool Solutions We Spotted in a 35 sqm Studio Apartment