NEW SPIRIT OF LA GÉODE BY LOCI ANIMA
At the heart of Parc de la Villette in Paris's 19th arrondissement, La Géode, an icon of architectural design created by Adrian Feinssinger in 1985, has been reimagined by the Paris-based studio Loci Anima under the direction of Françoise Reynaud. The renovation completed in December 2024 goes beyond traditional cinema, offering a multi-sensory immersive experience unlike any other.
New Architectural Language for Immersion
While the IMAX experience long defined La Géode, this renovation transforms the entire space into an architectural illusion, starting with its dichroic facade structure. Designed to interact with natural light, the geometric façade resembles modern stained glass, combining transparency, reflection, and chromatic depth in a sculptural monolithic expression.
Upon entering, visitors encounter a dreamy confectionery space, a prelude to the upcoming sensory journey. This playful detail connects architecture and imagination, guiding guests toward the majestic semi-spherical hall where light, shadow, and geometry create a show that begins even before the film starts.
Engineering Meets Brutal Charm
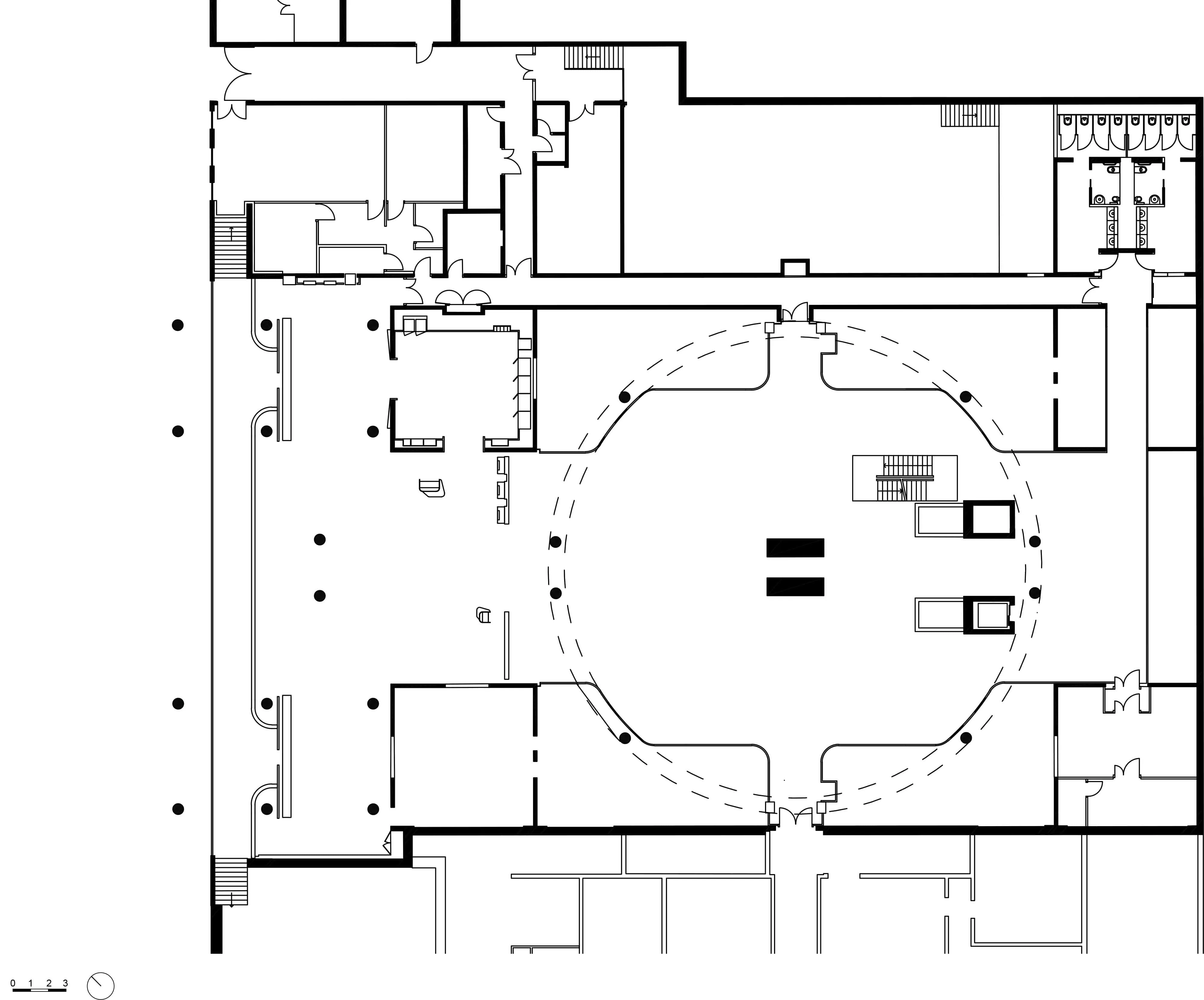
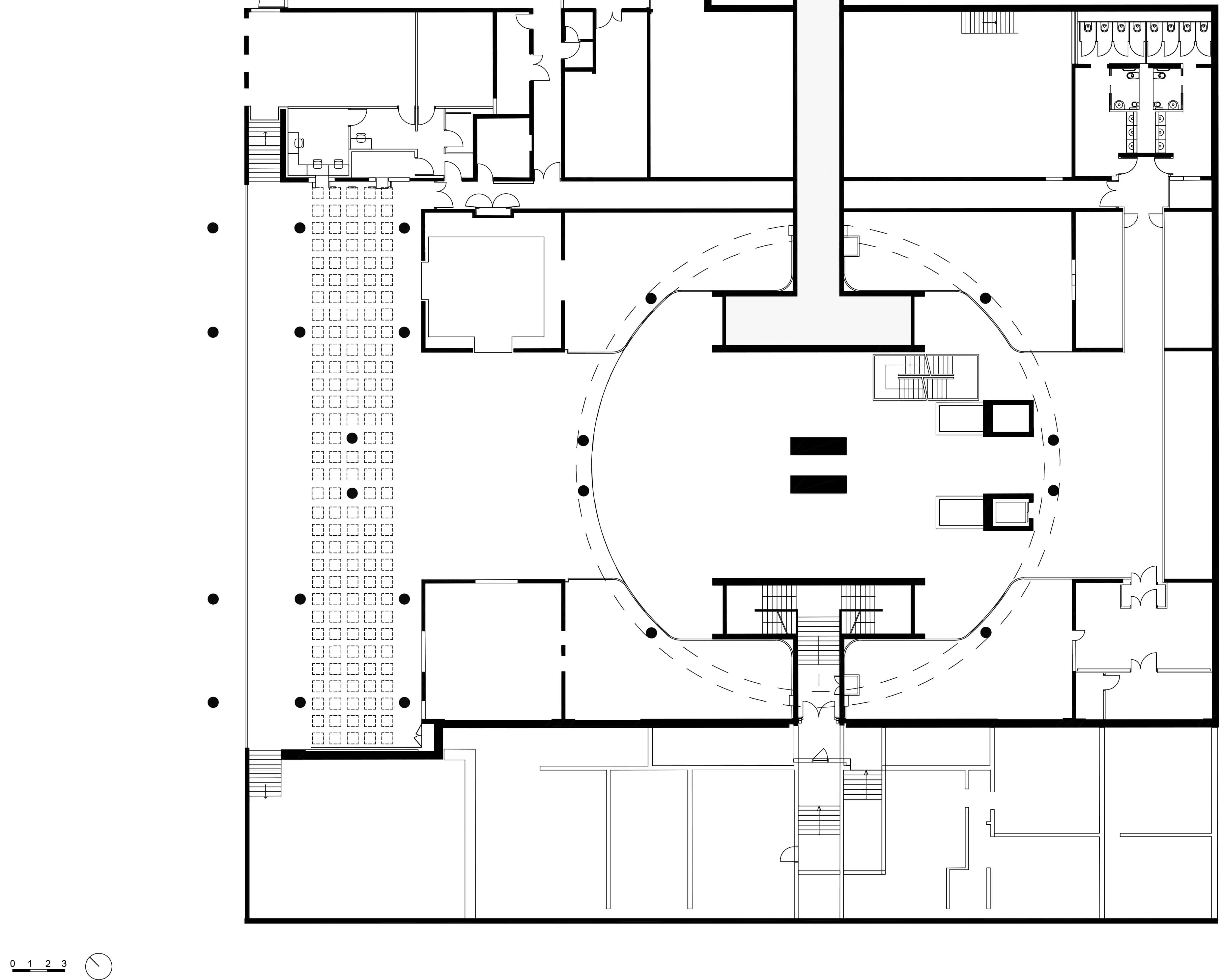
The original concrete 'mushroom-shaped' structure of La Géode, an engineering marvel supported by just 4 square meters of central column, was preserved and celebrated. New elements including IMAX projector platforms and a reception area were integrated with precise structural balance. The brutal spirit of La Géode remains visible and revered, presented as a concrete cathedral.
Inside, 360-degree projection envelops the walls, encouraging exploration and interaction. A floating 11-meter staircase and panoramic elevators guide guests through the structure, revealing unique perspectives on the iconic geodesic dome.
Cinema of a New Generation: Technology Meets Comfort
The renovated hall introduces a massive 1000 m² semi-spherical screen, specifically designed for 180° IMAX 4K laser projection system, supported by the IMAX 6.0 audio system. Capacity has been reduced from 400 to 286 seats for more space and enhanced comfort, with individual reclining chairs offering six different tilt angles.
Before the show, the dome projects an immersive virtual journey through Parc de la Villette, blurring the boundaries between external landscape and internal illusion.
Technical Specifications
-
Screen: 27-meter diameter dome, 559 micro-perforated aluminum panels
-
Image System: IMAX 180° 4K laser
-
Audio: IMAX 6.0
-
Use: Cinema and conference hall
-
Construction Period: 24 months
Photo © Adrian Dast, Loci Anima
Photo © Adrian Dast, Loci Anima
Photo © Adrian Dast, Loci Anima
Photo © Adrian Dast, Loci Anima
Photo © Adrian Dast, Loci Anima
Photo © Adrian Dast, Loci Anima
Photo © Adrian Dast, Loci Anima
Photo © Adrian Dast, Loci Anima
Photo © Adrian Dast, Loci Anima
Photo © Adrian Dast, Loci Anima
Photo © Adrian Dast, Loci Anima
Photo © Adrian Dast, Loci Anima
Photo © Adrian Dast, Loci Anima
Photo © Adrian Dast, Loci Anima
Photo © Adrian Dast, Loci Anima
Photo © Adrian Dast, Loci Anima





Need a renovation specialist?
Find verified professionals for any repair or construction job. Post your request and get offers from local experts.
You may also like
More articles:
Main Pros and Cons of Living in a Hotel
Main Keys for Integrating Corridors and Passages
Main Types and Sizes of Wardrobes
Main Reasons Why People Install Residential Elevators
Main Granite Colors You Should Know
Main Interior Design Trends We'll See Everywhere in 2023
House Under a Mango Tree by Ujval Panchal and Kinni Soni in Bhopal, India
Multiple Advantages of PVC Flooring in Interior Design