SUBBOTA Project Apartment in Moscow, Russia - Ideas for Home - REMONTNIK.PRO

SUBBOTA Project Apartment in Moscow, Russia

Share:
This page is also available in the following languages:🇷🇺🇺🇦🇫🇷🇩🇪🇪🇸🇵🇱🇨🇳🇮🇳🇯🇵
Modern living room with minimalist design, white walls, wooden accents and a TV on the wall, perfectly suited for a contemporary home interior

Project: SUBBOTA Apartment
Architects: PROJECT905
Location: Moscow, Russia
Area: 559 sq ft
Year: 2024
Photography: Varvara Toplennikova

SUBBOTA Project Apartment

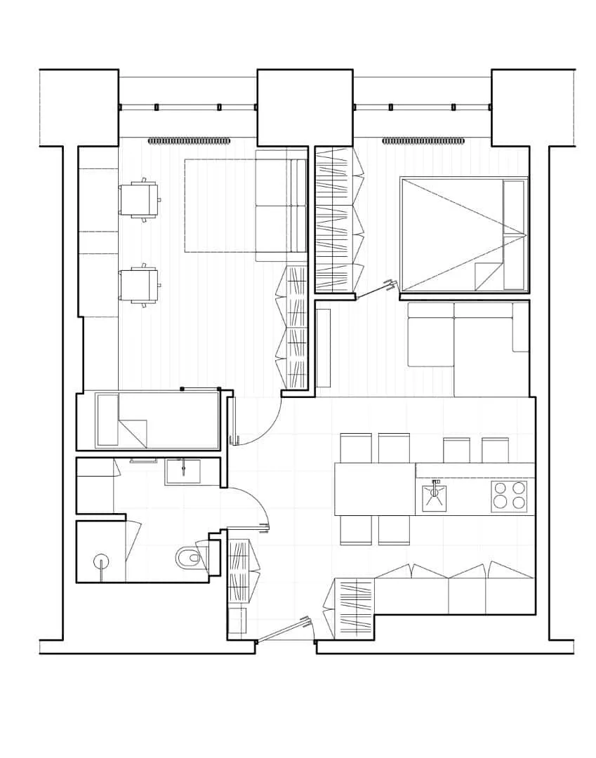
The 52 sq m apartment was designed for a married couple with two children and a dog as temporary living space. The family planned to move to a larger apartment within two years.

Our task in this project was to find solutions that would make life in a small space as comfortable as it is in a large one.

Despite the limited area and only two windows, clients requested all necessary functional zones: a kitchen-dining room, a TV lounge area, parents' bedroom and children's room, including a foldable sofa for a nanny and areas for play and study, a bathroom with a laundry area, and numerous storage systems.

However, the aesthetic quality of space is just as important to clients as its functionality since the family spends a lot of time in it.

The main room combines functions of living room, dining area, kitchen and hallway. We integrated the kitchen cabinets and wardrobe into a single wooden structure placed at the entrance to the room.

The dining table is attached to the kitchen island. A compact corner sofa forms a relaxation zone. It's very difficult to maintain order in small spaces, so we designed many hidden storage systems.

Despite the small size, this room looks spacious. It is illuminated by natural light passing through an upper window in the internal partition separating the lounge and parents' bedroom. The parents' bedroom is the smallest room in the apartment, with one of its walls completely occupied by a built-in wardrobe. The white color and lack of details on the facades hide spacious storage compartments.

Mirrors behind the bed visually enlarge the space. The furniture in the children's room is designed as a multifunctional wooden object. The study desk connects with the double bed. Due to the small size of the apartment, multifunctionality was a priority.

The interior is minimalist, even ascetic. The same floor tiles are used in the kitchen and bathroom, white walls, and furniture is made from wood of the same color as the floor.

Clients planned to rent out this apartment in the future, but staying there turned out so comfortable that they decided to stay.

- Project description and photos provided by PROJECT905

SUBBOTA Project Apartment in Moscow, RussiaPhotography © Varvara Toplennikova
SUBBOTA Project Apartment in Moscow, RussiaPhotography © Varvara Toplennikova
SUBBOTA Project Apartment in Moscow, RussiaPhotography © Varvara Toplennikova
SUBBOTA Project Apartment in Moscow, RussiaPhotography © Varvara Toplennikova
SUBBOTA Project Apartment in Moscow, RussiaPhotography © Varvara Toplennikova
SUBBOTA Project Apartment in Moscow, RussiaPhotography © Varvara Toplennikova
Modern living room with minimalist design, white walls, wooden accents and a TV on the wall, perfectly suited for a contemporary home interiorPhotography © Varvara Toplennikova
SUBBOTA Project Apartment in Moscow, RussiaPhotography © Varvara Toplennikova
SUBBOTA Project Apartment in Moscow, RussiaPhotography © Varvara Toplennikova
SUBBOTA Project Apartment in Moscow, RussiaPhotography © Varvara Toplennikova
SUBBOTA Project Apartment in Moscow, RussiaPhotography © Varvara Toplennikova
SUBBOTA Project Apartment in Moscow, RussiaPhotography © Varvara Toplennikova
SUBBOTA Project Apartment in Moscow, RussiaPhotography © Varvara Toplennikova
SUBBOTA Project Apartment in Moscow, RussiaPhotography © Varvara Toplennikova
SUBBOTA Project Apartment in Moscow, RussiaPhotography © Varvara Toplennikova
SUBBOTA Project Apartment in Moscow, RussiaPhotography © Varvara Toplennikova
SUBBOTA Project Apartment in Moscow, RussiaPhotography © Varvara Toplennikova
SUBBOTA Project Apartment in Moscow, RussiaPhotography © Varvara Toplennikova
SUBBOTA Project Apartment in Moscow, RussiaPhotography © Varvara Toplennikova
SUBBOTA Project Apartment in Moscow, RussiaPhotography © Varvara Toplennikova
SUBBOTA Project Apartment in Moscow, RussiaPhotography © Varvara Toplennikova
SUBBOTA Project Apartment in Moscow, RussiaPhotography © Varvara Toplennikova
SUBBOTA Project Apartment in Moscow, RussiaPhotography © Varvara Toplennikova

Layouts

SUBBOTA Project Apartment in Moscow, RussiaPhotography © Varvara Toplennikova
SUBBOTA Project Apartment in Moscow, RussiaPhotography © Varvara Toplennikova

Need a renovation specialist?

Find verified professionals for any repair or construction job. Post your request and get offers from local experts.

You may also like