Vor und nach: Mutiger Kücheninterior in einer Hruschtschowka
Die Atmosphäre des frühen 20. Jahrhunderts kann nicht nur schön, sondern auch funktional sein
In dieser Wohnung in Kaliningrad hat Designerin Olga Schtennikowa ein Interior gestaltet, das von der Atmosphäre deutscher Wohnungen des vergangenen Jahrhunderts inspiriert ist. Anspielungen auf den Jugendstil finden sich in dekorativen Details und Lösungen, die diesen Raum einzigartig machen.
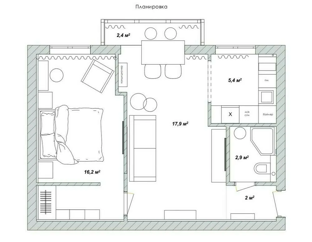
Foto vor der Renovierung Die Küche und die Wohnzimmer wurden vereint, wobei ein Weingang zwischen beiden Räumen eingefügt wurde, der die Kochzone optisch hervorhebt. Dadurch bleibt das Gefühl der Einheit erhalten, gleichzeitig sind die Funktionen klar getrennt.

Das Küchen-Garnitur wurde maßgeschneidert, was es ermöglichte, alle Details zu planen und einen komfortablen Raum zu schaffen, selbst ohne Deckenregale. Alle Haushaltsgeräte sind hinter den Fronten verborgen: Es gibt eine Geschirrspülmaschine, einen Einbaukühlschrank, eine Mikrowelle, einen Boiler und sogar eine Waschmaschine.
Design: Olga SchtennikowaAls Standard für die Küchenfront wurde eine ungewöhnliche Lösung gewählt – eine Arbeitsflächen aus natürlichem Granit, die sich sanft in die Wand einfügt und mit einer flächigen Fliese kleiner Format endet.
Design: Olga SchtennikowaDas Lagersystem ist so organisiert, dass möglichst viel freier Raum erhalten bleibt. Anstelle von offenen Schränken wurden die Hauptabteile in einem Schrank neben dem Kühlschrank platziert, und Geschirr wird in ziehbaren Schubladen bei einem Fenster aufbewahrt.
Diese Lösung macht die Küche optisch leichter und hebt den stilvollen Minimalismus des Raumes hervor.
Design: Olga Schtennikowa
Design: Olga SchtennikowaDie Gesamtpalette ist gedämpft, doch der Weingang zwischen Küche und Wohnzimmer verleiht Dynamik und Tiefe, harmonisch in das Projekt-Konzept eingepasst.
Design: Olga SchtennikowaDie Küche ist ein Beispiel dafür, wie Ästhetik der Vergangenheit und Komfort der Gegenwart miteinander verbunden werden können, ohne den Raum zu überladen. Eine gute Raumnutzung und gut durchdachte Lösungen machen ihn komfortabel, während vintage-Elemente Individualität verleihen.
Need a renovation specialist?
Find verified professionals for any repair or construction job. Post your request and get offers from local experts.
You may also like

„Vor und nachher”: Wie ein Bloggerin eine zerstörte Zweizimmerwohnung in eine stilvolle Wohnung verwandelte

6 Quadratmeter statt zerstörter Küche: Wie man einen gemütlichen Raum in einem Backsteinhaus schafft

Schrank aus Nichts: Wie man 5 qm in einem Ziegelhaus nutzt

Küchen mit Insel: 5 tolle Beispiele aus den Entwürfen von Designern
Weitere Artikel:
„Vor und nachher”: Wie ein Bloggerin eine zerstörte Zweizimmerwohnung in eine stilvolle Wohnung verwandelte
6 Quadratmeter statt zerstörter Küche: Wie man einen gemütlichen Raum in einem Backsteinhaus schafft
Schrank aus Nichts: Wie man 5 qm in einem Ziegelhaus nutzt
Küchen mit Insel: 5 tolle Beispiele aus den Entwürfen von Designern
Wie wir einen geräumigen Küchenbereich in einem Haus aus dem Jahr 1957 eingerichtet haben
Wie Sie das Leben Ihres Blumenstraußs verlängern: Geheimnisse für die beliebtesten Frühlingblüten
Vor und nach: aus einer alten Brezhnevwand in eine stylische Zweizimmerwohnung 40 m² ohne Designer
Vor und nach: Die 'zweite Lebenszeit' einer abgelegenen Küche in einer 36 m² Einheit