Geniale Lösungen für kleine Wohnungen, die man sich unbedingt merken sollte
Ein Portion an Inspiration und effektvollen Designlösungen
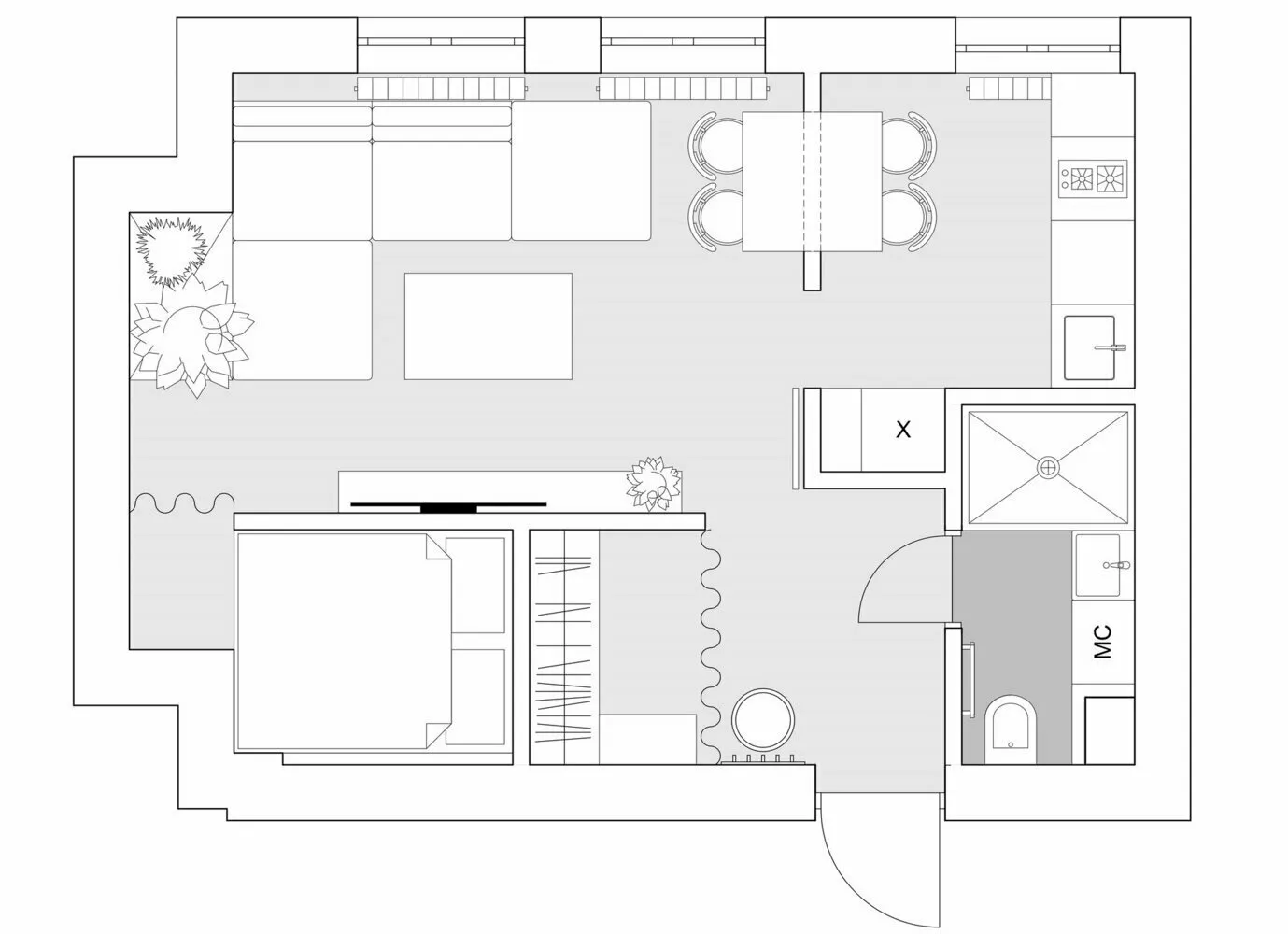
Die Interiorgestaltung dieser Ein-Zimmer-Wohnung in Kaliningrad wurde von Designern des Line Design Studio durchgeführt. Sie haben die Raumaufteilung vollständig verändert und auf der begrenzten Fläche alle notwendigen funktionellen Bereiche sowie viel Lagerraum untergebracht. Wir zeigen Ihnen herausragende Lösungen aus dem Projekt, die Sie unbedingt beeindrucken werden.
Asketische, aber funktionale KücheDie kompakte Küche ist nur mit dem Unbedingt-Nötigen ausgestattet: einem kleinen Arbeitsplatz, einer Spüle, einer zweifach konforförmen Herdplatte und einem eigenständigen Kühlschrank über dem er ist Platz für Lagerung. Als Alternative zu den oberen Schränken wurden visuell leichtere Regale in der Farbe der Wände verwendet.
Tisch mit FensterIm Wohnbereich zwischen Küche und Wohnzimmer wurde ein Schiebefenster mit eingebautem Essstuhl eingerichtet. Bei geschlossenem Fenster und Küchentür wird die Küche isoliert, der Tisch verwandelt sich in eine praktische Arbeitsfläche (daneben wurde eine Steckdose vorgesehen).

Originelle TrennwändeZwischen den Räumen wurden Trennwände aus unverarbeiteten keramischen Blöcken errichtet. Dieses robuste, umweltfreundliche Material wirkt stilvoll, ungewöhnlich und beeindruckend.
Hervorragende FarblösungAls Grundfarbe wurde Weiß gewählt: Die Wände und Decken sind grob gestrichen und bemalt. Für die Raumentwicklung wurde Grau verwendet, Schwarz verleiht dem Interieur Grafik und Kontrast. Als Akzent wurde der trendige Terracotta verwendet.
Riffeltes GlasDie Wände im Wohnzimmer, Schlafzimmer und Garderobe reichen nur 50 Zentimeter unter dem Deckenrand, dort wurde Glas in Metallprofilen montiert. Dies dient dazu, dass natürlicher Licht in jeden Winkel der Wohnung gelangt. Das alte Fenster zwischen Küche und Bad wurde vergrößert – dadurch dringt natürlicher Licht aus der Küche in das Badezimmer ein.
Beton-TV-KonsoleEin origineller Element im Wohnzimmer war eine hängende TV-Konsole aus Beton. In Hinsicht auf Festigkeit und Haltbarkeit übersteigt Beton um ein Vielfaches andere Materialien. Die feste, steinerne Oberfläche wirkt sehenswert, ungewöhnlich und modern.
Kleiderschrank hinter VorhangDie Hauptaufbewahrung wurde in einem separaten Kleiderschrank hinter einer Vorhang eingerichtet. In ihm wurde ein modulares System installiert, das einen stilvollen äußeren Eindruck hat, den Interieur nicht überlastet und gut belüftet ist.
Need a renovation specialist?
Find verified professionals for any repair or construction job. Post your request and get offers from local experts.
You may also like

So machen Sie eine kleine Wohnung gemütlich: 7 interessante Ideen

Wie man alles und sogar mehr in einer kleinen Küchen-Esszimmer-Kombination unterbringen kann

„Einfach weniger essen“ funktioniert nicht mehr. Wir analysieren, warum herkömmliche Diäten nicht zum Abnehmen führen

Wie man eine kleine Wohnung schön und budgetgerecht einrichtet: 6 tolle Ideen
Weitere Artikel:
So machen Sie eine kleine Wohnung gemütlich: 7 interessante Ideen
Wie man alles und sogar mehr in einer kleinen Küchen-Esszimmer-Kombination unterbringen kann
„Einfach weniger essen“ funktioniert nicht mehr. Wir analysieren, warum herkömmliche Diäten nicht zum Abnehmen führen
Wie man eine kleine Wohnung schön und budgetgerecht einrichtet: 6 tolle Ideen
Remote Reparatur: Wie Sie den Innenraum aktualisieren, ohne das Haus zu verlassen
So aktualisieren Sie Ihr Interieur an einem Tag: 4 erstaunliche Möglichkeiten
Wie Sie eine kleine Wohnung visuell größer machen: 7 effektive Tipps
10 Filme 2023/2024, die Sie verpasst haben könnten: Was Sie in den Neujahrsferien sehen sollten