Wie wir ein gemütliches Landhaus von 30 m² am Fluss eingerichtet haben (Foto vorher und nachher)
Ohne Designer ein helles und funktionales Raumkonzept im skandinavischen Stil eingerichtet
Svetlana Belowa hat sich einen kleinen Hauscontainer am Flussufer gekauft, um ihn später einer Familie mit einem oder zwei Kindern und allen anderen, die gerne Urlaub in der Natur verbringen möchten, zu vermieten. Die Hauptaufgabe war es, alle notwendigen Funktionen auf der kleinen Fläche so zu platzieren, dass das Interieur sich großzügig anfühlt. Als Grundlage wählte Svetlana den skandinavischen Stil mit Minimalismus-Elementen.
Ort: Moskauer Region, Dorf Burmakino
Hausart: Haus, das nach Holzrahmenbauweise gebaut wurde
Fläche: 30 m²
Deckenhöhe: 2,7 m
Zimmeranzahl: 1
Badezimmer: 1
Budget: 2 Millionen Rubel
Design: Svetlana Belowa
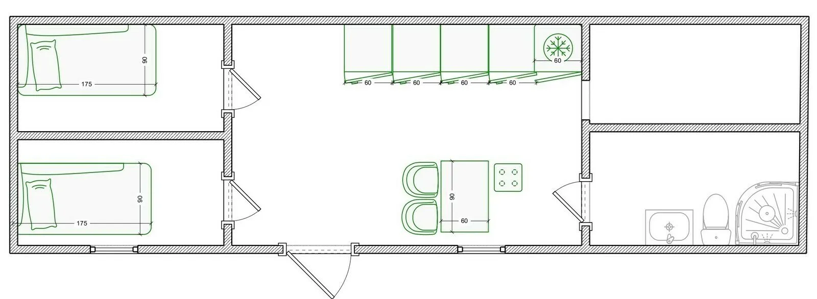
Grundriss vor
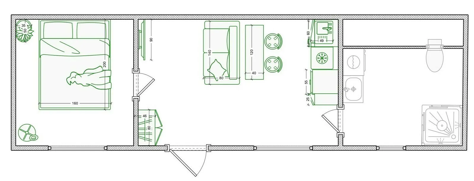
Grundriss nach

Um dem Standard-Gelb der Holzfaserplatten zu entgehen, wurden die Wände in Küche und Wohnzimmer sowie im Schlafzimmer in weiß gestrichen – das befrischt den Raum sofort und lässt ihn breiter erscheinen. Der Boden ist aus hochwertigem Laminat. Da der Boden die Hauptlast trägt, wollte man ihn möglichst lange in gutem Zustand halten.

Die Küche ist klein und hat keine Obermodule, da nicht viel gekocht werden soll. Das Küchen-Garnitur ist an der Wand angeordnet, es ist alles notwendige enthalten: ein kleiner Kühlschrank, Mikrowelle und eine 2-Konferenzen-Backofen.


Für die Esszone wurde ein Halbbar-Tisch gewählt – seine Höhe ist so berechnet, dass es bequem vom Fenster aus den Fluss gegenüber betrachtet werden kann. Der kompakte Sofa lässt sich leicht in ein Schlafplatz verwandeln – darauf können zwei Personen bequem schlafen.


Trotz der kleinen Fläche wurde die Aufgabe der Lagerung erfolgreich gelöst. Beim Eingang befindet sich ein großer Schrank mit Türen und Schublade, im Schlafzimmer eine Kleidungshängematte und ein Nachttisch, in der Dusche eine aufgehängte Kommode.

Durch das Abriss der Wand wurden die beiden Schlafzimmer zu einem Raum vereint. Das Schlafzimmer ist für Schlaf und Entspannung gedacht, daher gibt es hier nur ein Bett mit weißem Bettzeug. Der weiße Farbton füllt den Raum mit Licht, reflektiert es von Oberflächen und macht den Raum voluminöser und luftiger. Helle Akzente – blaue dekorative Kissen und ein blaues Laken. Blau bringt Frische und entlastet die Spannung, unterstützt den komfortablen Urlaub.
Das Schlafzimmer wurde absichtlich minimalistisch eingerichtet, damit man es durch Home Staging periodisch verändern kann: Posters aktualisieren, Textilien auf dem Bett und Pflanzen.


Das Haus liegt an einer hohen Flussuferseite, daher wurden die Fenster bereits in der Rohbau-Phase durch größte mögliche Konstruktionen ersetzt, die passend sind. Das visuell vergrößert den Raum und erlaubt es, schöne Aussichten zu genießen, ohne aus dem Bett aufzustehen.
Das Badezimmer ist ungewöhnlich für ein Holzhäuschen – es wurde vollständig aus Kacheln gebaut. Der Wassererwärmung, der Hydrospeicher und andere Installationen wurden in einem separaten technischen Raum versteckt.


Foto vor Renovierung

Marken, die im Projekt verwendet wurdenKüche-Wohnzimmer
Verkleidung: Farbe, Tikkurila
Bodenbelag: Laminat, My step
Möbel: Schrank, STENDMEBEL; Tisch, Woodville
Haushaltsgeräte: Backofen, Hansa
Badezimmer
Verkleidung: Kacheln, Laparet West
Bodenbelag: Keramik, Laparet West
Möbel: Kommode, Vincea Chiara; Spiegel, Cersanit
Badezubehör: Waschbecken, Vincea
Mischventil: Jacob Delafon
Need a renovation specialist?
Find verified professionals for any repair or construction job. Post your request and get offers from local experts.
You may also like
Weitere Artikel:
Genial geplante Küche mit praktischem und geräumigem Lagerraum
Wie man die ideale Bodenbelag auswählt: von Parkett bis Kacheln
Vor und nach: Umgestaltung einer kleinen Küche in einer Panelwohnung ohne Designer
Wohnungsdämmung: So sparen Sie Wärme und Heizkosten
Eng mit Gemütlichkeit: Wie man in einer Mikro-Wohnung überlebt und nicht den Verstand verliert
7 Ideen des Designs, die wir in einer sorgfältig geplanten Wohnung gesehen haben
Die Wolkenjagd: Die höchsten Gebäude der Welt
Stadt-Hochhaus mit einer Länge von 170 Kilometern