Kleine, aber gut durchdachte Küche von 7 m² in einem typischen Hruschtschow
Wir erzählen, wie man einen kleinen Raum stilvoll und ergonomisch gestaltet
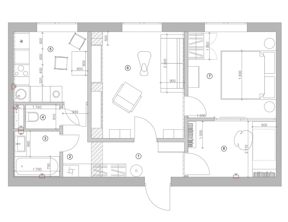
Die Designerin Lidia Napreenko hat das Interior einer typischen Zweizimmerwohnung in einem Hruschtschow der Serie II-14 aus dem Jahr 1959 renoviert. Aus einer Wohnung in schrecklichem Zustand wurde ein gemütliches Interior im skandinavischen Stil. Die Küche mit einer Fläche von 7 Quadratmetern blieb isoliert, dennoch wurde alles Notwendige darin untergebracht.

In ihrer Freizeit liebt der Kunde Backwaren zu backen, daher musste man auf der kleinen Küche viel Speicher- und Arbeitsflächen einplanen. Das Küchenmodul wurde in der Ecke aufgestellt, der Kühlschrank ist eigenständig, der Ofen und die Mikrowelle sind in eine Schrank-Kolumne eingebaut. Eine Gas-Heizplatte mit zwei Rundplatten reicht aus. Ein Nachteil war, dass die Spülmaschine in der Ecke aufgestellt wurde, aber hier gibt es eine Geschirrspülmaschine, daher entstehen keine Schwierigkeiten.

Der Abdeckrand wurde aus Keramogranit gefertigt. Er wurde auf eine Laminat-Theke gelegt, der Naht wurde mit Dichtungsmasse ausgefüllt. Die Fronten sind in verschiedenen Farben: der unterste Reihenfolge – braun, die mittleren – weiß, und die höchsten Schränke mit Aufbewahrungsfächern wurden in gelb gestaltet, was die gelbe Kante am Rand des Raumes fortsetzt.

Während des Renovierungsarbeiten wurden die Heizkörper in einen Grauton gestrichen und auch die Leisten in derselben Farbe gefertigt. Eine Besonderheit der Wandgestaltung ist das Fehlen eines Deckenkantholzes.

Die Möbel sind notwendigsten Art: ein Essstuhl, Stühle mit weichem Bezugsstoff. Für die Beleuchtung wurde eine Unterlegung des Küchenmoduls und ein Lampe über dem Essstuhl mit einem Korb-Abschirmung eingerichtet – der diffusierte Licht erzeugt eine sehr gemütliche Atmosphäre im Zuhause.

Schauen Sie sich unbedingt unseren neuen Roomtour an, um zu sehen, wie unsere Heldin innerhalb von 3 Monaten und 1,5 Millionen Rubel das Renovierung des Bauherren in modernes komfortables Wohnen verwandelt hat. Ohne Designer hat sie das Interior und die Ausstattung der Wohnung durchdacht. Mit eigenen Händen haben sie Möbel mit dem Ehemann aktualisiert und vieles bis ins Detail gebracht!
Need a renovation specialist?
Find verified professionals for any repair or construction job. Post your request and get offers from local experts.
You may also like
Weitere Artikel:
5 Ideen zum Aufbewahren, die wir von unseren Designern gesehen haben
6 klassische Küchen, die unsere Helden selbst eingerichtet haben
Stylisher Haus aus Blumentonnböcken, selbst gebaut in 2 Jahren
5 designer Techniken, die helfen, einen funktionalen Interior zu schaffen
Leuchtende Terrasse mit mexikanischem Stil
8 Ideen, die wir in einer europäischen Studio-Design inspiriert haben
Verwandlung eines alten Panels in einen modernen Stil
7 klasse Ideen für den Design einer kleinen Balkonfläche