Spiegel-Design Küche und verborgene Schlafzimmertür: Wohnung in Vilnius
Arbeiten Sie an einer Wohnung-Logikpuzzle? Designerin Indre Sunklodien hat es bereits mehrfach getan: Das Interior in Vilnius aus ihrem Portfolio, über das wir früher berichtet haben, ist ebenfalls voller raffiner Techniken und Tricks.

Aber diese Zweizimmerwohnung beeindruckt stärker. Hier sind 49 Quadratmeter – es fühlt sich an, als wäre die Wohnung größer. Der erste Trick: Indre hat die Wand und die Tür mit dekorativen Panels ausgestaltet, um das Gefühl zu erzeugen, dass es keine Türen zur Schlafzimmertür und zum Badezimmer gibt. Nur die Hardware verrät sie.

Ein anderer Trick: Spiegel-Optik. Hinter diesen Fronten verbirgt sich die Garderobe, wobei Indre auch den Küchenbereich mit Spiegel-Optik ausgestaltet hat. So erhält die Wohnung mehr Licht und Raum.

Die Küche in diesem Interieur ist wahrscheinlich der Haupt-„Spieler“. Obwohl sie klein ist, ist sie p-geformt und verfügt über genügend Schränke und Regale. Außerdem fließt die Küche nahtlos in den Essbereich über, der ebenfalls recht geräumig ist. Der „Kirschtopp“: praktische offene Aufbewahrung für Flaschen, die dem Interieur einen Hauch von Luxus und Wert verleihen.

Verdeckte Töne in Kombination mit warmen Metallen sind sehr beliebt in Indres Projekten. Dieses Interieur basiert auf Grautönen mit Blau. Um die zurückhaltende Palette nicht langweilig zu wirken, hat Indre sie durch grafische Muster und texturierte Stoffe ins Interieur eingefügt.

In der Schlafzimmertür hat die Designerin entschieden, das Kopfteil des Bettes mit Tweed zu verkleiden, ein Wolle-Decke aufzunehmen und die Wand mit Ombre-Belägen zu verkleiden. In den Badezimmern wurde schwarze und weiße Kacheln im Patchwork-Stil gelegt, während die Muster im Wohnzimmer… auf dem Decken auftauchen. Reflektiert in den Spiegel-Fronten der Küche, verleihen sie dem Interieur Dynamik und Charme.

Da die Aufbewahrung verborgen ist und die Türen perfekt maskiert sind, lenkt nichts die Aufmerksamkeit von der schönen Möbelung, den taktilen Materialien und dem fehlerlos geplanten Raum. Genau das war das Ziel.









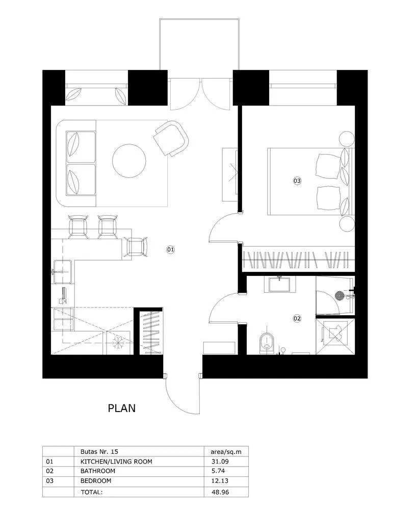
Grundriss
Need a renovation specialist?
Find verified professionals for any repair or construction job. Post your request and get offers from local experts.
You may also like
Weitere Artikel:
Wie man ein schönes und günstiges Häuschen einrichtet: echtes Beispiel
Wie man weniger für Wasser zahlt: wählen Sie die richtige Sanitärtechnik
Wie man eine lebendige Wohnzimmerdecoration schafft: Tipps von Designerin
15 Design-Lösungen, die hoffnungslos veraltet sind
5 Ideen, wie man die Wohnung dekorieren kann: Shopping mit Marina Svetlova
12 Möglichkeiten, Ihr Apartment zu kühlen, wenn Sie keinen Klimaanlagen haben
5 Fehler beim Küchenrenovierung, die alle machen
10 dekorativer Trends, die völlig veraltet sind