Wittehaus的Gerendák住宅:夏洛特现代木屋
在北卡罗来纳州夏洛特,Wittehaus的Gerendák住宅通过大胆的悬挑设计、树顶上的位置以及结构与生活方式无缝融合,重新定义了住宅建筑。这座于2022年完工的5354平方英尺住宅在工程创新与精致设计之间取得平衡,提供令人惊叹的莱克뷰湖景色。
由对话诞生的住宅
该设计是由一对深度融入夏洛特艺术界的夫妇委托的,灵感来源于Netflix系列剧《世界上最非凡的房子》。他们的愿景:一个融合高悬挑、地面层入口和无台阶生活方式的住宅,定义了移动性。
在八个月的时间里,建筑师Toby Witte与客户密切合作,在细节上进行绘制、考察和优化设计,以适应地块和生活方式。
悬崖平台上的悬挑设计
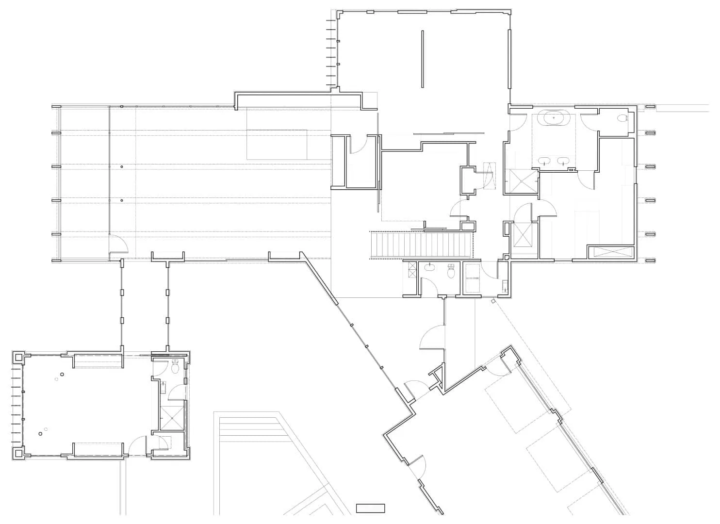
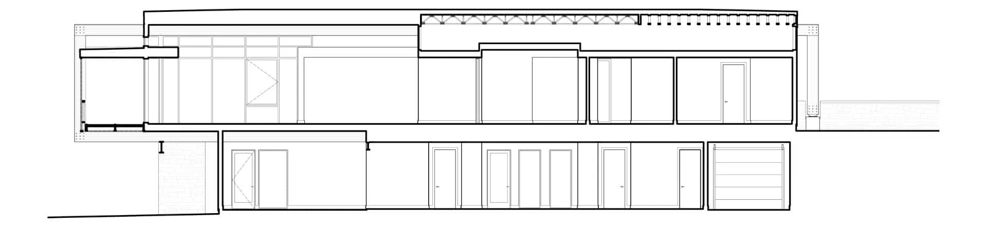
为了实现面向莱克뷰湖的戏剧性悬挑设计,Wittehaus在山坡上切割石墙,创造出一个支撑住宅的平台。一侧住宅贴近地面;另一侧则大胆地悬挑至开放空间。
设计分为三个主要体量:
-
核心生活空间包括厨房、餐厅和客厅。
-
主卧室带湖景,提供私密性和宽敞感。
-
工作室办公室,可同时俯瞰湖景和森林。
每个体量都从三个方向享有景观,既提供开放感又保持私密性。
音乐作为住宅的核心
中心是为这对夫妇的钢琴设计的音乐室。被可移动面板和金属竖杆包围,这个灵活空间可以关闭用于练习或打开以充满音乐。旁边的浮动楼梯与这个声学和文化中心互动。
木屋结构与概念
住宅由裸露的横梁和柱子支撑,这些结构支持水平屋顶、地板和露台。主生活区有三面玻璃,模糊了室内与森林的边界。垂直柱子模仿周围树木,增强现代木屋的沉浸感。
“结构的开放性带来了简约、清晰和宁静——这里真的很安静”,建筑师Toby Witte说道。
合作与工艺
住宅的丰富性源自协作:
-
建筑商Buddy Edwards(Lynn Luxury Homes)与设计团队确认了建造方法和材料。
-
室内设计师Geri Iker(Freespace Design)挑选了饰面、嵌入式衣柜和家具,通过身体细节扩展建筑设计。
他们共同创造了一座每个细节都反映其目标的住宅。
可持续发展措施
可持续性是设计的核心部分:
-
窄垂直柱子也起到百叶窗的作用,为内部遮挡强烈的西晒阳光。
-
照明带扩展阴影,保持比例。
-
太阳能电池板抵消住宅能耗。
-
高性能德国窗户和紧密的保温层优化效率。
-
保留周围森林覆盖物有助于维持生态平衡。
结果是一座具有极低HERS评分的住宅,结合奢华与环保责任。
艺术、音乐和自然的居所
Gerendák住宅不仅仅是一座房子——它是一尊活生生的雕塑作品。悬挑设计拥抱地平线,围绕音乐设计的内饰,以及内置在每个决策中的可持续性,Wittehaus为北卡罗来纳州现代住宅建筑树立了标杆。
照片 © Amanda Anderson
照片 © Amanda Anderson
照片 © Amanda Anderson
照片 © Amanda Anderson
照片 © Amanda Anderson
照片 © Amanda Anderson
照片 © Amanda Anderson
照片 © Amanda Anderson
照片 © Amanda Anderson
照片 © Amanda Anderson
照片 © Amanda Anderson
照片 © Amanda Anderson
照片 © Amanda Anderson
照片 © Amanda Anderson
照片 © Amanda Anderson
照片 © Amanda Anderson
照片 © Amanda Anderson
照片 © Amanda Anderson
照片 © Amanda Anderson图纸
照片 © Amanda Anderson
照片 © Amanda Anderson
照片 © Amanda Anderson
照片 © Amanda Anderson
照片 © Amanda AndersonNeed a renovation specialist?
Find verified professionals for any repair or construction job. Post your request and get offers from local experts.







