米色公寓 / 亚历山大·蒂什勒 / 俄罗斯
位于叶卡捷琳堡的米色公寓,由亚历山大·蒂什勒设计团队主导,设计师为卡伦·卡拉佩特扬。这是一套精心打造的79平方米两居室公寓,注重适应性、舒适度和时间感。该公寓于2023-2024年完工,专为一对夫妇为其女儿设计——寻找一个功能性强且温馨舒适的空间,在未来可以进一步完善。
位于俄罗斯叶卡捷琳堡的这套公寓体现了亚历山大·蒂什勒设计公司的理念:从概念到实施的全套室内解决方案,包括个性化定制、严格的预算控制和项目综合管理。
图片来源 © 亚历山大·蒂什勒设计公司
图片来源 © 亚历山大·蒂什勒设计公司形式与功能的结合
这套公寓存在一些挑战,例如中央承重柱和连接大厅与私人房间的黑色走廊。通过战略性的设计决策,包括拆除不必要的隔墙和优化布局,团队创造了一个更明亮、宽敞的流动空间。
此次装修的一个显著特点是一个小而高效的步入式衣柜,通过拆除隔墙和重新规划布局得以扩展。这种重构增加了自然采光并创造了空间层次感,使每个区域都能根据功能进行优化。
图片来源 © 亚历山大·蒂什勒设计公司
图片来源 © 亚历山大·蒂什勒设计公司色彩搭配与个性化细节
中性色调构成了这套公寓的基础,便于未来轻松个性化空间。纹理游戏——从木质饰面、露台瓷砖到黑色点缀和简约家具——创造出宁静、极简的氛围。
在走廊中安装了两个通高储物柜。一个作为厨房与大厅之间的视觉分隔,另一个则集成在智能吸尘器充电模块中。两个结构均采用个性化“波纹”把手,为设计增添了节奏感。
图片来源 © 亚历山大·蒂什勒设计公司厨房的智能解决方案
在厨房中,利用了开发商提供的现成凹槽。无把手的抽屉和隐藏式上柜保持了优雅轮廓。设计师没有增加上柜高度,而是保留了洗手池上方的通风空间。防溅板采用大规格陶瓷覆盖,略超出柜体边缘,视觉上将厨房与客厅融为一体。
图片来源 © 亚历山大·蒂什勒设计公司
图片来源 © 亚历山大·蒂什勒设计公司
图片来源 © 亚历山大·蒂什勒设计公司
图片来源 © 亚历山大·蒂什勒设计公司
图片来源 © 亚历山大·蒂什勒设计公司客厅与阳台的改造
在客厅中,餐桌和沙发布置旨在优化动线。原始的阳台结构——带阳台隔断和暖气片——被替换为滑动玻璃门,并将暖气片移至侧墙。此外还增加了红外线暖风机,在保持美观一致的同时提供保暖并防止玻璃起雾。
尽管预算有限,仍引入了新风系统,隐藏在天花板上的格栅——这是对公寓长期可持续性的投资。
图片来源 © 亚历山大·蒂什勒设计公司多功能客厅
次卧的设计考虑了通用性,可作为客房、办公室或未来改建为儿童房。配备床铺、衣柜和书桌,空间可根据业主需求灵活发展。原有的不舒适承重柱被巧妙地隐藏在紧凑的书架后面。
图片来源 © 亚历山大·蒂什勒设计公司
图片来源 © 亚历山大·蒂什勒设计公司
图片来源 © 亚历山大·蒂什勒设计公司
图片来源 © 亚历山大·蒂什勒设计公司
图片来源 © 亚历山大·蒂什勒设计公司中性门与精心过渡
没有安装昂贵的隐藏式门,而是使用涂漆门和门框,使其与环境和谐融合。这使得专注于空间清晰度而不增加成本。
图片来源 © 亚历山大·蒂什勒设计公司卧室扩展的步入式衣柜
在卧室中,直接与步入式衣柜相连,但不是通过墙体分隔,而是由一个大型个性化柜体作为分界。从卧室一侧看,它呈现为极简面板。
尽管根据客户预算简化了方案,但衣柜仍提供高储物空间和深挂杆用于悬挂季节性衣物。照明和抽屉被省略,使建造经济实惠但高效。
图片来源 © 亚历山大·蒂什勒设计公司
图片来源 © 亚历山大·蒂什勒设计公司
图片来源 © 亚历山大·蒂什勒设计公司
图片来源 © 亚历山大·蒂什勒设计公司
图片来源 © 亚历山大·蒂什勒设计公司
图片来源 © 亚历山大·蒂什勒设计公司
图片来源 © 亚历山大·蒂什勒设计公司带隐藏管线的SPA控制
在浴室中,延续了同样的中性美学与仿混凝土纹理瓷砖。智能储物柜包括隐藏洗衣格子和集成在高门柱中的洗衣机。两个淋浴帘——防水线和装饰织物——兼顾实用性和视觉舒适度。
图片来源 © 亚历山大·蒂什勒设计公司
图片来源 © 亚历山大·蒂什勒设计公司
图片来源 © 亚历山大·蒂什勒设计公司
图片来源 © 亚历山大·蒂什勒设计公司
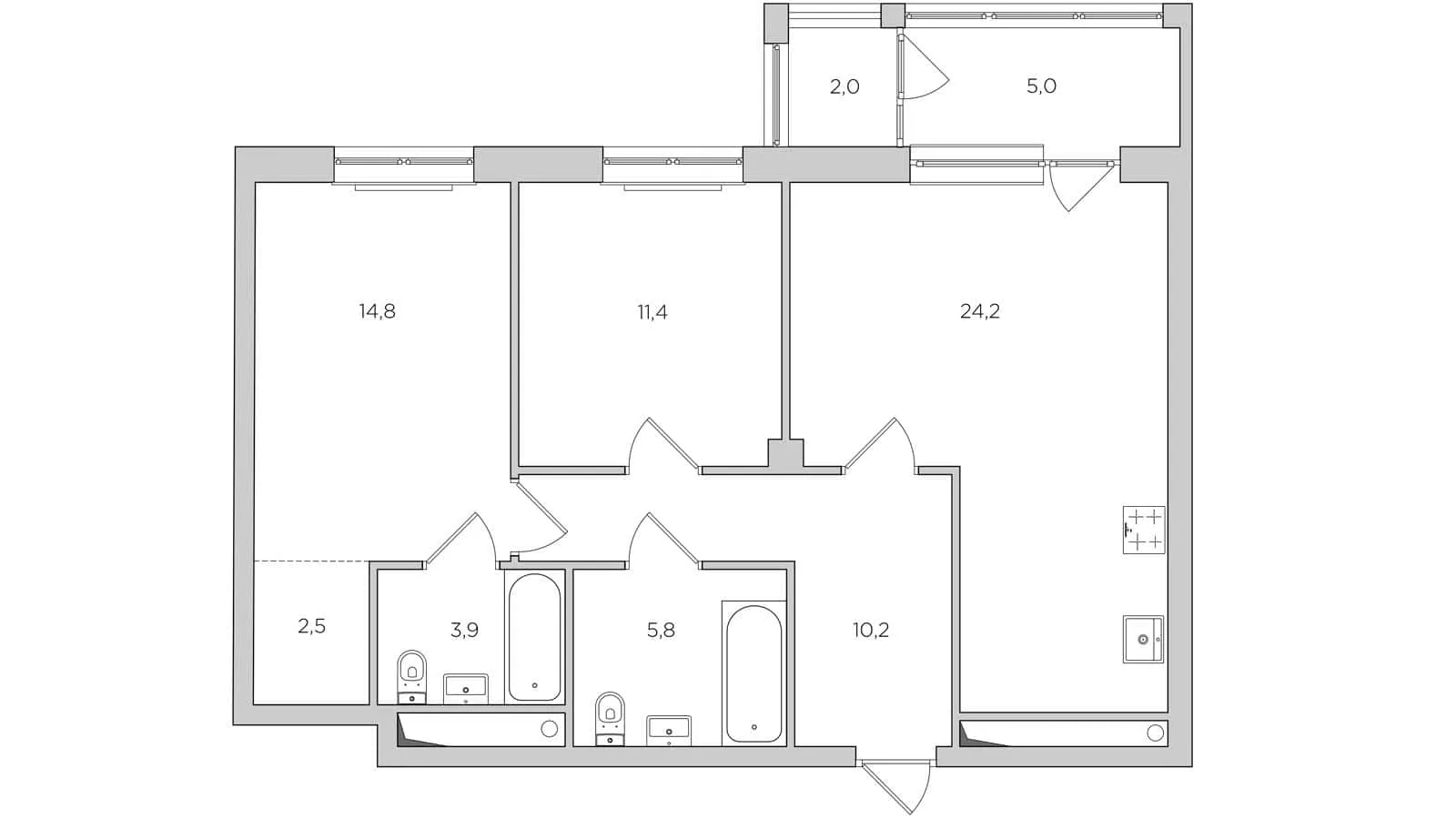
图片来源 © 亚历山大·蒂什勒设计公司平面图:改造前后


Need a renovation specialist?
Find verified professionals for any repair or construction job. Post your request and get offers from local experts.







