AV House由A4estudio设计:门多萨的雕塑混凝土避难所
请提供需要翻译的文本,我会将其严格按照要求翻译成中文。
位于门多萨郊区受保护区域的迈普,AV House住宅以诗意的方式诠释了永恒与空旷的概念,由顶级设计工作室A4estudio精心打造。此住宅为业主在访问该地区时提供临时居所,其建筑理念基于雕塑质感与空间内省。
隐私性与景观设计相结合的设计
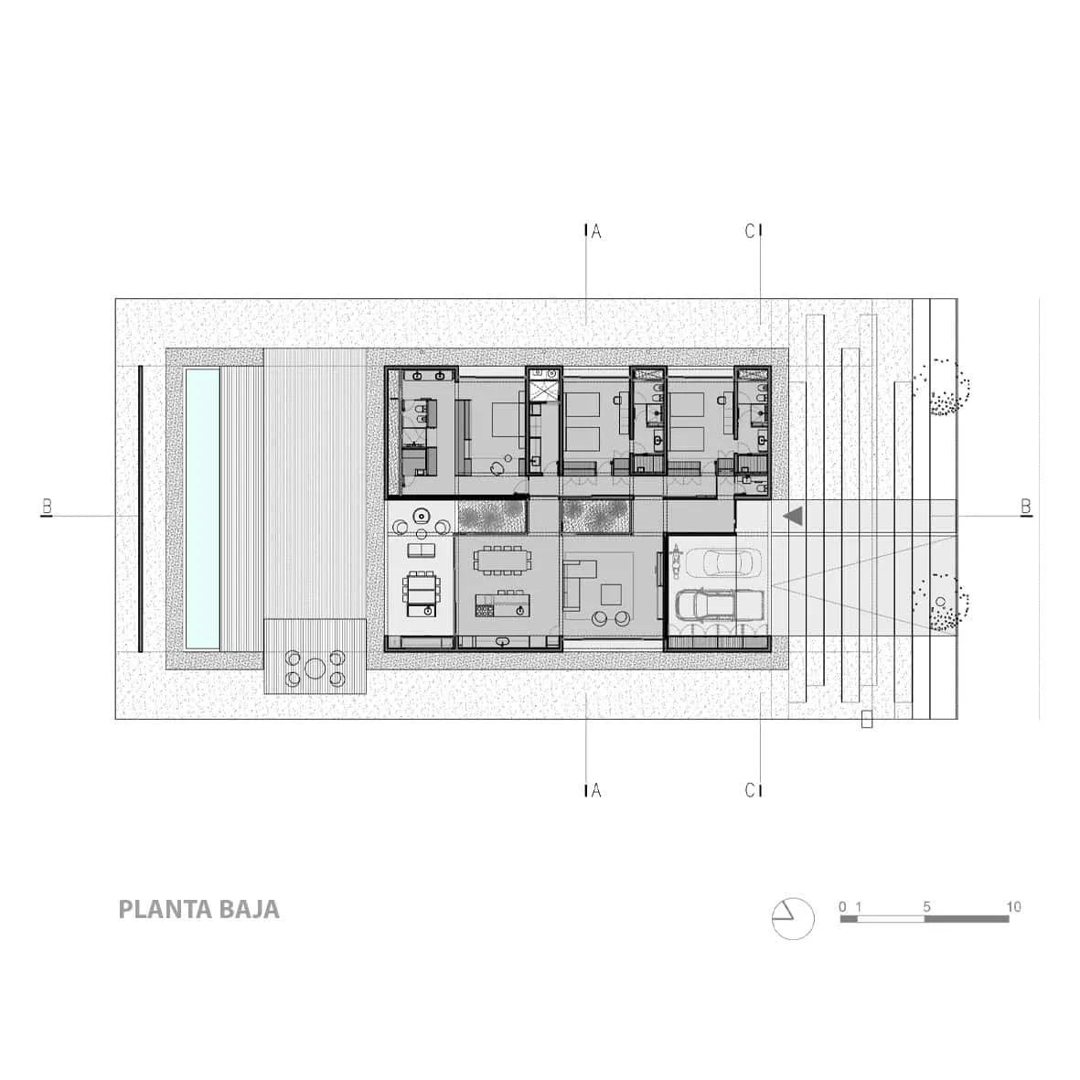
面对平坦的住宅区和安第斯山脉全景,该项目的布局旨在兼顾开放性与私密性。平面设计优先考虑客厅和主要生活区域,而客房则有意隔离以确保访客的更大隐私。
该项目的核心理念是与自然建立联系,创造私密和休憩的保护区域。这种开放性与舒适感的双重性通过过渡庭院和分层混凝土表面的组合得以实现。
挖凿几何结构与过渡空间
“挖凿石头”的设计隐喻指导着形式和空间策略。一系列中央庭院和深嵌入的开口定义了结构,将体量分割成呼吸的空间,同时保持其坚固的外观。
这些庭院不仅提供照明和通风,还创造了内外空间之间的节奏变化。通过加强的开口增强了置身于雕刻混凝土中的感觉,其分层阴影和过滤视野丰富了空间的日常体验。
结构与材料完整性
AV House采用开放式混凝土梁系统,由连续的垂直墙体支撑,创造了一种清晰的结构语言,定义了形式与功能。建筑没有隐藏其结构;相反,它赞美混凝土作为原始、富有表现力的材料,契合挖掘与永恒的理念。
混凝土的矿物纹理以自然状态保留,加强了建筑与景观的对话,反映门多萨地区的纹理和色调。
A4estudio AV House的关键特点
建筑理念:挖凿体量、隐私性和观景导向
材料:带有矿物纹理的开放式混凝土
设计策略:通过庭院和门槛进行碎片化
结构逻辑:连续墙体和梁
环境回应:安第斯山脉框架内的安全住宅区
摄影师 © A4estudio
摄影师 © A4estudio
摄影师 © A4estudio
摄影师 © A4estudio
摄影师 © A4estudio
摄影师 © A4estudio
摄影师 © A4estudio
摄影师 © A4estudio
摄影师 © A4estudio
摄影师 © A4estudio
摄影师 © A4estudio
摄影师 © A4estudio
摄影师 © A4estudio
摄影师 © A4estudio
摄影师 © A4estudio
摄影师 © A4estudio
摄影师 © A4estudio
摄影师 © A4estudio
摄影师 © A4estudio
摄影师 © A4estudio
摄影师 © A4estudio
摄影师 © A4estudio
摄影师 © A4estudio
摄影师 © A4estudio
摄影师 © A4estudio
摄影师 © A4estudio
摄影师 © A4estudio
摄影师 © A4estudio
摄影师 © A4estudio
摄影师 © A4estudio
摄影师 © A4estudio
摄影师 © A4estudio
摄影师 © A4estudio
摄影师 © A4estudio
摄影师 © A4estudio
摄影师 © A4estudio
摄影师 © A4estudio
摄影师 © A4estudio
摄影师 © A4estudio
摄影师 © A4estudio
摄影师 © A4estudio
摄影师 © A4estudio
摄影师 © A4estudio
摄影师 © A4estudio
摄影师 © A4estudio
摄影师 © A4estudio
摄影师 © A4estudio
摄影师 © A4estudio
摄影师 © A4estudio
摄影师 © A4estudio
摄影师 © A4estudio
摄影师 © A4estudio
摄影师 © A4estudio





Need a renovation specialist?
Find verified professionals for any repair or construction job. Post your request and get offers from local experts.







