如何改善单身公寓的布局:3个重要步骤
另一个简单重新布置使室内更加便利的例子
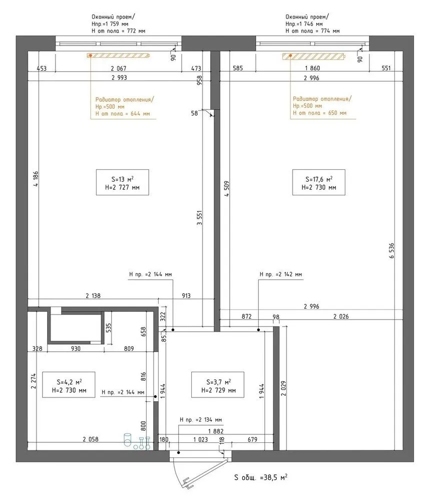
最近我们介绍了基于尼娜·伊万诺娃项目的一居室公寓内部设计,今天我们将更详细地探讨重新布置。根据设计师的说法,原始布局虽然方便但需要改进。我们来告诉你具体是哪些方面。
面积38 平方米房间数1预算160 万卢布

在过道与卧室之间建造一堵墙

在客厅与卧室之间开设开口

安装步入式衣帽间

最终的结果是什么?
面积38 平方米房间数1预算160 万卢布

在过道与卧室之间建造一堵墙
原始布局假设您可以直接从过道进入卧室和客厅。为了增加居住区与非居住区之间的私密性,安装了一面石膏隔断。
现在您只能从过道进入厨房餐厅区域。如果需要,您可以随时关闭门来完全隔开空间。

在客厅与卧室之间开设开口
现在您可以通过客厅进入卧室——这很方便。在房间之间留出了宽敞的通道并安装了推拉门。白天这些门是敞开的,营造出一个统一的空间感。

安装步入式衣帽间
它被建造在卧室的凹槽中,并用滑动门封闭。为了方便起见,内部放置了宜家衣柜系统。借助这一解决方案,公寓主人无需在卧室里摆放大量衣柜来存放衣物。

最终的结果是什么?
Need a renovation specialist?
Find verified professionals for any repair or construction job. Post your request and get offers from local experts.







