如何在小型公寓中为卧室和办公室腾出空间?
如果您不知道如何在小公寓中合理布置空间,请阅读我们的文章
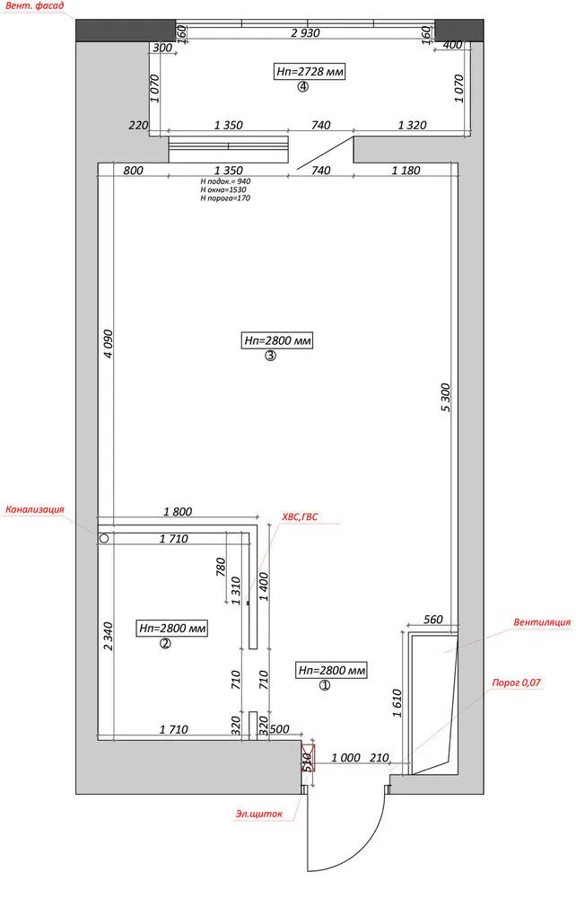
最近我们介绍了基于Diana Bganova项目的小型工作室公寓的室内设计。今天我们将更详细地探讨其改造方案。专业人士在30平方米的空间内成功为卧室-客厅、带用餐区的厨房以及一个小办公室储物柜找到了位置。
关于这套公寓我们了解到什么?面积30平方米房间数1层高2.8米

卧室-客厅布置在窗边
这是房间最明亮的部分,适合休息和度过大部分时间。沿整面墙安装了到顶衣柜,其中一部分隐藏了一张全尺寸床,另一部分则是一个宽敞的衣柜。顺便说一下,在床两侧的衣柜中设有壁龛,可以轻松替代床头柜。

设计了角形厨房
厨房靠近公寓入口布置。它配备了所有必需的设施:内置冰箱、烤箱、灶台、隐藏在上部厨房门板后的微波炉,以及内置洗碗机。
笨重的餐桌被一个紧凑的吧台替代,两个人(甚至更多也不需要)可以舒适地坐在这里。
阳台设置办公区
为此,必须对阳台进行保温处理。现在这里可以工作——足够的自然光进入阳台。还在这里安装了一个储物柜。
改造结果如何?
Need a renovation specialist?
Find verified professionals for any repair or construction job. Post your request and get offers from local experts.







