设计对决:如何打造北欧风格卧室?
根据编辑团队的安排,两位设计师为一套莫斯科“赫鲁晓夫”房的卧室设计了布局,并选择了符合北欧美学风格的家具。看看他们最终的设计方案,选择最佳选项。
在与乐购(Leroy Merlin)专家合作下,我们请设计师纳杰达·卡佩尔和塔季扬娜·沃罗宁娜为一套典型两居室公寓中的卧室进行设计。房间面积较小,原始布局有其优点和缺点。看看专业人士是如何处理这一挑战的,以及他们对北欧风格的诠释。
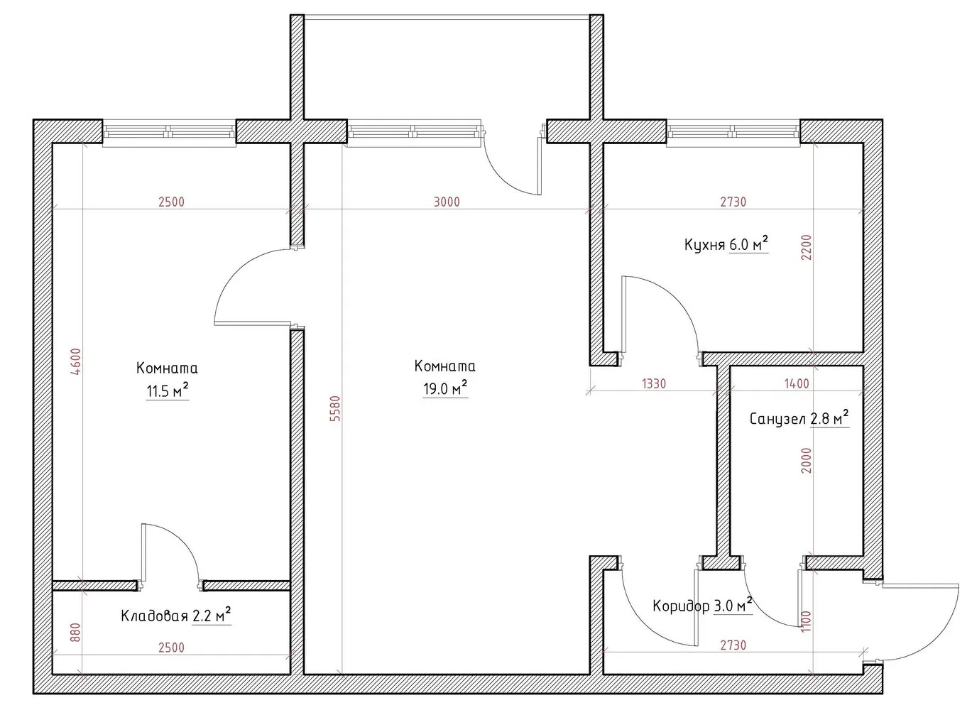
设计师任务卧室11.5 平方米位于一套莫斯科“赫鲁晓夫”两居室公寓中储物区2.2 平方米紧邻卧室,由设计师自行决定如何使用业主年轻夫妇,无子女北欧风格的追随者

1-464系列住宅两居室公寓平面图
纳杰达·卡佩尔的设计方案
纳杰达·卡佩尔是一位建筑师兼设计师,担任Tim & Team室内设计服务和'Studio 3.14'的首席建筑师兼设计师
关于布局
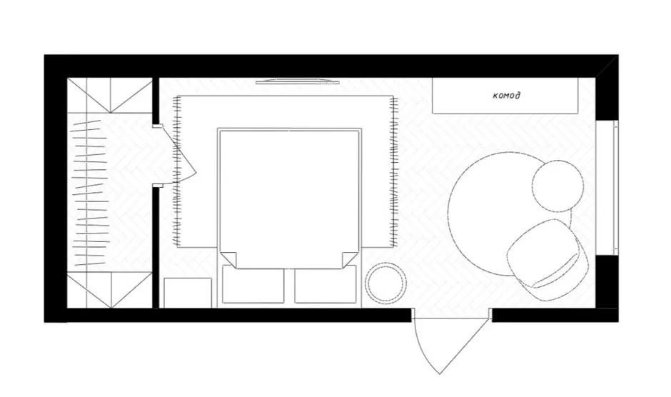
房间原始布局并不太方便:房间深度约为2.5米。标准尺寸的床(约2.1米长)可以放入,但通道变得非常狭窄。为了放置必需的家具,我将门的位置向左移动。结果是,入口一侧是床,另一侧是衣柜而非储物区,而正对入口的是床头柜和镜子。
我用滑动门替换了储物区与卧室之间的隔断——就像步入式衣帽间的门一样。顺便说一句,乐购的卷帘门非常适合这里。

家具布置图
关于风格选择
传统上,北欧室内设计是单色调的,使用白色、灰色和黑色,但漫长的冬天让人喜欢明亮的色彩。因此,我们决定打造一个色彩丰富的北欧卧室。真正体现北欧风格的是使用天然环保材料和几何图案。
在选择产品时,我从具体到一般,首先选择了海报。乐购正好有我们需要的:带有北欧动物和彩色三角形图案的海报。然后,我选择了与颜色搭配一致的墙纸,也带有彩色三角形图案。这些墙纸和海报可以很好地搭配床头板区域的深蓝色背景墙。

设计组合
地板覆盖材料和木质灯具的选择也基于对比效果。抛光木地板和木质灯具在蓝色墙面的映衬下,黄色细节也显得格外突出。窗户和窗台采用地板颜色的层压板——浅橡木色。
常规壁灯被有趣的悬挂灯具取代,其造型为橡子。纺织品——地毯和床上用品——选择了几何图案以呼应海报和墙纸的主题。白色踢脚线和檐口将墙面框起来。对面墙上的门,虽然不可见,也应为白色并带有格条——这是北欧风格的一部分。
你需要:
- 布面画《鹿头》,乐购
- 墙纸,乐购
- 拼木地板,乐购
- 地板踢脚线,乐购
- 卷帘门,乐购
- 悬挂灯具“Woody”,乐购
- 吊灯“Deva”,乐购
- 镜子“Stockholm”,乐购
塔季扬娜·沃罗宁娜的设计方案
塔季扬娜·沃罗宁娜是一位私人执业设计师,与“Tsukkini”工作室合作
关于布局
我没有进行重大调整。唯一的改动是将储物区的墙向内移动,使其更宽。
卧室被划分为三个功能区域:衣柜、卧室和窗区。窗区可用于阅读、放松,甚至可能用于工作——只需将咖啡桌换成书桌。

家具布置图
关于风格选择
主色调为白色和灰色,这是北欧风格的传统配色。但有几种不同深浅的灰色:墙面为浅灰色,床罩为稍深一些的灰色,衣柜区域的强调墙为深色带图案,窗帘则采用温暖的棕色。点缀色选择的是红褐色和黑色。
尽管基础色调偏冷,卧室仍显得温馨舒适。这得益于亚麻和棉质纺织品、柔软的床头板以及灯光。

设计组合
房间中有几种照明方案:床对面墙上的轨道灯、床头的吊灯,以及床边桌灯。窗区的放松区域还设有壁灯。
关于储物系统——主要负荷落在衣柜上。因此,房间内没有传统衣柜,只有一款极简的床头柜,不会让空间显得拥挤,反而起到点缀作用。
卧室中一个巧妙的设计是隐藏式衣柜门:它与墙面的墙纸一致。这使空间在视觉上显得比实际更大,也不会让人感觉通道狭窄。
你需要:
- 门板,乐购
- 拼木地板,乐购
- 可涂漆墙纸,乐购
- 抽象图案墙纸,乐购
- 檐口,乐购
- 照片框,乐购
- 墙面装饰条,乐购
- 窗帘,乐购
Need a renovation specialist?
Find verified professionals for any repair or construction job. Post your request and get offers from local experts.







