9套配备实用步入式衣帽间的公寓
您将发现实用的解决方案
如何为步入式衣帽间找到空间并使其时尚美观——我们从设计师的项目中学习。
阳台上的步入式衣帽间公寓
业主不想改变公寓的布局。他们通过阳台保留了房间之间不寻常的过渡。这启发了将卧室与步入式衣帽间连接起来的想法,并在儿童房的阳台上放置另一个步入式衣帽间和迷你储物柜。
查看完整项目

设计:Home Emotions
布局

过道式步入式衣帽间垃圾桶
过道式步入式衣帽间是这个室内设计的亮点之一。衣柜被安排得使空间易于分为女性和男性区域——几乎对称的布置。房间门是半透明的,因此步入式衣帽间看起来并不完全隔开。
查看完整项目

设计:Quadro Room
布局

紧凑型公寓的步入式衣帽间
客户的关键要求是不存在衣柜和任何可见的存储系统。所有衣服必须装进入口大厅的步入式衣帽间——设计师设法为其找到了空间。他们选择了滑动、镜面门——这使空间显得更大。
查看完整项目

设计:Lines
布局

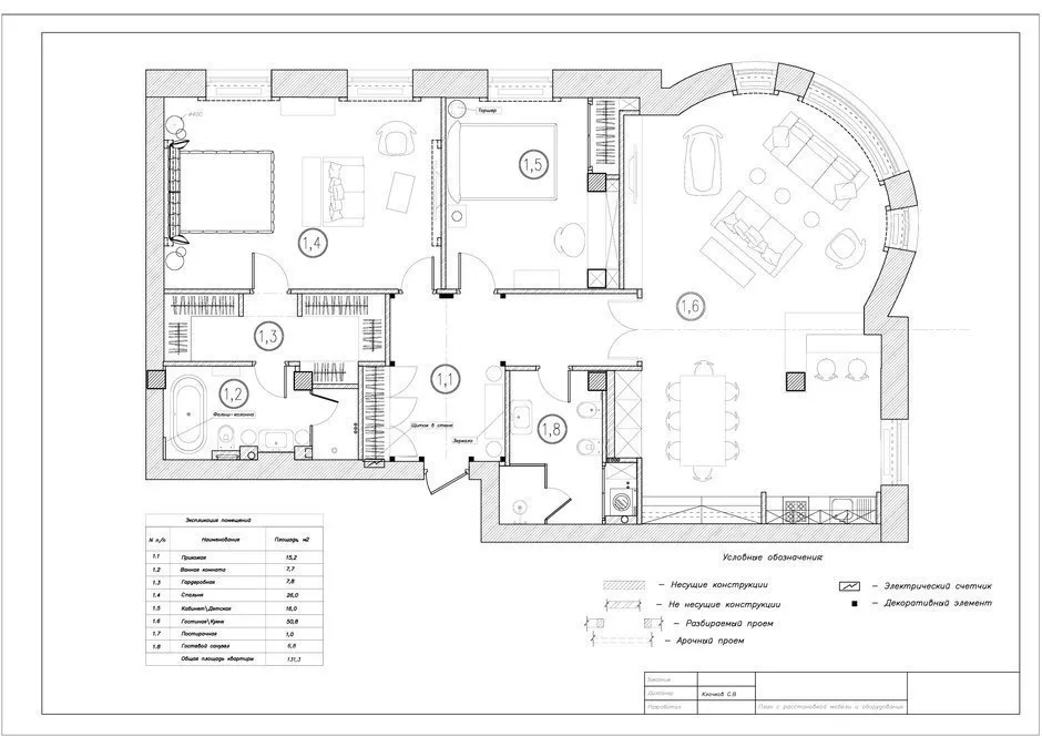
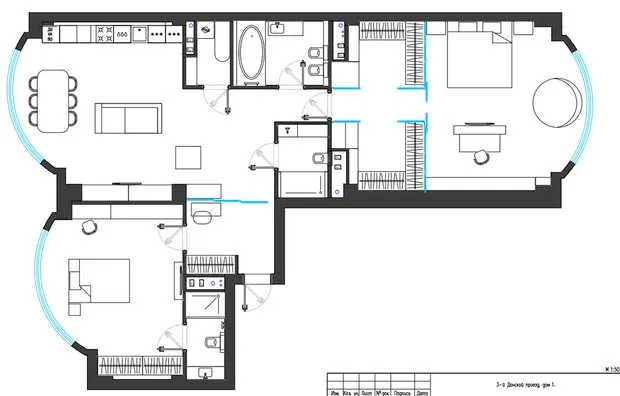
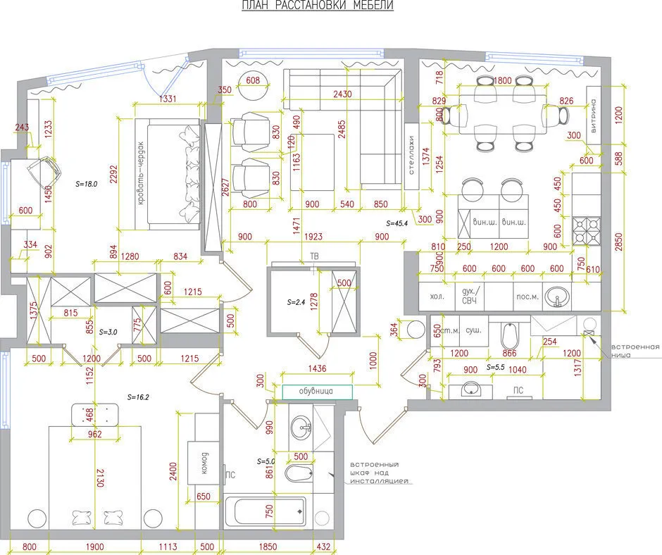
卧室中的宽敞步入式衣帽间公寓
在这些公寓中,步入式衣帽间也是过道式的——通过它可以从主卧室进入浴室。
查看完整项目

设计:Sergey Klyochkov
布局

2室公寓的4平方米步入式衣帽间
设计师简单地解决了存储问题——她分配了4.3平方米的空间用于步入式衣帽间,甚至雪板和装备都能放进去。这种方法使公寓其余部分不再需要存储系统。
阅读更多

设计:VMgroup
布局

男式室内步入式衣帽间
一个有趣的设计是将一个完整的过道式步入式衣帽间房间直接放在公寓的中央。这个区域的侧墙由磨砂玻璃制成,这提供了一点优势——入口大厅中额外的自然光。
查看完整项目

设计:Eeds
布局

透明步入式衣帽间垃圾桶
在这个项目中,存储系统除了其主要功能外,还划分了空间。为了消除进入卧室时狭窄黑暗的走廊,设计师用玻璃隔断创建了步入式衣帽间:自然光从卧室渗透进来。
在入口两侧放置了许多滑动架子和轨道:通过这种方式,存储系统被划分为男女区域。此外,他们还配备了内置照明:步入式衣帽间不仅不再孤立,反而成为了艺术品。
查看完整项目

设计:Quadro Room
布局

木质立方体中的步入式衣帽间公寓
该项目的特点是位于入口大厅和客厅之间的步入式衣帽间房间。“我们把它做成一个覆盖木材的立方体,”设计师维多利亚·佐林娜解释道。
查看完整项目

设计:Zi-Design
布局

浴室中的工作室步入式衣帽间
在这个项目中,他们敢于做出不寻常的举动——在浴室中放置步入式衣帽间。透明隔断将它们分开。
查看完整项目

设计:Oxana Tsymskaya
布局

Need a renovation specialist?
Find verified professionals for any repair or construction job. Post your request and get offers from local experts.







