如何处理工作室公寓中不利的布局:来自瑞典的实例
看看如果您的公寓布局像一条长而窄的走廊,您可以做些什么
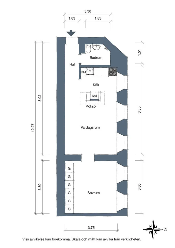
紧凑空间——47平方米——以及像长走廊一样的布局——这些是位于斯德哥尔摩的这个工作室公寓的起点,这对瑞典室内设计公司Alvhem提出了具有挑战性的任务。

如何才能在视觉上不让这个“有问题”的空间更加狭窄?如何在客厅与厨房结合的情况下组织功能区域?如何明智地处理公寓中大量的窗户?经过验证、经济且有效的解决方案出现了。

第一步是平衡这个细长空间的水平线。为此,他们通过使用天花板高度差异和岛台吧台来划分厨房和客厅区域。对于这种小空间来说,这样的解决方案可能会让人感觉局促,但在这里却非常合适。

厨房工作区采用了“猪皮”瓷砖,没有错位——另一种能视觉上扩展狭长比例的技术。
由于走廊中几乎没有空间挂放和储藏上衣,因此存储被安排在卧室中,客厅里出现了一个宽敞的柜子。

白色墙面、地板和天花板以斯堪的纳维亚风格完美搭配家具的对比:椅子、黑色框架图形艺术以及房间末端展示装饰品如台灯、花瓶和书籍的架子。这些对比将注意力从房间的长度上转移开来。

有趣的花盆放在地板和窗台上,还有不寻常的花瓶也为空间增添了新鲜感。
顺便说一下,窗户没有装布料——为了尽可能多地引入阳光。作为替代方案,安装了卷帘窗——毕竟这是一楼公寓。厨房-客厅窗户使用白色卷帘,卧室则用深灰色卷帘。

如果您仔细观察,室内有几件标志性物品:汉斯·J·韦格纳设计的Wishbone椅、迈克尔·索内特设计的维也纳椅,以及由卡斯特利兄弟设计的吊灯。当然,它们并非因其著名名称被选择——更可能是出于实用性。







布局
Need a renovation specialist?
Find verified professionals for any repair or construction job. Post your request and get offers from local experts.







