设计对决:哪个工作室公寓布局更好?
在之前的設計對決中,我們已經邀請兩位設計師為同一間工作室公寓制定不同的項目。這次的重點是面積略小於40平方米的自由布局工作室公寓。兩家成功的設計工作室——「The Design Point」和「Studios 3.14」——展示了他們對功能性布局的視覺構想。
簡要信息
位於ЖК「Symbol」的一居室公寓呈方形,有兩個大窗戶。這使得空間分區成功,房間較暗的部分被指定為衣櫥和浴室。
通過調整室內隔牆的配置,可以創造更寬敞的臥室或豪華的廚房-客廳。但最重要的是,無論採用哪種佈局,都有足夠空間舒適地容納私人休息區域。
ЖК "Symbol"一居室公寓測量圖(38.6平方米)此公寓及許多其他公寓的窗戶可俯瞰公園。精心設計的園林與兩公里長的「綠色河流」公園是「Symbol」商級住宅區的一大優勢。該區域擁有發達的社會、體育和文化設施——創意空間、咖啡廳與餐廳、健身中心以及工作室將會被加入。
由英國建築設計公司LDA Design和UHA London為莫斯科領先開發商DONSTROY創建的項目距離環城公路僅一公里,距地鐵站「伊里奇廣場」僅五分鐘路程。
住宅區「Symbol」關於公寓住戶
假設這間小一居室公寓將由一位年輕夫妻居住,他們熱愛招待客人但希望保留私密臥室空間。他們還需要一個寬敞的衣櫥、家庭辦公室,以及在廚房-客廳中額外設置一個可供親友過夜的休息區。
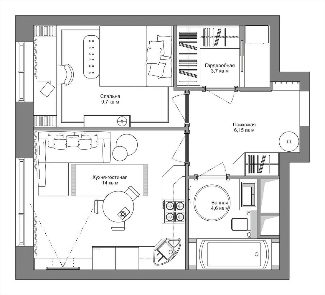
「Studios 3.14」方案
伊琳娜·列戈特金娜
專家
「Studios 3.14」設計師、藝術指導
為了使廚房-客廳更加優雅和舒適,我們在臥室中犧牲了一些空間。除了床之外,我們還提供一個用於衣物儲存的衣櫥和一張佔滿窗邊整面牆的大桌子。如果需要,夫妻雙方可以同時在此工作而不互相打擾。桌子兩側會設置書架和文件櫃。
客人可以在客廳中的大角沙發上舒適地坐下。它也可以作為額外的睡眠區域使用。與此對面,我們將安裝一個帶柱子的廚房儲物櫃,用於嵌入式電器。它延續至電視下的衣櫥。在房間中央,在廚房區域與客廳之間,我們提供一張餐桌。
無法直接從臥室進入衣櫥,但門位於附近。
在衣櫥的一個專門凹槽中,我們將安裝洗衣和脫水機以避免佔用浴室空間。這樣的佈局仍留有足夠空間設置寬敞的走廊,其中還包含衣櫥、開放式服裝架和坐墊。
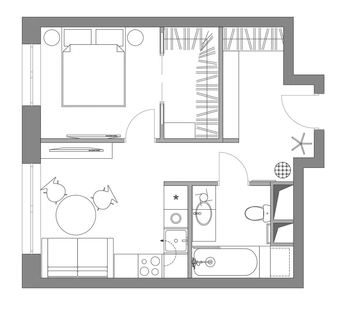
「The Design Point」工作室方案伊萬·米羅柳博夫
專家
「The Design Point」藝術指導
為了一對溫馨年輕夫妻,我們提供與餐桌連接的廚房沙發。它可以折疊,因此可用作客人睡眠區域。與沙發對面,我們安裝電視。在小角落的廚房儲物櫃中,包含所需的一切——從四灶爐到冰箱和洗碗機。我決定不以門隔開廚房與客廳,以便視覺上擴展空間。
臥室保持獨立,但進入通道不是從走廊而是從客廳。
這使我們能將房間的一部分設計為寬敞的衣櫥:所有衣物都隱藏起來,只有床、邊桌和電視在臥室中可見。此方案在走廊中留有足夠空間,其中還會設置兩個衣櫥、日常穿著的服裝架、鏡子和坐墊。
我們略微增加了浴室面積,以容納沿牆設置的洗手台和洗衣機。
繼續閱讀設計對決的勝利者是伊琳娜·列戈特金娜(「Studios 3.14」)
結果由編輯團隊於2018年3月1日公布
Need a renovation specialist?
Find verified professionals for any repair or construction job. Post your request and get offers from local experts.







