重新设计两居室公寓:3个实例
我们解释了如何在新公寓中合理布置空间
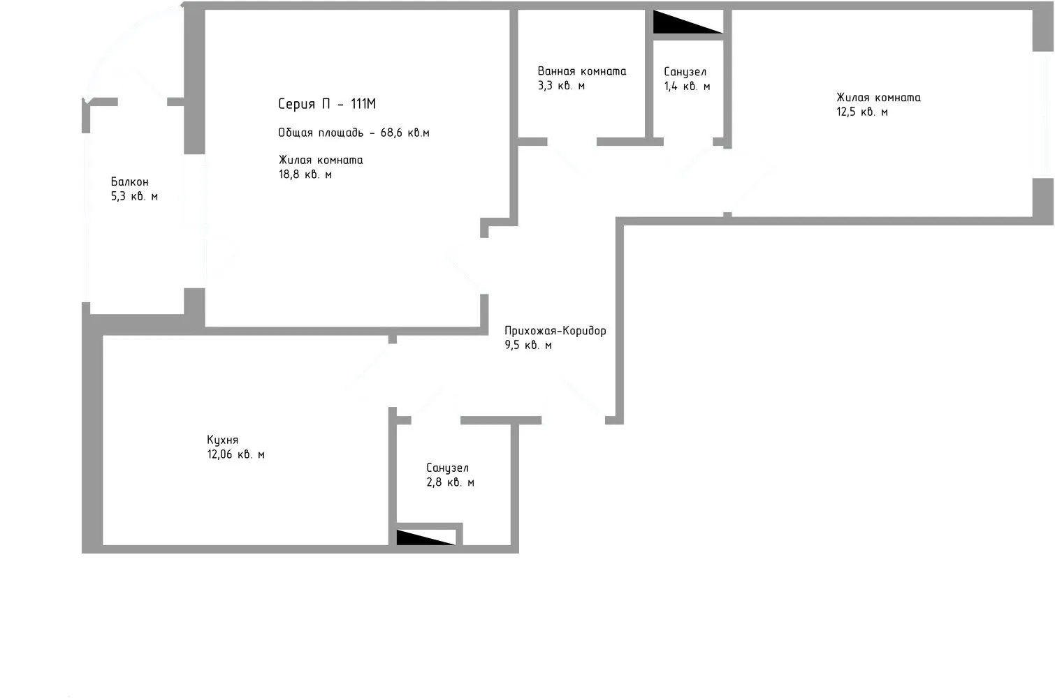
新公寓的布局并不总是符合我们的期望和需求。'温馨公寓'工作室总监、设计师娜塔莉亚·普雷奥布拉任斯卡娅基于P-111M住宅系列,提出了三种重新设计两居室公寓的方案。
关于P-111M系列两居室公寓的几点说明
两居室公寓面积较小——60平方米,房间布局不太方便——所谓的'铰链式'布局。优点包括:宽敞的阳台、较大的休闲区域以及没有承重墙,这使得重新设计任务更加容易。
请注意:在以下提出的每种重新设计方案中,浴室和卫生间可以是合并的,也可以保持独立。

年轻夫妇的布局
该布局包括宽敞的卧室、客厅和厨房。在公寓项目中,做了两个实用性的改动:将大卫生间合并,并在走廊中放置了一个内置衣柜。虽然因此从客厅中节省了约几米的空间,但房间依然宽敞,能够轻松容纳一个休闲椅和工作区。

有孩子的家庭布局
孩子需要个人空间,因此在该项目中设有一间儿童卧室。该房间可设置一个小隔断来安装一个宽敞的衣柜。第二个房间是父母的客厅和卧室。大卫生间被合并,同时安装了方便使用的浴缸,而小卫生间则设置了淋浴间——这样每个家庭成员都有足够的空间,即使他们的早晨安排重叠。注意:在该项目中,阳台设置了一个吧台,走廊预留了衣柜空间。

双胞胎家庭的布局
有两个孩子时,显然需要更多空间。在这种情况下,合理分配儿童和父母各自的卧室以确保充分休息是明智的选择。在该项目中,厨房略作扩大,利用了大房间和一个小客厅空间,其中设置了沙发和挂墙电视。卧室中预留了储物空间:在大房间中放置了一个紧凑型衣柜,而在儿童卧室中,则通过上下铺床和靠窗的宽敞书桌解决了储物问题。

封面设计:安东尼·谢苗诺夫的设计项目
Need a renovation specialist?
Find verified professionals for any repair or construction job. Post your request and get offers from local experts.







