混凝土舒适感:现代风格工作室项目
在这套位于高层建筑31楼的开放式公寓中,三间舒适的房间即将布置完毕。它们将通过冷色调和工业元素连接在一起。
红砖、金属、玻璃、动态线条、对工业设计的兴趣、海洋的幻想以及都市舒适感的热爱……所有这些想法都试图在工作室公寓业主和设计师Pavel Alexeev的雄心勃勃的项目中实现,该项目围绕9根混凝土柱布置三居室空间。
这套公寓的主人是一对中年夫妇:他是一位企业家,她作为合作伙伴参与家庭生意。他们已经结婚多年,养育了一个女儿,并继续一起工作,照顾一只法国斗牛犬。为了这只法国斗牛犬,客户要求设置一个淋浴间:公寓原本设计了两个浴室,因此可以将其中一个用于清洗宠物。
为了他们自己的舒适感,客户需要一个独立卧室。此外,作为一家之主,经常在家办公,因此还需要一个小办公室。家庭主妇则要求在其中一个浴室旁边设置一个独立的洗衣区域。否则,保持从宽敞客厅中感受到的空间感非常重要,所以我将工作室空间保留了不必要的隔断——项目中只在天花板上悬挂了一面绳墙,将入口大厅和休息接待区分开,但视觉上保留了所有空间体积。



改造
无需重新配置——空间几乎没有隔断,只有浴室由隔断分隔。卧室位于承重墙上,保持原位,但我们决定移除全景窗并将阳台区域连接到房间。


装修
材料尽可能选择生态安全的:地板使用实木板代替拼木地板——所有起居空间;墙面和地面使用陶瓷石材——两个浴室。墙面将被涂漆,某些区域会采用装饰效果。天花板使用石膏板。
储物
储物系统简单而宽敞:由于公寓体积较大,几个柜子就足够了。例如,在厨房中,所有小件物品都会在大柜子的抽屉和架子上找到位置。在绳墙旁的客厅中设有一层架子,用于放置公寓主人的藏书。客厅中,电视下方将设置一个宽大且方便的侧边柜,带有许多抽屉;走廊中则设置一个总长度为6米的宽敞衣柜。
所有家用清洁剂和洗衣必需品都将隐藏在“洗衣房”中,仅在浴室保留个人卫生用品。办公室通过封闭式架子和桌子本身提供储物空间,卧室则通过床头柜和嵌入卧室整体体积的大型衣柜提供储物空间。



照明
照明方案根据公寓中将要发生的过程制定。我按照最大便利性原则设计插座和灯具的位置。整个空间不使用吊灯,上层照明采用射灯,下层则使用落地灯和壁灯。客厅中某些区域配有装饰性照明——当然也可作为独立光源使用。整个空间将安装穿透式开关和并联开关,以便在不离开床的情况下关闭浴室照明。



色彩
客户希望色彩调色板不会干扰想象,而是带来宁静感。家庭主妇计划使用“海洋”蓝色调,但太冷且戏剧性强——最终我们将其转化为卧室装饰中的深绿松石色调。客厅则以混凝土柱的哑灰色为基础,加入黑色突出空间中特定区域。我想要用白色提亮整个色调,并通过沙色和木色调柔和它。
家具
客户对任何特定品牌没有特别偏好,但有机会使用设计师作品。因此,可以在极简室内设计中融入真正的现代艺术作品:例如,厨房椅子选择了由设计师Karim Rashid设计的BoConcept Ottawa系列。客厅沙发来自Saba Pixel,卧室床来自B&B。餐桌、柜子、架子及其他许多室内物品均根据我的图纸和草图由我们的工匠定制制作。


装饰与纺织品
由于空间宽敞且室内极简,所有可见物品都作为装饰。包括书籍、海报和室内植物。但这些物品并不多——我和客户都不希望室内过度拥挤。我们主要根据触感选择纺织品——面料必须手感舒适。当然,也应具备实用性。
风格
整个空间围绕混凝土柱构建,其深灰色调和独特质感。我建议采用loft风格,客户同意了——在混凝土柱之间出现了砖墙。其他混凝土柱之间悬挂绳索,在客厅区域布置了建筑家具;与此同时,所有沉重的工业设计通过木材、大量浅色和意想不到的点缀而柔和。条纹板、鲜艳海报、装饰底座上的铸铁猫雕塑——所有这些都使工作室摆脱了过度的严肃性、直线性和僵硬感。总体而言,这是一种现代、宁静且适度折中风格。



时间表
从房屋交付起,实施周期为4个月。
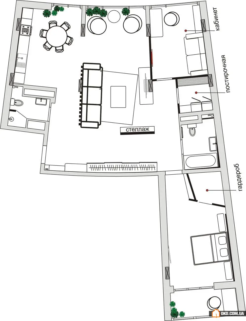
面积
总面积:125平方米
工作室空间(厨房-客厅-入口):67平方米
办公室:12.5平方米
卧室:33平方米(含内置衣柜)
小浴室:4平方米
大浴室:6平方米
洗衣房:3.5平方米
层高:3.7米(根据项目,装修后)
平面图


Need a renovation specialist?
Find verified professionals for any repair or construction job. Post your request and get offers from local experts.







