厨房设计项目:全部详情
厨房设计项目的问题与解答。什么是厨房设计项目?它是设计师的一项综合任务——规划您厨房或任何其他房间的新外观。
厨房设计项目问题与解答
什么是厨房设计项目?
它是设计师的一项综合任务——规划您厨房或任何其他房间的新外观,包括:
- 带有所有工程通信的测量计划。
- 布局方案(家具布置平面图、房间分区等)。
- 安装计划(隔断、结构和工程通信的拆除/安装计划)。
- 房间天花板平面图、照明平面图、电气设备布置、地板覆盖材料(以及每个区域使用的维修材料说明)等。
费用是多少?
费用将直接取决于设计项目的组成。组件包括:工作图纸、帮助选择装修材料、3D可视化。
费用是否与项目复杂度相关?
不,设计项目的费用仅取决于被设计区域的面积。
在开发过程中费用是否变化?
不,除非合同中指定的面积发生变化。
开发时间周期是多久?
时间周期取决于客户对设计师请求的响应速度、批准提供的计划、图示和图纸的速度。对于小面积区域,设计项目可能在两周内完成。理想情况下(不赶工),在一个星期内。
付款流程是怎样的?
通常,设计师工作的全部费用仅在最终结果交付给客户后支付。可能需要提前支付约150美元的预付款。然而,付款计划和金额应单独协商。
3D可视化是否必要,或者可以放弃这项服务?
如果是关于翻新工作,则不需要3D可视化。它只提供客户厨房外观的视觉呈现。
材料是如何选择的?
大多数公司不会在商店中选择材料,而是从制造商目录中选择,仅在客户批准后。理想情况下,应安排客户亲自检查材料的现场参观。
是否可以放弃设计师选择材料的服务?
是的,但自己做会花费更多时间。专业人士可以更快、更高效地处理这项任务。
工程系统的路径是否会在设计中显示?
是的,这是项目的一个强制性元素。没有它,设计项目就只是某人脑海中的图片,而不是对厨房空间进行周密规划的系统。
设计项目中是否可以包含电气工程?
重要的是要区分电气供应的工程和设计项目。在前者中,必须详细计算功率消耗、线路数量、电缆横截面积等。在设计项目中,只标明电气点(插座、开关、灯具等)的位置。电气工程是一项独立类型的工作,必须由工程师在签署单独合同后完成。
如果设计项目包括房间重新规划,它是否具有法律效力?
是的,因为任何重新规划都必须在专业机构中获得批准(理想情况下,应由设计公司聘请的专家处理审批)。如果需要此类工作,设计项目的费用将包括设计师用于审批的时间费用。或者,客户可以自己处理(不影响成本)。
项目工作将如何进行?
在签署合同并支付预付款后,设计师通常会在两到三天内访问现场进行测量(此阶段可以在客户不在场的情况下进行)。完成测量后,设计师应在两到三天内联系客户安排第一次会议。在这次会议上,双方填写技术规范、讨论偏好的设计风格、颜色方案、功能区域等。第一次会议通常持续约三小时。然后,按工作顺序,设计师会向客户提供房间重新规划、平面图、照明、天花板布局、家具计划等变体。
专家通常使用什么设计软件?
最常用的是AutoCAD或ArchiCAD用于工作图纸,以及3D Studio MAX + VRay用于3D可视化。
客户可以在什么格式下接收完成的设计项目?
设计文档通常以纸质格式(A3尺寸)提供给客户,并且还以电子形式(JPG/Adobe PDF图像)提供。
厨房设计项目:

照片1 — 设计项目可视化的示例

照片2 — 设计项目可视化的示例

照片3 — 设计项目可视化的示例

照片4 — 设计项目可视化的示例

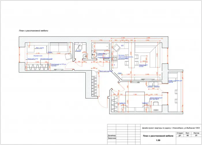
照片5 — 设计项目平面图示例
现成厨房设计项目:优缺点
除了订购定制厨房设计项目外,您还可以使用已开发的标准项目(不进行重新规划)。其中一些项目可在线免费获取,您可以在没有计算表或图纸访问权限的情况下查看。在这种情况下,您可以基于图像自行选择必要的室内元素或从当地工厂订购家具。
创建标准房间的布局,特别是如果客户明确知道自己想要什么,甚至计划购买现成工作——这是一种节省时间的选择,同时保持相同质量和生产力水平。
费用估算
工作估算费用:
当空间总面积小于100平方米时,您可以订购大约50美元/平方米的厨房设计项目。
" "
Need a renovation specialist?
Find verified professionals for any repair or construction job. Post your request and get offers from local experts.







