娜拉之家:尼罗蒂娜·尼萨尼重新诠释泰国狭窄住宅
在泰国莫恩纳拉特瓦特,尼罗蒂娜·尼萨尼将一间简朴的木制商店改造成了大胆而现代的住宅。娜拉之家重新定义了仅宽四米的地块上的家庭住宅,展示了建筑创新如何克服空间限制而不牺牲舒适性、私密性或自然采光。
突破狭窄地块的限制
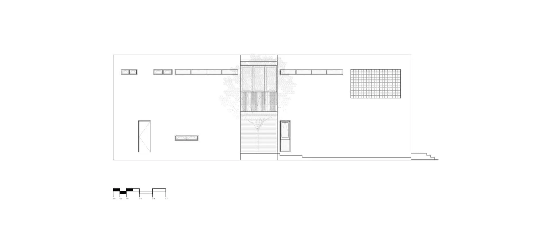
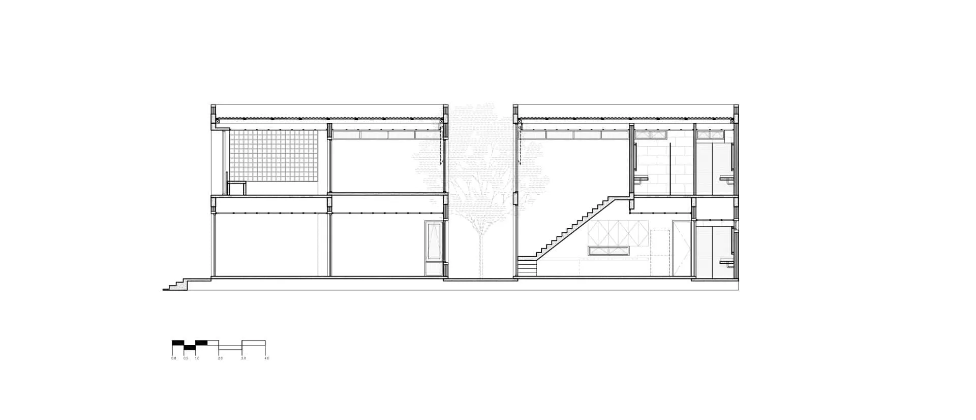
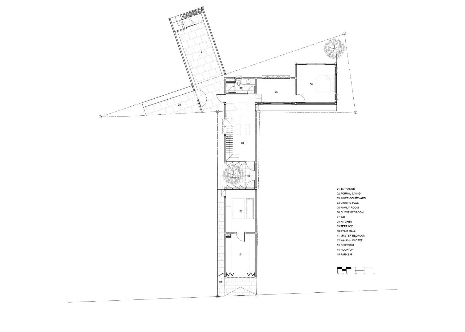
不寻常的地块形状和紧凑的前部构成了严峻的建筑挑战。解决方案是垂直重新分配功能并引入一个中央内院,它将空气、光线和空间渗透到房屋的核心。
项目没有使用侧窗(受法律限制),而是通过屋顶窗户、双层体积和透明连接来创造狭窄结构中的宽敞感。这个内院不仅仅是一个被动空间,更是一个积极的社交中心,通过二楼开放的走廊将商业区与私人家庭区域连接起来。
流畅的空间流动
房屋如一场空间层的旅程,这些层既相关又各自独立:
-
前部区域:保留了原始商店的功能,融合传统与现代生活。
-
内院:作为商业区与居住区之间的自然分隔,确保光线进入。
-
后部家庭区域:餐厅、楼梯和休闲区通向内院,增强了视觉与物理联系。
-
私人卧室:位于动线末端,确保安静与私密。
楼梯平台设计为双层体积,强化垂直联系并最大化自然采光。大面积镜面进一步增强光线反射,将内院的绿色生机深入屋内。
极简室内设计搭配鲜明亮点
室内采用单调的黑白配色,与天然石材饰面和温暖木质地板形成对比。家具沿墙和楼梯排列,以优化每一寸可用空间。简洁线条与适度装饰营造出宁静有序的氛围。
深浅表面之间的对比创造了节奏与个性,使狭窄房间显得生动而非受限。隐藏的天然纹理避免了极简主义的过度克制,达到优雅与实用之间的平衡。
富有表现力且贴合语境的立面设计
房屋外观尊重邻居,采用周围木质立面的节奏,但以更现代的方式诠释。前部可调节的木门允许房屋改变其表达——关闭时保护私密,开启时促进互动,增添趣味性让外观视觉上引人入胜且出人意料。
通过控制透明度,立面在公共存在与私人隐秘之间找到平衡,在融入环境的同时彰显自身独特性。
摄影师 © Bhir Sinnoi
摄影师 © Bhir Sinnoi
摄影师 © Bhir Sinnoi
摄影师 © Bhir Sinnoi
摄影师 © Bhir Sinnoi
摄影师 © Bhir Sinnoi
摄影师 © Bhir Sinnoi
摄影师 © Bhir Sinnoi
摄影师 © Bhir Sinnoi
摄影师 © Bhir Sinnoi
摄影师 © Bhir Sinnoi
摄影师 © Bhir Sinnoi
摄影师 © Bhir Sinnoi
摄影师 © Bhir Sinnoi
摄影师 © Bhir Sinnoi
摄影师 © Bhir Sinnoi图纸
摄影师 © Bhir Sinnoi
摄影师 © Bhir Sinnoi
摄影师 © Bhir Sinnoi
摄影师 © Bhir Sinnoi
摄影师 © Bhir Sinnoi
摄影师 © Bhir Sinnoi
摄影师 © Bhir Sinnoi
摄影师 © Bhir Sinnoi娜拉之家由尼罗蒂娜·尼萨尼设计,不仅是对地块限制的回应,更是对适应性强、采光良好城市住宅的一种宣言。通过创新的内院、天窗和动线设计,该项目证明了建筑设计能够将限制转化为机遇,创造一个功能性强、富有诗意且与环境深度相连的家。
Need a renovation specialist?
Find verified professionals for any repair or construction job. Post your request and get offers from local experts.







