Luz | iHouse | 卡拉斯科,蒙得维的亚,乌拉圭
传统重塑:卡拉斯科历史街区的现代家庭住宅
在蒙得维的亚的历史区域卡拉斯科,以模块化建筑见长的公司iHouse在项目Luz中采取了另一条路径——这是一种结合传统与现代优雅的现场组装方式。
该项目旨在为不断壮大的家庭提供永久性住所。它要求将传统的别墅转变为明亮、安全且灵活的住宅。Luz在隐私与开放之间寻找平衡,呈现出一种建筑对话,将过去与现在融合在一起,永恒的材料与现代设计相得益彰。
设计理念
客户需求iHouse超越常规的模块化方法,回归传统的现场建造。然而其核心理念——精确性、效率和环保——依然处于中心位置。
客户希望拥有单层住宅,包含四间卧室、办公室、健身房和游戏室。设计需确保来自街道的高度隐私,同时提供充足的玻璃表面和自然光。
这些要求促成了由平行带构成的布局,明确划分了公共与私人区域,营造出空间节奏,在独处与透明之间达到平衡。
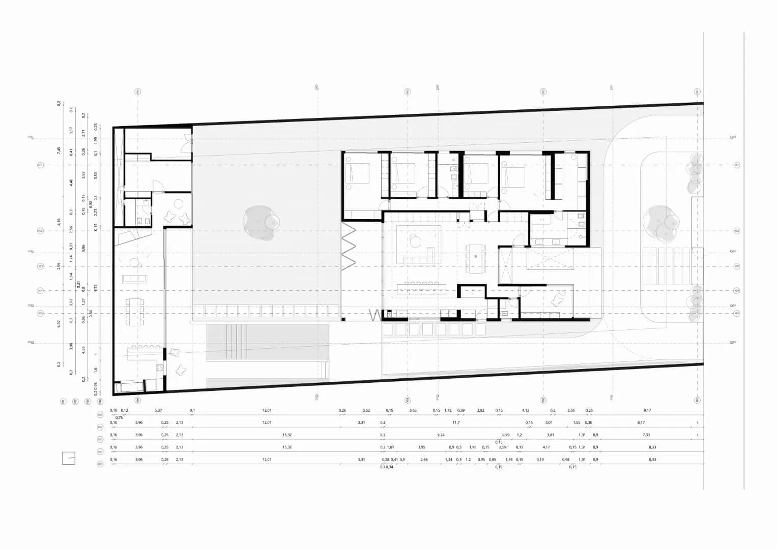
平面布局和空间组织
Luz占地1036平方米,朝向北方,由两个主要线性翼楼组成,通过庭院和明亮空间相互连接:
-
西侧区域用于私人空间——卧室、浴室和家庭办公室,提供隔音与街道隔离。
-
东侧区域定义了社交核心,包括休闲区、餐厅和厨房以及主要入口。
这些区域之间通过一系列庭院和灯柱引入自然光深入室内,模糊内外边界。后方设有玻璃烧烤亭,连接健身房和游戏室,作为家庭中心并扩展花园。
这种清晰的分区在不造成隔离的情况下确保了隐私,精心设计的透明度营造出宁静的家庭氛围。
建筑表达与材料
从形式上看,住宅呈现为两个混凝土层包围着一个透光空间——极简构图传达了坚固与轻盈。开口经过精心布置以控制光线、隐私和安全,无需额外障碍。
材料强调坚固与永恒:
-
混凝土用于结构和保护。
-
天然石材与抛光整体地板,呼应卡拉斯科传统别墅。
-
木材与钢结构装饰,增添温暖和精致感。
-
大面积玻璃表面,框出精美的景观并照亮室内。
这些材料共同创造出坚固与克制之间的触觉对话,强化了住宅与其花园环境的融合。
光线、隐私与安全
项目中心是对光和围护结构的敏感运用。庭院与灯柱如建筑中的轻盈元素,引导日光贯穿整栋住宅并保持完全的视觉隐私。
混凝土外壳上的穿孔根据功能不同:较大的开口照亮公共区域,较小的则保护卧室隐私。立面逐渐透明柔和地界定公共与私人空间,避免过度装饰。
这种建筑清晰度通过设计而非强制性障碍实现安全性,是对现代城市生活的优雅回应。
室内与氛围
Luz内部实现了基于舒适度的宁静极简主义。整体地板让人联想到传统的乌拉圭住宅,将翻新与背景联系起来。同时定制家具和柔和的灰白色调为室内增添现代精致感。
自然光在白天照亮表面,创造出一个开放但温馨、现代却永恒的住宅——完美体现“Luz”(西班牙语:光)这一名称。
Luz由iHouse设计,是对传统建筑通过现代极简主义视角的精湛重塑。结合混凝土结构的确定性和家庭材料的温暖,建筑师创造了一座稳固、安全且明亮的家庭住宅,尊重历史街区同时拥抱当下。
该项目彰显了iHouse的普遍性——无论模块化还是手工制作,其设计始终由清晰、精确与光明主导。
摄影师 © Aldo Lanzi
摄影师 © Aldo Lanzi
摄影师 © Aldo Lanzi
摄影师 © Aldo Lanzi
摄影师 © Aldo Lanzi
摄影师 © Aldo Lanzi
摄影师 © Aldo Lanzi
摄影师 © Aldo Lanzi
摄影师 © Aldo Lanzi
摄影师 © Aldo Lanzi
摄影师 © Aldo Lanzi
摄影师 © Aldo Lanzi
摄影师 © Aldo Lanzi
摄影师 © Aldo Lanzi
摄影师 © Aldo Lanzi
摄影师 © Aldo Lanzi
摄影师 © Aldo Lanzi
摄影师 © Aldo Lanzi
摄影师 © Aldo Lanzi
摄影师 © Aldo Lanzi
摄影师 © Aldo Lanzi
摄影师 © Aldo Lanzi
摄影师 © Aldo Lanzi
摄影师 © Aldo Lanzi
摄影师 © Aldo Lanzi
摄影师 © Aldo Lanzi
摄影师 © Aldo Lanzi
摄影师 © Aldo Lanzi
摄影师 © Aldo Lanzi
摄影师 © Aldo Lanzi
摄影师 © Aldo Lanzi图纸
摄影师 © Aldo Lanzi
摄影师 © Aldo Lanzi
摄影师 © Aldo Lanzi
摄影师 © Aldo LanziNeed a renovation specialist?
Find verified professionals for any repair or construction job. Post your request and get offers from local experts.







