258号住宅 | Cornetta Arquitetura | 圣罗克,巴西
混凝土、森林和光线的对话
位于风景如画的圣罗克丘陵中,258号住宅由Cornetta Arquitetura设计,重新诠释了建筑与景观之间的关系。坐落在陡峭的地形上,被当地植被环绕,住宅将材料的厚重感与轻盈、悬挂的空间相结合,创造出一个扎根大地又面向远方的住宅。
该项目展示了工作室对精确性、克制和环境敏感性的方法,将复杂的地形转化为宁静的建筑表达。
位置与概念
场地提供了俯瞰绿色山谷的全景,被成熟树木环绕。任务是接纳周围的自然环境,而不破坏它。住宅并没有凌驾于地形之上,而是其轮廓与环境协调一致——保留了现有的森林并在景观中创造出战略性的空隙。
三个主要视觉元素构成了设计概念:茂密的森林、远处的丘陵和天空。每一面外墙都对应其中一个水平元素,确保每个房间都能与自然建立直接联系。
体量构成
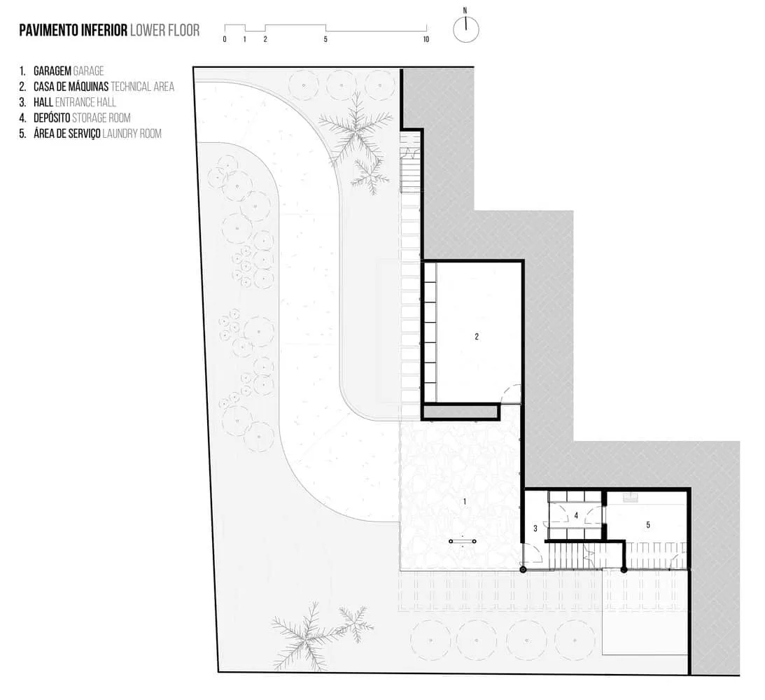
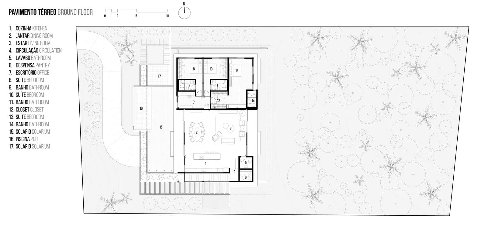
258号住宅由两个不同但相互关联的层级组成:
-
下部基座部分埋入地下,增强了住宅在斜坡上的稳定性。由裸露混凝土和当地石材建造,包含储藏区、车库和技术空间,并作为稳固的结构支撑陡峭的山坡。
-
上部亭式结构与这种坚固感形成对比,提供轻盈感。由钢材和玻璃建造,向外突出,仿佛漂浮在景观之上。该层设有公共和私人区域——客厅、餐厅、厨房和卧室,通过连续的露台连接,模糊了室内与室外之间的界限。
通往主层的通道是悬臂楼梯,营造出从森林地面到高处树木的电影感入口。
材料与结构
材料对比定义了建筑表现力。原始混凝土基座传达稳定与重量感,而上部结构采用炭化木材(Sugih)和玻璃装饰,体现透明与临时性。
细钢结构允许宽挑檐和最小柱距,强调水平感并强化上层仿佛漂浮在树间的视觉效果。宽挑檐和可移动玻璃墙确保自然通风并控制阳光,优化全年舒适度。
内部材料保持诚实且触感丰富:抛光混凝土地板、温暖木材天花板和天然装饰材料反映周围环境。室内感觉与外部景观连续,阳光穿透树木,在一天中形成光影和纹理的变化。
光、影与氛围
在258号住宅中,光被视为建筑材料。大开口让晨光进入公共区域,而深挑檐则减少炎热午后的强烈光线。卧室朝向森林,通过垂直木质百叶窗获得柔和过滤的光线,提供私密性和自然联系。
夜晚时分,住宅内部柔和发光,使玻璃亭式结构成为树丛中的灯塔——圣罗克丘陵上的宁静灯塔。
生态性与场地融合
除美学外,可持续性嵌入项目逻辑中。高耸结构减少了对场地的影响,保留了树木根系并允许自然排水系统运作。混凝土基座提供热质量,稳定室内温度;横向通风和大开口减少对机械制冷的需求。
天然材料如石材和木材来自本地,施工方法强调耐久性、低维护以及适应潮湿热带气候的能力。
258号住宅由Cornetta Arquitetura设计,是对自然与结构、重量与轻盈、开放与庇护之间平衡的探索。其漂浮的亭式结构、凿削基座与材料的柔和组合,使住宅与森林斜坡达成和谐统一,同时保持强烈的建筑身份。
这不仅仅是一座风景中的住宅——它是以景观为形式的建筑,一种组合,其中自然、结构和光线在永恒平衡中共存。
摄影师:© João Paulo Soares
摄影师:© João Paulo Soares
摄影师:© João Paulo Soares
摄影师:© João Paulo Soares
摄影师:© João Paulo Soares
摄影师:© João Paulo Soares
摄影师:© João Paulo Soares
摄影师:© João Paulo Soares
摄影师:© João Paulo Soares
摄影师:© João Paulo Soares
摄影师:© João Paulo Soares
摄影师:© João Paulo Soares
摄影师:© João Paulo Soares
摄影师:© João Paulo Soares
摄影师:© João Paulo Soares
轴测图 — Cornetta Arquitetura
纵向剖面 — Cornetta Arquitetura
底层平面图 — Cornetta Arquitetura
一层平面图 — Cornetta ArquiteturaNeed a renovation specialist?
Find verified professionals for any repair or construction job. Post your request and get offers from local experts.







