Как обустроить удобную квартиру без перепланировки?
Сделать законную перепланировку не всегда возможно — с такой проблемой часто сталкиваются жители «панелек». Да и не все готовы переносить стены и терпеть дополнительные неудобства. Но даже с помощью только декораторских приемов можно оформить классный интерьер — смотрим, как.
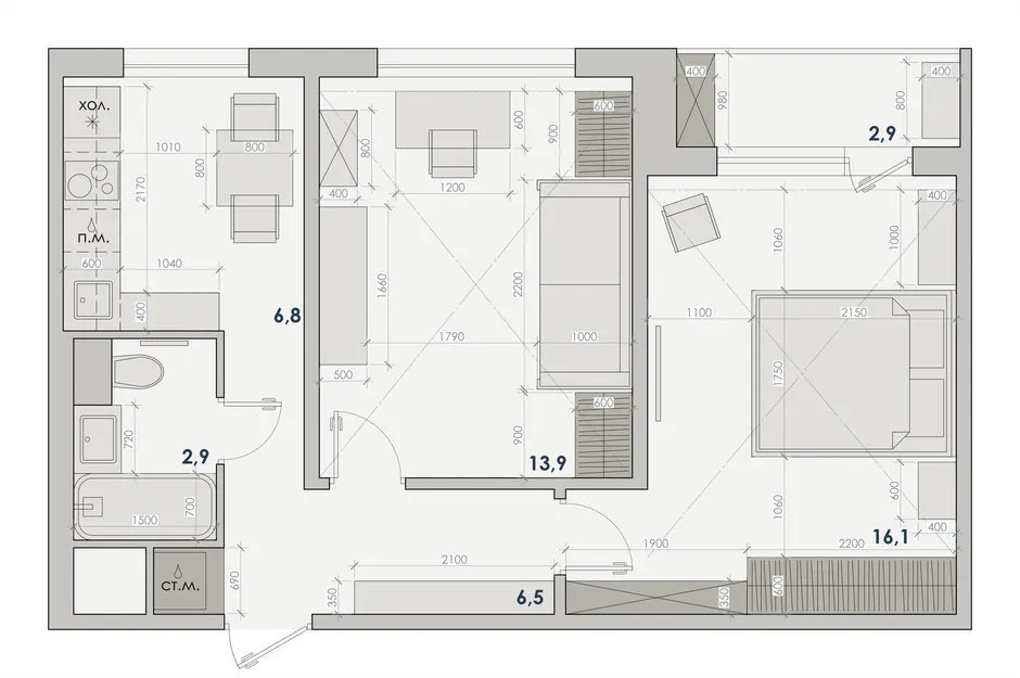
Небольшая двушка в «брежневке»
Площадь: 49 кв. м
Тип дома: панельный
Место: Москва
Площадь квартиры небольшая, а внутренние стены все несущие, поэтому о радикальной перепланировке не было речи. Изменили только санузел — объединили его с ванной. Дизайнер сделала ставку на нейтральную палитру, продуманную расстановку мебели и вместительные шкафы — получился удобный и не тесный интерьер.
смотреть проект полностью

Дизайн: Наталья Широкорад
Планировка

Трехкомнатная квартира с двумя рабочими местами
Площадь: 78 кв. м
Тип дома: панельный
Место: Москва
Анна Моджаро оформила квартиру для супругов, которые работают дома. Кроме кухни, гостиной, спальни и детской в типовой трешке удалось оборудовать еще и два рабочих места — и все это без перепланировки.
смотреть проект полностью

Дизайн: Анна Моджаро
Планировка

Двушка с грамотной расстановкой мебели
Площадь: 62 кв. м
Тип дома: кирпичный
Место: Москва
Затевать кардинальную перепланировку не стали. Изменения в основном коснулись холла и коридора — они приобрели более правильные формы. Санузел немного уменьшили, чтобы он был вровень с ванной комнатой. Эту линию продолжила перегородка, которая выделила прихожую в отдельное помещение. Вход в гостиную немного сместили и сузили – и в торце комнаты встали шкафы.
смотреть проект полностью

Дизайн: Артур Минаков, Юлия Федотова
Планировка

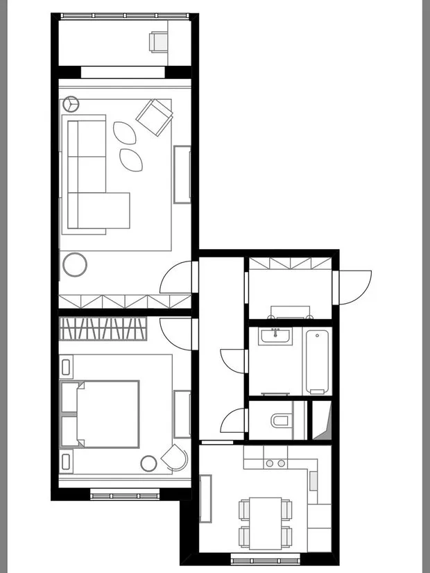
Однушка с реечными перегородками
Площадь: 45 кв. м
Тип дома: монолитно-кирпичный
Место: Москва
Заказчица приобрела «евродвушку» и предложила дизайнерам ничего в ней кардинально не менять, лишь выделить в единственной жилой комнате две зоны: гостиной и спальни, но так, чтобы общий объем помещения сохранялся. Выполнить эту задачу помог испытанный прием: легкая перегородка из деревянных реек.
смотреть проект полностью

Дизайн: Дмитрий Воробьев
Планировка

Двухкомнатная квартира в старом доме
Площадь: 60,5 кв. м
Тип дома: сталинский
Место: Москва
Ирина Киреева не стала ломать в сталинской квартире стены и менять комнаты местами: оказалось, что ее можно преобразить, используя только декораторские приемы. Изменения коснулись лишь дверных проемов: их немного подвинули.
смотреть проект полностью

Дизайн: Dots & Points
Планировка

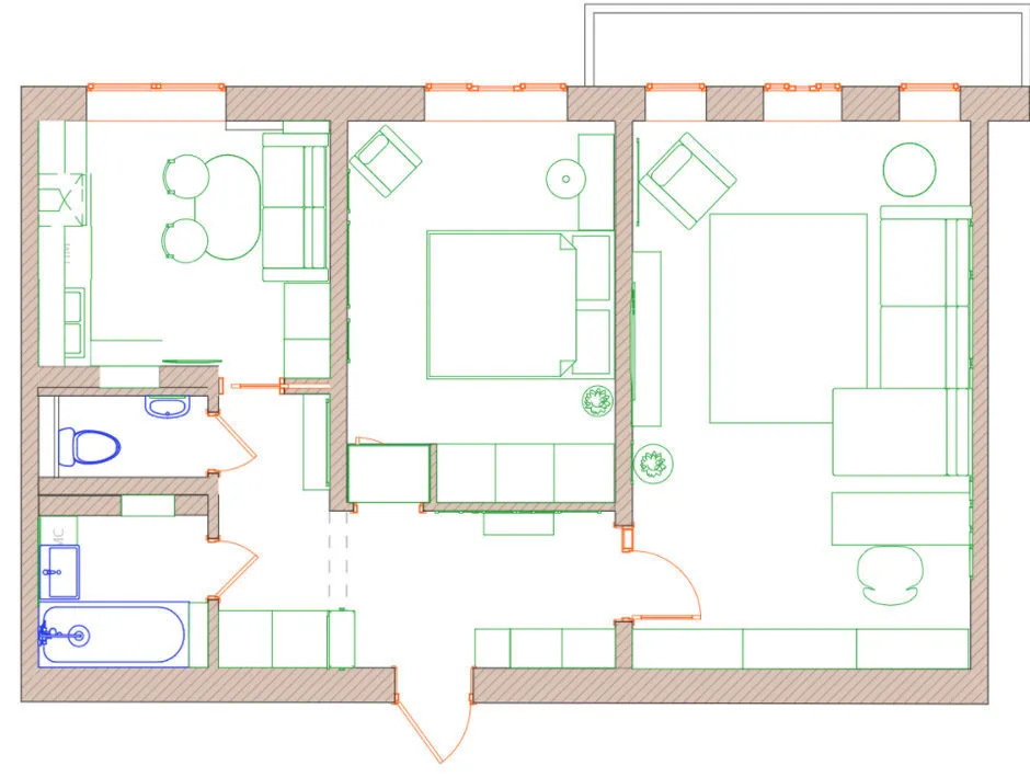
Трешка с продуманным хранением
Площадь: 72 кв. м
Тип дома: панельный
Место: Москва
Задачи при оформлении этой квартиры были стандартными: найти дополнительные возможности для хранения — в частности, оборудовать гардеробную. Перепланировки практически не было — только объединили санузел, дом панельный, особо не разгуляешься. В квартире была утеплена одна лоджия, дизайнер присоединила вторую, при спальне родителей.
смотреть проект полностью

Дизайн: Лидия Большакова
Планировка

Однокомнатная квартира с гардеробной
Площадь: 42,6 кв. м
Тип дома: новостройка
Место: Калининград
Оформить уютный и функциональный интерьер и не выйти за рамки скромного бюджета — такую задачу поставили заказчики перед дизайнерами студии Guinea Interior Design. Чтобы сэкономить время и деньги, от перепланировки отказались, зато недостаток мест для хранения решили созданием полноценной гардеробной комнаты. А разные функциональные зоны в единственной комнате выделили с помощью отделочных материалов.
смотреть проект полностью

Дизайн: Guinea Interior Design
Планировка

Нужен мастер по ремонту?
Найдите проверенных специалистов для любых ремонтных или строительных работ. Разместите заказ и получите предложения от местных мастеров.
Вам также может понравиться
Больше статей:
Как переделать мебель ИКЕА: 8 идей из проектов
Кухня будущего: главные новинки выставки EuroCucina 2018
Что не так с вашей ванной?
Яркие паттерны и цвет: интерьер трешки в Эдинбурге
Новый тренд в дизайне кухни: сдержанная классика
Оформляем кухню в панельке: как это делают профи
6 классных микрокухонь в типовых квартирах
Стиль ваби-саби: как адаптировать тренд к своему интерьеру