Дизайн однокомнатной квартиры-хрущевки. В тесноте, да не в обиде
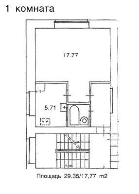
Сделать интерьер однокомнатной хрущевки практичным достаточно сложно, ведь на 17 м² жилой площади (не считая прихожую, кухню и санузел) должны уместиться зоны для работы, отдыха и сна. Рациональный вариант — совмещать зоны, приобретая модульную мебель или…

Фото 1 — Планировка однокомнатной квартиры-хрущевки
Сделать интерьер однокомнатной хрущевки практичным достаточно сложно, ведь на 17 м² жилой площади (не считая прихожую, кухню и санузел) должны уместиться зоны для работы, отдыха и сна. Рациональный вариант — совмещать зоны, приобретая модульную мебель или…
Вариант 1: задействуем балкон
И пусть такой «ход конем» не прибавит нам больше 4 м² площади, но для хрущевки и 4 квадрата — уже что-то. Застеклив и утеплив балкон, смело убирайте оконный проем и балконную дверь, выносите весь скопившийся хлам и принимайтесь за ремонт. На балконе, ширина которого редко превышает 1,3 м, можно разместить библиотечную полку, рабочее место, а то и два по обе стороны от прохода.
Например, так:

Фото 2 — Рабочее место на балконе

Фото 3 — Библиотечная полка на балконе хрущевки
Кроме того, на тот же балкон можно вынести и зону отдыха:

Фото 4 — Зона отдыха на балконе
Стеллажи под книги, растения или любимые предметы декора можно также располагать в оконном проеме: так вы и поток света в комнату не преградите, и оприходуете освободившееся от окна пространство.

Фото 5 — Стеллажи вместо окна — решение практичное и выполнимое даже своими силами
Вариант 2: модульная мебель — наше все
Итак, одну из зон мы благополучно разместили на балконе. Однако с расстановкой мебели для спальной и гостиной вопрос остается открытым.
Для экономии пространства используйте раскладную мягкую мебель. В жизни на раскладном диване нет ничего зазорного или дискомфортного. В случае меблировки комнаты только одним спальным местом неплохо иметь в кладовой ватный или, в крайнем случае, надувной матрац для гостей.

Фото 6 — Днем удобный диван, ночью — мягкая кровать
Вариант 3: долой перекрытия
Если в хрущевке вы проживаете самостоятельно или с партнером, а дети, внуки и гости — явление «сезонное», смело сносите стены, объединяя комнаты. Много площади на сносе стены не выиграешь (в среднем, ширина стены не превышает 120-250 мм), а вот видимость большего пространства квартиры у вас наверняка появится!
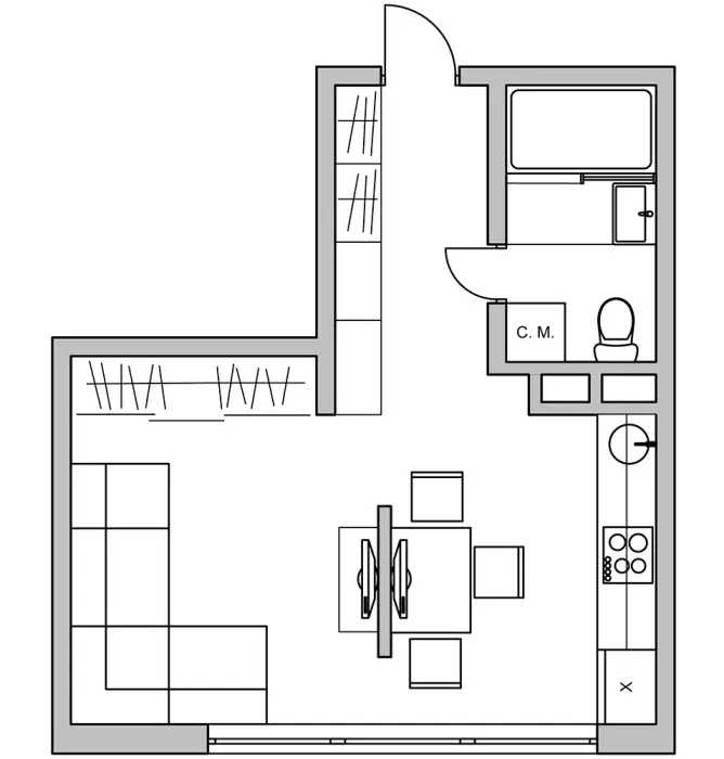
В интерьере квартиры-студии намного проще разместить всю необходимую для комфортного проживания мебель.
Если переживаете об изолированности спального места, мол, не стеснит ли вас сон в помещении без перегородок, поставьте небольшую ширму или фальш-стену между зонами, и сладкий сон при любых обстоятельствах вам точно обеспечен. Например, так:

Фото 7 — Небольшая, но функциональная перегородка для отделения приватной зоны от общественной — спальной зоны от рабочей
Можно обойтись и без перегородок, ширм и занавесок: достаточно расположить зону сна и гостиную «спиной» друг к другу: составив, например, высокое изголовье кровати и угловой диван.

Фото 8 — Решение для семьи с двумя детьми. Детские спальные места расположены в нишах по высоте стены
Дизайн однокомнатной хрущевки
Неплохие идеи для однокомнатной квартиры, которые можно перенести в интерьер хрущевки:

Фото 9 — Комната для одного без сноса стен в хрущевке

Фото 10 — Квартира-студия в Нью-Йорке

Фото 11 — Квартира-студия от Татьяны Крыловой

Фото 12 — Квартира-студия в Париже

Фото 13 — Душевая и санузел находятся за одной из витражных перегородок

Фото 14 — Дизайн-проект Евгения Трифана для однокомнатной квартиры

Фото 15 — Примеры воплощения проекта. За перегородкой — спальное место и зона отдыха

Фото 16 — По другую сторону от перегородки — обеденный стол и кухня
Нужен мастер по ремонту?
Найдите проверенных специалистов для любых ремонтных или строительных работ. Разместите заказ и получите предложения от местных мастеров.
Вам также может понравиться
Больше статей:
Совмещение кухни и гостиной в хрущевке
Кровать в дизайне спальни. Добавим изюминку
Красивый интерьер спальни. Разнообразие стилей
Интерьер спальни своими руками, нет ничего сложного
Идеи интерьера для спальни человека любого возраста
Интерьер спальни на мансарде — романтика и не только
Деревянный интерьер спальни. Используем неизменный материал всех времен
Белая спальня? Рассмотрим и другие варианты