Antes y después: una impresionante transformación de una estalinca de 57 m² en Moscú
Soluciones presupuestarias y no convencionales que inspiran a hacer reformas
Esta vivienda se encuentra en un edificio construido en 1959. El diseñador Anastasia Tyurina la decoró para una joven mujer que vive aquí con su pareja y su perro. Era necesario recrear la atmósfera que la cliente sentía en su infancia cuando vivía en una casa con sus padres.
Recorrido de la vivienda (21 minutos)
Antes de la reforma era una vivienda de dos habitaciones con un antiguo remodelado, llena de puertas, balcones, manchas en las paredes y pintura descascarada, claramente necesitaba renovación. Además, la distribución de la vivienda no se ajustaba a los requisitos actuales de comodidad y funcionalidad. Era necesario hacer una nueva distribución y un completo trabajo de reforma para crear una atmósfera acogedora y elegante que reflejara los deseos y preferencias de la dueña.
Fotos del vestíbulo antes de la reforma
Fotos de la cocina antes de la reforma
Fotos del baño antes de la reforma
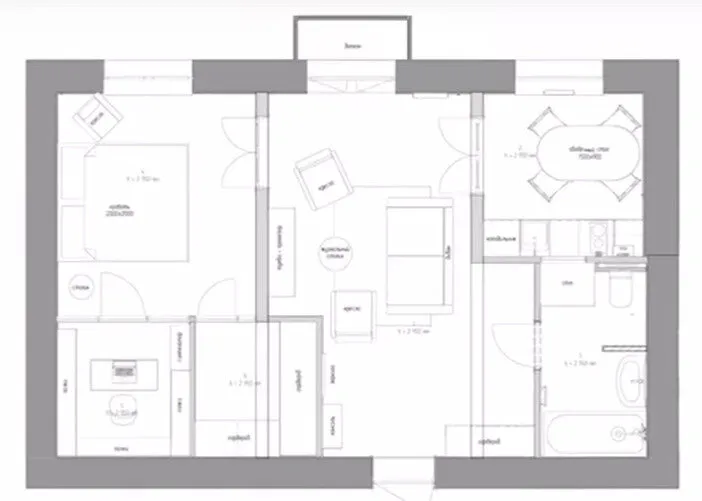
Sobre la distribución
Se cambió completamente la distribución: se demolieron todas las paredes y se reconstruyeron. Como resultado, en los 57 m² se creó una cocina independiente, salón, dormitorio, estudio, guardarropa y baño combinado.

Sobre la cocina
El área de la cocina es de 7,3 m², pero se logró colocar todo lo necesario. Las paredes están cubiertas con papel pintado de vinilo, y el suelo está revestido con un bonito azulejo con patrón. El moldura de techo de yeso se hizo a medida. La ventana entre el baño y la cocina se mantuvo y se restauró, conservando la atmósfera necesaria. Los alféizares de madera añaden calidez y acogedoridad al diseño.
La caldera de gas del baño se trasladó a la cocina siguiendo todas las normas. Para ocultarla y permitir la circulación del aire, se creó un armario original sin fondo ni techo, solo con una puerta rellena de rejillas que oculta con éxito la caldera y cumple todas las normativas.


El mueble de cocina se fabricó a medida y encaja perfectamente en el espacio. La lavadora con instalación de bajo y grifos de latón ofrecen comodidad en el uso. Un atractivo elemento visual del diseño es el espejo sobre la encimera, que visualmente amplía el espacio. En la cocina se han previsto varios escenarios de iluminación: lámpara colgante sobre la superficie de trabajo, una lámpara de techo y una lámpara de pie junto a la mesa para comer, permitiendo crear una atmósfera cómoda en cualquier momento del día.


Sobre el vestíbulo-salón
El vestíbulo y el salón se combinaron para crear una sensación de espacio abierto. La zona de entrada destaca con acentos de color y azulejos estampados en el suelo, iguales a los de la cocina. En las demás habitaciones se colocó parquet que da acogedoridad y preserva la atmósfera de la época estalinca.
En el vestíbulo se dispone un armario con balcones, pintado en tono de las paredes. Proporciona un almacenamiento ordenado y una apariencia armónica. En contraste con él, el cómodín está en un tono brillante que añade interés visual al diseño. La gran orgullosa de la dueña son las puertas de vidrio correderas que conducen a la cocina y al dormitorio.



El sofá reclinable en el salón hace que esta zona sea más funcional. Junto a la ventana se ha creado un lugar acogedor para descansar con un sillón y una banqueta forrados con una tela de acento brillante, que se complementa armoniosamente con la lámpara de techo.



Sobre el dormitorio
Originalmente, la habitación grande se dividió en varias zonas funcionales: guardarropa, estudio y zona de descanso. Las paredes están cubiertas con papel pintado claro, mientras que para el estudio se eligieron tonos más oscuros. Para separar la zona de trabajo del dormitorio se planea instalar una cortina de vidrio que visualmente no pesará el espacio. En el estudio, además del escritorio, se prevén estanterías colgantes. En ellas se ha organizado una pequeña biblioteca, un sueño desde hacía tiempo de la dueña.
En el dormitorio todo está decorado con simplicidad y elegancia: una cama de matrimonio forrada con un tejido de acento y dos mesitas colgantes junto a la cama. Este enfoque minimalista permite concentrarse en el descanso y la relajación.



Sobre el baño
Durante la reforma se combinaron los baños y se volvió brillante y moderno. Parte de las paredes están revestidas con azulejo texturado verde, mientras que el resto está pintado en color rojo. El suelo está revestido con azulejos estampados, que dan un toque especial al diseño.
La caldera de gas se trasladó a la cocina, y la tubería se ocultó en una caja elegante. La ventana entre la cocina y el baño se mantuvo, sirviendo no solo como fuente de luz sino también como elemento decorativo. En el nuevo baño se prevén una bañera completa, un lavabo y una gran tumbona para almacenamiento. La lavadora está colocada en la esquina, lo que mejora la funcionalidad del espacio. Dos lámparas junto al espejo proporcionan una iluminación suave, mientras que la lámpara de cristal añade acogedoridad y estilo.



¿Quieres que tu proyecto sea publicado en nuestro sitio web? Envíanos fotos del interior a wow@inmyroom.ru.
Need a renovation specialist?
Find verified professionals for any repair or construction job. Post your request and get offers from local experts.
You may also like
Más artículos:
¿Por qué en los apartamentos soviéticos había menos polvo?
10 tendencias encontradas para renovar el interior
8 buenos diseños que inspiran en una dúplex funcional y estético
¿Es necesario limpiar las ventanas antes del invierno o se puede esperar hasta primavera?
El estilo nórdico se ha ido: qué estilos de interiores salieron de la moda en 2025
Jennifer Aniston de nuevo en el aire, y 'The Office' regresa: 5 series que explotarán septiembre
Zona de TV acogedora para toda la familia: 6 ideas elegantes para decorarla
Máximamente diseñada la cocina en una nueva vivienda de 33 m²