7 soluciones de diseño no convencionales para pisos pequeños
Inspírate y toma nota de ideas interesantes del proyecto
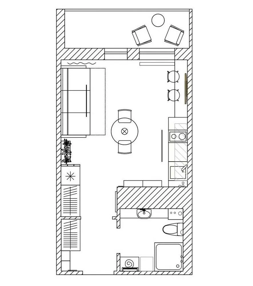
El área de esta habitación individual es de solo 26 metros cuadrados. Sin embargo, el diseñador Svetlana Melnikova logró diseñar un interior acogedor y luminoso en ella, y organizar todas las zonas funcionales necesarias. Mostramos ideas geniales del proyecto que definitivamente merecen tu atención.
Fondo neutro y claroNo volvieron a pegar las paredes de la constructora, solo las pintaron de blanco. Esto crea una sensación de aire y espacio, haciendo que la habitación parezca más grande de lo que realmente es.
Ausencia de puertaRetiraron la puerta entre el vestíbulo y la sala, dejando solo el marco y los picaportes. Esto permitió ahorrar espacio y ampliar visualmente el área sin recurrir a reformas complejas.
Mueble compactoEn un apartamento pequeño es importante evitar sobrecargar el espacio con elementos pesados. Por eso eligieron muebles compactos y los colocaron de manera que no se crucen entre sí ni ocupen espacio innecesariamente.
Zonificación con luzEn la habitación instalaron una instalación eléctrica externa en el techo, colgaron un candelabro sobre la mesa y colocaron un farol cerca del sofá. Esto permitió zonificar el espacio con luz y crear diferentes escenarios de iluminación en una habitación pequeña.
Cocina ligeraPara no sobrecargar el interior, eligieron las unidades superiores del armario con forma estrecha y color de pared. Para la vajilla de vidrio y almacenamiento adicional previeron una consola blanca colgante.
Mezcla de diferentes texturasUsando textiles texturizados, decoración y la textura de la madera se redujo la sensación de esterilidad del blanco y se añadió volumen al espacio. Cada elemento da sensaciones táctiles únicas, animando el interior.
Elementos masivos discretosUn gran armario y un refrigerador se combinaron en un grupo, ocultados tras fachadas claras y decorados con tiras de madera. El mueble parece integrado y luce más costoso de lo que realmente es.

Need a renovation specialist?
Find verified professionals for any repair or construction job. Post your request and get offers from local experts.
You may also like
Más artículos:
Cómo decorar elegantemente una vivienda de una habitación: 5 soluciones de diseño exitosas
Hermosa y ergonómica cocina de 10 m² en apartamento estándar
Antes y después: salón solar en departamento de dos habitaciones
Encantadora sala de entrada en edificio panelado estándar de 58 m²
6 ideas exitosas que observamos en una microstudio
Cómo hacer que una pequeña vivienda sea acogedora: 7 ideas interesantes
Cómo maximizar todo en una cocina-estancia pequeña
«Simplemente coma menos» ya no funciona. Analizamos por qué las dietas tradicionales no ayudan a bajar de peso