6 ideas para decorar una pequeña estudio
Conserva los geniales consejos para el diseño de tu interiores
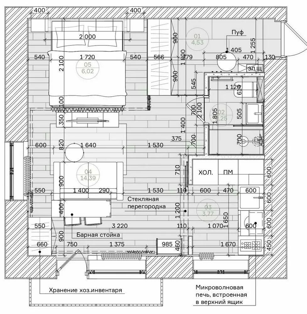
Los diseñadores de ADMstudio equiparon una acogedora y pequeña estudio de 30 m², previendo todas las zonas funcionales. Tomaron como base un estilo minimalista y agregaron acentos llamativos. Mostramos ideas geniales del proyecto que merecen tu atención.
Fondo neutroEl espacio del apartamento se une con una paleta de colores unificada. Las paredes blancas sirven como fondo neutro que suaviza los límites y no llama la atención hacia las dimensiones reales de la habitación.
Acentos azulesEl color de acento elegido fue un azul intenso. Lo pintaron la puerta del baño, radiadores y tuberías. Además, se pintó de azul la pared detrás de la cama. El color pasa a la pared lateral, el techo y la pared trasera de uno de los armarios, creando una nicho visual azul.
Zonificación elegantePara separar las zonas funcionales se utilizaron soluciones de diseño interesantes. La cocina se separa de la habitación con una bonita pared de vidrio, el área de dormir se destaca por color y una estantería pequeña sirve como separación visual para la zona de relajación.
Muebles compactosEl área del apartamento es pequeña, por lo tanto se eligieron muebles adecuados. El sofá pequeño con asientos estrechos ahorra espacio. La mesa de comedor se sustituye visualmente por una barra ligera, y junto a la cama hay mesitas compactas.
Almacenamiento eficienteLos diseñadores aprovecharon al máximo el espacio útil. Los armarios actúan como separación entre la zona de descanso y el vestíbulo, y también para guardar cosas. Las estanterías colgantes sobre la cama, el estante, la barra con compartimentos y las mesitas junto a la cama ofrecen más opciones de almacenamiento.
Decoración moderadaSe mantuvo el minimalismo también en la decoración. Demasiados accesorios y elementos decorativos pueden crear una sensación de abarrotamiento en un espacio pequeño. Un par de jarrones de vidrio con flores secas y velas aromáticas es suficiente para crear una atmósfera elegante.

Need a renovation specialist?
Find verified professionals for any repair or construction job. Post your request and get offers from local experts.
You may also like
Más artículos:
Antes y después: cómo se transformó el baño en un estado lamentable
Baño 2.0: un resort de 3 metros cuadrados
Antes y después: de un baño pequeño separado a un bonito y luminoso diseño
6 buenas ideas para el baño que obtuvimos del proyecto de un diseñador
Qué comer para no olvidar: un neurocientífico explica cómo la alimentación afecta al cerebro
Cómo organizar elegantemente el almacenamiento: 6 ideas geniales del proyecto Profi
Almacenamiento en un apartamento de estilo hruščëvka: cómo encontrar espacio para todo
¿Problemas con el almacenamiento en una pequeña vivienda? Esto es lo que necesitas hacer