De dos apartamentos a uno: un interior bien pensado para una familia con dos hijos
Se combinaron dos apartamentos en uno, creando una habitación maestra con armario y verdaderas habitaciones de princesa con unicornios y flores de algodón en la decoración
Los diseñadores Dina Dymnikova y Olga Sanday decoraron el interior de un apartamento de cuatro habitaciones para una familia joven con dos hijas. Los clientes les encanta viajar, vivieron por un tiempo en Europa y querían reflejar eso en los detalles y acentos del interior. Era importante crear un espacio funcional y acogedor para la vida armoniosa de una familia de cuatro personas. La gran novedad fue el trabajo en la planificación: se necesitaba convertir dos apartamentos en uno.
Ciudad: Moscú, Villas Olímpicas
Superficie: 100 m²
Habitaciones: 4
Baños: 3
Altura del techo: 2,9 m
Presupuesto: 12 millones de rublos
Diseñadores: Dina Dymnikova (RUUMZ) y Olga Sanday
Fotógrafo: Eugeniy Kulibabа
Estilistas: Elena Sereda y Alena Bukanova
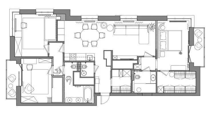
Planificación
La combinación de dos apartamentos afectó la distribución, introduciendo ciertas restricciones pero permitiendo organizar una cocina-comedor-sala de estar más grande, separando las zonas de dormitorio de las zonas comunes. Se logró destacar dos armarios completos, una habitación maestra, dos habitaciones infantiles y tres baños.
Al instalar la ventilación y al demoler las paredes entre los apartamentos se crearon nichos. Estos se adaptaron como estanterías o para almacenamiento cerrado.

Los clientes desearon incorporar en la decoración del interior la madera y tonos verdes. Los diseñadores lo hicieron con delicadeza, combinando madera, metal bronceado, colores leche para las paredes y decoración moderada.
Cocina
La nicho de la cocina es pequeña, por lo tanto se enfocaron en su llenado, planificando todo desde el almacenamiento hasta el triturador de residuos. El equipo principal y los armarios espaciosos se ocultaron bajo una fachada de madera pulida, decorada con una nicho de color bronce.
Toda la mobiliario de cocina y puertas hechas según los bocetos de los diseñadores.Para aligerar visualmente la cocina y conectarla con la sala de estar, se optó por hacer las fachadas superiores blancas en lugar de madera pulida.
La pared detrás del armario de cocina está decorada con cuarzo con delicadas inclusiones plateadas. Esta parece integrar todos los tonos y texturas y se relaciona con la mesa de comedor.

Sala de estar
El diseño de la parte principal del apartamento es moderno y minimalista. En la sala de estar, como en la cocina, el énfasis está en la combinación de madera, bronce y color leche para las paredes. El objeto más inusual e interesante es la lámpara Verpan. Se convirtió en el adorno principal y centro de composición de la cocina-sala de estar. Los tonos y los sonidos se añadieron con pintura abstracta de Svetlana Shebarshina.



La mobiliario elegante y práctica es cómoda para el descanso. La abundancia de materiales naturales en la decoración, los tejidos ligeros y las pinturas destacadas reflejan el carácter de la familia.



Habitación maestra
La habitación parental tiene su propio armario y baño. Los referentes de los clientes preferían la madera y el terciopelo esmeralda. En la habitación, el esmeralda se presenta en todos los tonos. La madera decoró los marcos de puertas y el armario. El cabecero de la cama es elegante y sofisticado. En la pared detrás del cabecero está la obra de Svetlana Shebarshina.



El espejo de cuerpo completo destaca la zona del lavabo. Añade tono cálido y profundidad al espacio. Junto a él se colocó una estantería para libros y decoración.


El armario está decorado con madera de nogal. Aquí se previó una cantidad suficiente de estanterías abiertas, cajones correderos y rieles para ropa. También hay un espejo de cuerpo completo y un cojín cómodo.


Habitaciones infantiles
Estas habitaciones difieren por color y estilo de la parte “adulto”. La principal petición de las niñas fueron unicornios, tonos de algodón y rosado. Por eso dominan los tonos rosados y arcos aireados. “¡Cómo nos asustaba el color rosado! Al principio ni sabíamos cómo abordarlo. Ambas somos madres de niños traviesos. Pero, como nos parece, logramos crear habitaciones verdaderas para princesas”, explican Dina y Olga, las creadoras del proyecto.
En cada habitación infantil hay su propio punto de atracción. En la primera está la cama de dos pisos con escalera y un rincón de juego en el primer piso.



En la segunda habitación está el cómodo sofá rosado con cabecero con forma de espejo y un escritorio al lado de la ventana con ángulo. En ambas habitaciones infantiles se prevén sistemas espaciosos de almacenamiento.



Entrada
Para decorar la entrada se utilizaron tiras de madera pulida. Detrás de la puerta espejo corredera se oculta un armario espacioso, frente a ella una consola colgante y un cojín.


Baños
El baño de invitados y el baño en la habitación maestra están hechos con una gama común con la zona “adulto” principal.


El baño infantil está hecho con un estilo brillante común con las habitaciones de las niñas.


Marcas presentadas en el proyecto:
Cocina
Decoración: aglomerado cuarzo
Piso: tablero de ingeniería, FINEX
Muebles: armario, a medida
Sala de estar
Decoración: pintura, Benjamin Moore
Piso: tablero de ingeniería, FINEX
Textiles: cortinas, IKEA
Habitación maestra
Muebles: cama, a medida
Textiles: alfombra, La Redoute
Habitación infantil
Muebles: escritorio, La Redoute
Entrada
Decoración: tiras de madera pulida; pintura, Benjamin Moore
Piso: FINEX
Need a renovation specialist?
Find verified professionals for any repair or construction job. Post your request and get offers from local experts.
You may also like
Más artículos:
Secretos para crear una veranda acogedora en la finca: experiencia de un diseñador
Pequeña estudio de 34 m² para un hombre activo en Moscú
Estudio de 44 m² con cocina blanca para pareja
Apartamento de dos habitaciones de 74,7 m² en estilo baliés
Funcional apartamento de dos habitaciones de 42 m² en estilo minimalismo
Interior suave de cocina de 7 m² con un amplio conjunto
Antes y después: transformación increíble de una estalinca de 90 m²
Estilo moderno en remodelación obsoleta de 76 m²