Micro baño con ducha en chrstevka
Contamos cómo en un baño típico se hizo una ducha y una pared de bloques de vidrio
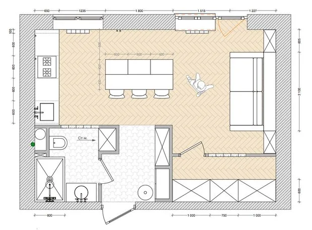
La diseñadora Daria Nazarenko rediseñó por completo el baño típico en una chrstevka de 28 m². Para hacer un armario para la lavadora, ampliaron el baño usando parte del pasillo. La pared adyacente a la cocina se construyó parcialmente con bloques de vidrio para mejorar la iluminación y decorar el interior de manera más interesante.

En lugar de la bañera instaló un ducha y una partición de vidrio. El tabique para instalación de tuberías y sanitarios se llevó hasta el techo y se hicieron nichos-estanterías para champús y otros productos; esto es muy conveniente.

Para decorar el tabique eligieron mosaico, ya que es mucho más fácil de colocar y los bordes cerca del acceso no son tan visibles. Además, los cuadrados del mosaico combinan perfectamente con los bloques de vidrio cuadrados.

La mesa y el lavabo son simples en diseño, se integran visualmente en el espacio pequeño. El espejo con iluminación permite hacer sin necesidad de un espejo colgante.
¿Quieres más detalles? Mira el proyecto completoNeed a renovation specialist?
Find verified professionals for any repair or construction job. Post your request and get offers from local experts.
You may also like

8 cosas en el apartamento que revelan un mal gusto de sus dueños

8 errores en la organización de la habitación de vestir que afectarán el almacenamiento cómodo

Cómo decorar un baño con tonos oscuros sin excederse: 8 ideas de expertos

Ordenando el espacio: 9 consejos para organizar tu hogar desde nuestros proyectos
Más artículos:
8 cosas en el apartamento que revelan un mal gusto de sus dueños
8 errores en la organización de la habitación de vestir que afectarán el almacenamiento cómodo
Cómo decorar un baño con tonos oscuros sin excederse: 8 ideas de expertos
Ordenando el espacio: 9 consejos para organizar tu hogar desde nuestros proyectos
¿Qué es el diseño juguetón y cómo replicarlo en casa: opinión de un experto?
Antes y después: 6 increíbles transformaciones de apartamentos agotados
30+ flores que se pueden sembrar en marzo
Antes y después: cómo se transformó la 'trash' de la casa