Pequeña sala de entrada con una distribución increíblemente práctica
¿Muebles en esquina a medida? Por qué no, si aumentan las posibilidades de almacenamiento varias veces
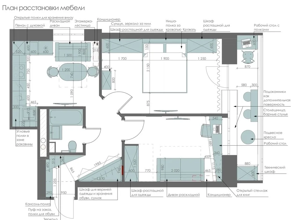
La diseñadora María Roshkova de la estudio Prorooms ideó una distribución de sala de entrada inusual y muy funcional en un apartamento tipo 2 habitaciones de 55 metros cuadrados.
El apartamento pertenece a un antiguo edificio residencial, el remodelado no se realizó hace mucho tiempo. La cliente decidió retirar toda la decoración y el revestimiento del suelo, además se retiró toda la mobiliario y equipo. La diseñadora sugirió eliminar la puerta y todo el tabique al entrar a la cocina y unirla con el pasillo. A pesar de que el ancho de la sala de entrada y el pasillo no permitía colocar muebles estándar.

Para colocar un armario completo en el pasillo, se trasladó la entrada a la primera habitación desde el pasillo un poco hacia la izquierda. Esto permitió destacar el ángulo del pasillo y cerrarlo con puertas espejadas. Detrás de ellas se colocó un perchero para ropa de abrigo, una gran estantería para almacenar maletas voluminosas, estantes para organizar guantes y bufandas. Aquí también se escondió el tablero eléctrico y se conectó un sistema de baja tensión.

Gracias a la geometría bien organizada y al gran espejo en la pared frente a la entrada del apartamento y las puertas espejadas del armario, se logró un efecto en el que uno puede verse desde todos los ángulos. Esto es muy útil al prepararse para salir, especialmente en espacios pequeños.

Una de las paredes de la sala de entrada limita con el baño. En ella se colocaron barras de madera con ganchos para ropa de abrigo que se usa en ese momento, además — un espejo. En él se refleja el armario espejado — se obtiene un juego de volúmenes y reflexiones.

El asiento se fabricó en forma triangular, la estructura es colgante y no ocupa espacio del suelo. Abajo puede colocarse el calzado recién quitado después de una caminata.
¿Desea más detalles? Vea el proyecto completo. Marcas presentadas en el proyecto:Acabado: pintura, Little Greene
Revestimiento del suelo: azulejo, Kerama Marazzi
Muebles: muebles integrados a medida, Tit and Frol
Decoración: Zara Home
Need a renovation specialist?
Find verified professionals for any repair or construction job. Post your request and get offers from local experts.
You may also like

Apartamento de tres habitaciones de 85 m² con una paleta de colores muy elegante

Confortable евротрешка de 62 m² con dos dormitorios y superguarderoba

8 cosas en el apartamento que revelan un mal gusto de sus dueños

8 errores en la organización de la habitación de vestir que afectarán el almacenamiento cómodo
Más artículos:
Apartamento de tres habitaciones de 85 m² con una paleta de colores muy elegante
Confortable евротрешка de 62 m² con dos dormitorios y superguarderoba
8 cosas en el apartamento que revelan un mal gusto de sus dueños
8 errores en la organización de la habitación de vestir que afectarán el almacenamiento cómodo
Cómo decorar un baño con tonos oscuros sin excederse: 8 ideas de expertos
Ordenando el espacio: 9 consejos para organizar tu hogar desde nuestros proyectos
¿Qué es el diseño juguetón y cómo replicarlo en casa: opinión de un experto?
Antes y después: 6 increíbles transformaciones de apartamentos agotados